Die herrschaftliche Immobilie mit sechs großzügigen Zimmern und zwei geräumigen Tageslicht Badezimmern wurde grundlegend und aufwendig saniert und liebevoll, stilgetreu nach Denkmalschutzvorgaben revitalisiert, damit alle Stilelemente beibehalten werden:
circa 3,50 m hohe Decken mit restauriertem üppigem Stuck und Ornamenten, edle Holzfensterfassungen mit großen Glasflächen und antiken Griffen, originalgetreue Türen, das repräsentative Holztreppenhaus mit elegantem Geländer, Zwischengeschossflächen mit großen Fenstern, sowie das massive Fischgräte-Parkett und vieles mehr.
Der zukünftige Eigentümer muss keinerlei zeitaufwendige und kostspielige Renovierung auf sich nehmen und könnte direkt einziehen!
Durch eine originale Hauseingangstür und historischen Windfang betritt man das Entree mit Diele:
zwei repräsentative lichtdurchflutete Salons mit Stilelementen und Stuckdecken führen auf die charmante Terrasse, die mit einer Steintreppe zum Garten führt.
Der romantisch eingewachsene und liebevoll angelegte Garten mit Brunnen ist eine grüne und verträumte Oase mitten im Westend.
Die komfortable Markenküche in eleganten hellen Tönen bietet moderne Geräte für angenehmen Kochkomfort.
Zwei lichtdurchflutete geräumige Schlafzimmer in der ersten Etage und weitere zwei freundliche Zimmer im Dachgeschoss, sowie zwei luxuriöse Tageslichtbäder mit begehbaren Duschen und modernen Design Objekten stehen zur Verfügung.
Das spätklassizistische Stadthaus Baujahr 1880 im Gründerzeit-Stil stellt eine absolute Rarität im Frankfurter Westend dar.
Das historische Bauensemble besteht aus mehreren denkmalgeschützten Klinker-Stadtvillen und besticht in stilvoller historischer Erscheinung.
Die elegante historische Stadtvilla für anspruchsvolle Wohnästheten verbindet spätklassizistische Architektur mit zeitgemäßen, komfortablen Wohnkomfort.
Die Immobilie im angelsächsischen Townhouse-Stil ist ein Kulturdenkmal in Frankfurt, das seinesgleichen sucht!
Flair von London, New England oder Amsterdam mit nostalgischer Eleganz - Mitten im Westend!
Die gehobene Nachbarschaft im Westend-Nord ermöglicht eine ruhige Wohnlage und zugleich eine perfekte Mikrolage in unmittelbarer Nähe des Grüneburgparks und Palmengartens.
Bezugsfertige repräsentative Gründerzeit-Stadtvilla im Westend-Nord mit charmantem Garten
60322 Frankfurt am Main
Die vollständige Adresse der Immobilie erhalten Sie vom Anbieter.
Auf Karte anzeigen
Die vollständige Adresse der Immobilie erhalten Sie vom Anbieter.
Finanzierungszertifikat
In nur zwei Minuten zu Ihrem persönlichen Finanzierungszertifkat.
Infos
| Etagenzahl | 4 |
|---|---|
| Wohnfläche ca. | 180 m2 |
| Nutzfläche | 48,18 m2 |
| Grundstücksfläche | 216 m2 |
| Bezugsfrei ab | nach Vereinbarung |
| Zimmer | 6 |
| Schlafzimmer | 4 |
| Badezimmer | 2 |
Kosten
| Kaufpreis |
4.400.000 € |
|---|---|
| Provision |
Käuferprovision beträgt 3,57 % (inkl. MwSt.) des beurkundeten Kaufpreises |
Finanzierungsrechner:
Kaufpreis:
600.000 €
Eigenkapital:
600.000 €
Monatliche Rate
0 €
Effektiver Jahreszins
0 %
Sollzinsbindung
10 Jahre
Bausubstanz & Energieausweis
| Baujahr | 1880 |
|---|---|
| Letzte Sanierung | 2015 |
| Bauphase | Haus fertig gestellt |
| Objektzustand | Neuwertig |
| Qualität der Austattung | Gehoben |
| Heizungsart | Zentralheizung |
| Wesentliche Energieträger | Gas |
| Energieausweis | laut Gesetz nicht erforderlich |
Beschreibung des Objekts
Ausstattung
- Hohe Decken
- Original Stuck und Ornamente
- Diverse Stilelemente
- Antikes Treppenhaus
- Massives, altes Parkett
- Flügeltüren
- Tageslicht-Luxusbäder
- Moderne, hochwertige Einbauküche mit Siemensgeräten
- Holzfenster mit Doppelverglasung
- Einbruchsicheres Glas im Erdgeschoss
- Elektrische Rollläden
- Moderne Technik
- Neues, gedämmtes Dach
Lage
Das nördliche Westend gehört definitiv zu den besten und begehrtesten Lagen Frankfurts und besticht durch seine sehr exklusive und gehobene Wohnqualität in ruhiger, grüner Umgebung in gleichzeitig zentraler Lage. Beeindruckende Architektur, großzügige Altbauwohnungen, gepflegte Stadtvillen, Mehrfamilienhäuser aus der Gründerzeit und stilvolle Neubauten, die sich alle harmonisch einfügen, prägen das Bild. Ergänzt wird es durch die historische Jugendstil-Synagoge mit prächtiger Kuppel. Charmante Straßen mit altem Baumbestand verleihen dem Stadtteil einen einzigartigen Charakter – repräsentativ und zugleich familienfreundlich. Verkehrsberuhigte Straßen unterstreichen die exquisite Wohnqualität.
Der Grüneburgpark ist mit seinen ca. 29 Hektar die größte Innenstadt-Parkanlage Frankfurts. Nahezu fließend schließt sich der ca. 19 Hektar großen Palmengarten mit seinem botanischen Garten an. Der nahegelegene Rothschildpark ergänzt dieses Ensemble ideal. Dieser Park ist nach der berühmten Frankfurter Bankiersfamilie Rothschild benannt, die das Gelände einst erwarb und dessen Einfluss die Geschichte der umliegenden Parks und des Stadtteils maßgeblich geprägt hat. Gemeinsam bieten Grüneburgpark, Palmengarten, Botanischer Garten und Rothschildpark einen naturreichen Lebensraum mitten in der Stadt und schaffen ein harmonisches Gleichgewicht zwischen Erholung, urbanem Leben und botanischer Vielfalt.
Im Grüneburgweg und in den Seitenstraßen des nördlichen Westends finden sich kleine Feinkostläden, charmante Cafés, beliebte Restaurants, exklusive Boutiquen und weitere Geschäfte für den täglichen Bedarf. Für Kulturinteressierte ist die im neorenaissancezeitlichen Stil erbaute Alte Oper mit dem belebten Opernplatz fußläufig zu erreichen.
Kindergärten, Schulen und die Frankfurter Goethe Universität bieten ein großzügiges Bildungsangebot und sind hervorragend erreichbar.
Die Anbindung an den öffentlichen Nahverkehr ist dank vieler nahegelegener U-Bahnstationen sowie Bushaltestellen sehr komfortabel. Die Frankfurter Innenstadt ist bequem mit dem Fahrrad erreichbar und für alle, die gerne spazieren, auch angenehm zu Fuß zu erreichen. Trotz der Nähe zur Stadtmitte Frankfurts präsentiert sich das nördliche Westend ruhig, grün und zurückhaltend exklusiv – ein idealer Rückzugsort für anspruchsvolles Wohnen und höchster Qualität.
Sonstige Angaben
GELDWÄSCHE: Als Immobilienmaklerunternehmen ist die von Poll Immobilien GmbH nach § 2 Abs. 1 Nr. 14 und § 11 Abs. 1, 2 Geldwäschegesetz (GwG) dazu verpflichtet, bei der Begründung einer Geschäftsbeziehung die Identität des Vertragspartners festzustellen und zu überprüfen, bzw. sobald ein ernsthaftes Interesse an der Durchführung des Immobilienkaufvertrages besteht. Hierzu ist es erforderlich, dass wir nach § 11 Abs. 4 GwG die relevanten Daten Ihres Personalausweises festhalten (wenn Sie als natürliche Person handeln) – beispielsweise mittels einer Kopie. Bei einer juristischen Person benötigen wir eine Kopie des Handelsregisterauszugs, aus welchem der wirtschaftlich Berechtigte hervorgeht. Das Geldwäschegesetz sieht vor, dass der Makler die Kopien bzw. Unterlagen fünf Jahre aufbewahren muss. Als unser Vertragspartner haben Sie auch eine Mitwirkungspflicht nach § 11 Abs. 6 GwG.
HAFTUNG: Wir weisen darauf hin, dass die von uns weitergegebenen Objektinformationen, Unterlagen, Pläne etc. vom Verkäufer bzw. Vermieter stammen. Eine Haftung für die Richtigkeit oder Vollständigkeit der Angaben übernehmen wir daher nicht. Es obliegt daher unseren Kunden, die darin enthaltenen Objektinformationen und Angaben auf ihre Richtigkeit hin zu überprüfen. Alle Immobilienangebote sind freibleibend und vorbehaltlich Irrtümer, Zwischenverkauf- und Vermietung oder sonstiger Zwischenverwertung.
UNSER SERVICE FÜR SIE ALS EIGENTÜMER:
Planen Sie den Verkauf oder die Vermietung Ihrer Immobilie, so ist es für Sie wichtig, deren Marktwert zu kennen. Lassen Sie kostenfrei und unverbindlich den aktuellen Wert Ihrer Immobilie professionell durch einen unserer Immobilienspezialisten einschätzen. Unser bundesweites und internationales Netzwerk ermöglicht es uns, Verkäufer bzw. Vermieter und Interessenten bestmöglich zusammenzuführen.
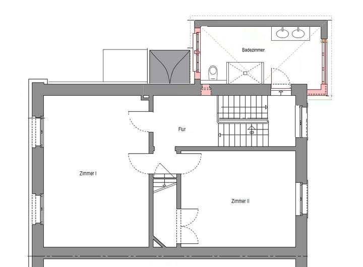
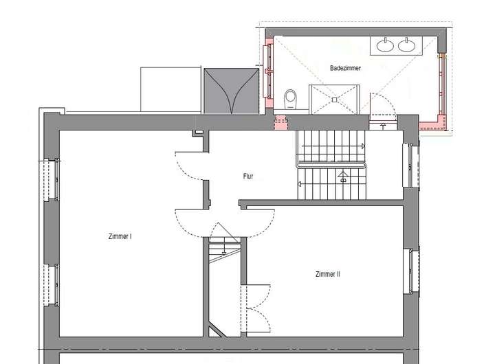
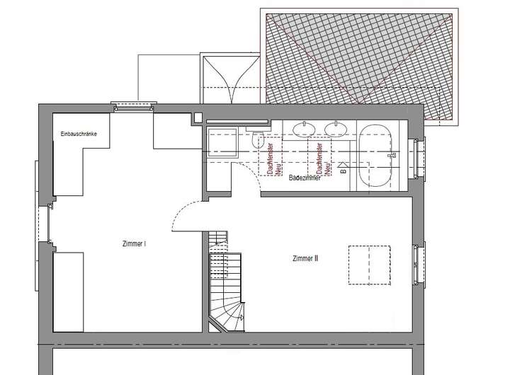
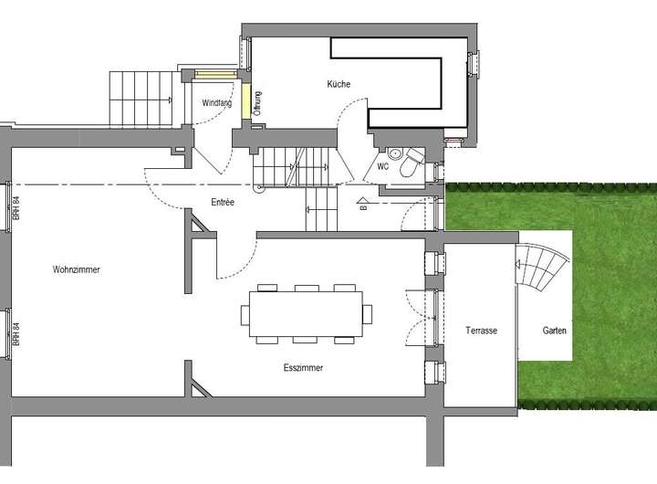
Grundriss
Erdgeschoss
>
>
Obergeschoss
>
>
Dachgeschoss
>
>
Spitzboden
>
>
Untergeschoss
>
>
Adresse
60322 Frankfurt am Main
Interessante Orte
Preis- und Lageinformationen
Preistrend für Bestandsimmobilien in Westend-Süd