Bei der angebotenen Immobilie handelt es sich um ein freistehendes Einfamilienhaus, das durch seine hochwertige Bauweise und seinem besonderen Charme überzeugt. Das 1980 fertiggestellte Haus liegt in einer der begehrtesten Wohnlagen von Erzhausen und präsentiert sich in einem sehr gepflegten Gesamtzustand, sodass es mit einfachen Sanierungsmaßnahmen zu Ihrem neuen Zuhause werden kann.
Mit einer Wohnfläche von ca. 197,33 m² und einer zusätzlichen Nutzfläche von ca. 96,02 m² bietet das Anwesen auf einem Grundstück von rund 563,00 m² ein großzügiges Raumangebot für unterschiedlichste Lebenskonzepte.
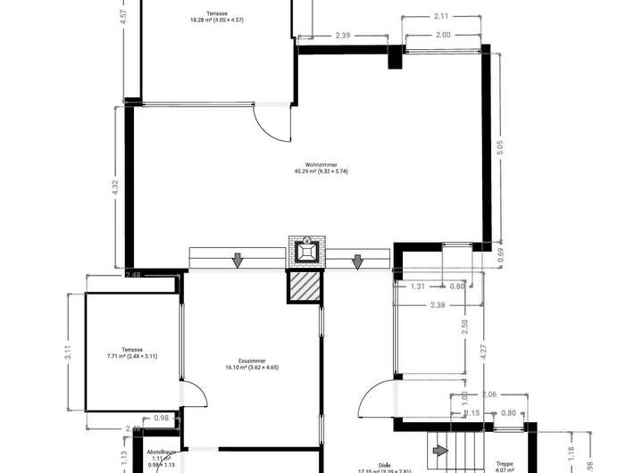
Der Zugang erfolgt über eine gepflasterte Zufahrt. Vorbei an der Garage erreichen Sie rechter Hand den überdachten und sichtgeschützten Eingangsbereich. Schon hier wird der Charakter des Hauses spürbar. Die lichtdurchflutete Gestaltung und die vielen Glasflächen schaffen eine offene, einladende Atmosphäre. Über die großzügige Diele gelangen Sie zu einem Gäste-WC sowie in die Küche mit Einbauküche und angrenzender Vorratskammer. Schließlich erreichen Sie den weitläufigen Wohn- und Essbereich. Großflächige Fensterfronten lassen viel Tageslicht herein und verleihen den Räumen eine außergewöhnliche Helligkeit. Von hier aus führt ein direkter Zugang auf die große Terrasse und in den Garten. Auch vom Essbereich kann auf direktem Wege eine weitere Terrasse betreten werden – ideal, um das Wohnen und Essen ins Freie zu verlagern.
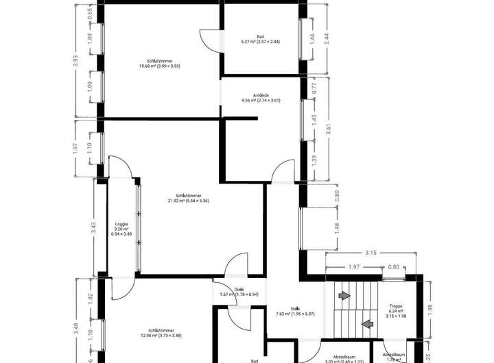
Im Obergeschoss setzt sich die durchdachte Architektur und Raumaufteilung fort. Ein geräumiger Flur erschließt drei Schlafzimmer, zwei Badezimmer und ein Ankleidezimmer sowie einen Abstellraum und eine Loggia, die von zwei Zimmern aus zugänglich ist. Das Elternschlafzimmer ist durch das Ankleidezimmer verbunden und verfügt über ein eigenes, komfortables Bad en Suite mit Dusche, Badewanne, WC und Fenster.
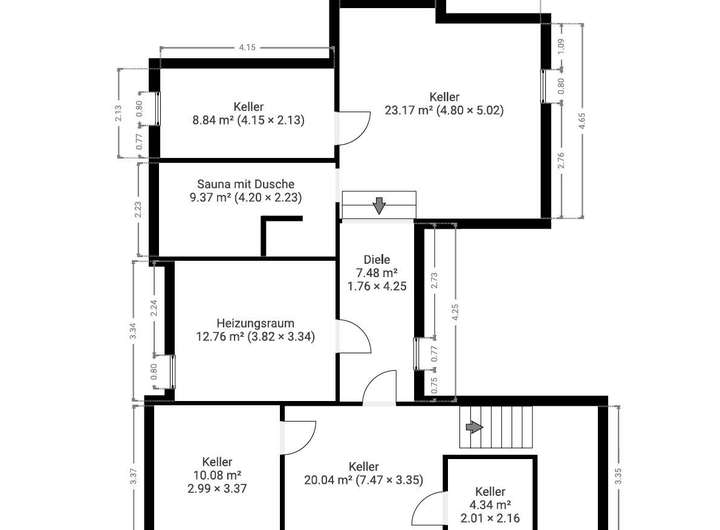
Das Untergeschoss beeindruckt mit gleich vier Kellerräumen, einem Heizungsraum und einem großen Hobbyraum sowie einer Sauna mit angrenzender Dusche – eine perfekte Kombination aus Stauraum, Funktionalität und Erholungsmöglichkeiten.
Der nach Süden ausgerichtete Garten ist gepflegt, äußerst sichtgeschützt und bietet Ihnen von mittags bis abends zahlreiche Sonnenstunden. Er ist sowohl über die Terrasse als auch über die Einfahrt zugänglich und lädt zu entspannten Stunden im Grünen ein. Eine geräumige Garage mit praktischem Hinterausgang, der zu einem weiteren Hauseingang führt, sowie zusätzlicher Platz für zwei weitere Stellplätze runden dieses attraktive Angebot harmonisch ab.
Erzhausen - Freistehendes Einfamilienhaus für Liebhaber mit Visionen
64390 Erzhausen
Die vollständige Adresse der Immobilie erhalten Sie vom Anbieter.
Auf Karte anzeigen
Die vollständige Adresse der Immobilie erhalten Sie vom Anbieter.
Finanzierungszertifikat
In nur zwei Minuten zu Ihrem persönlichen Finanzierungszertifkat.
Infos
| Haustyp | Einfamilienhaus |
|---|---|
| Etagenzahl | 2 |
| Wohnfläche ca. | 197 m2 |
| Nutzfläche | 96,02 m2 |
| Grundstücksfläche | 563 m2 |
| Bezugsfrei ab | sofort |
| Zimmer | 5 |
| Schlafzimmer | 3 |
| Badezimmer | 2 |
| Garage/Stellplatz | Garage |
| Anzahl Garage/Stellplatz | 3 |
Kosten
| Kaufpreis |
749.900 € |
|---|---|
| Provision |
3,57 % inkl. MwSt. Die Käuferprovision beträgt 3,57 % (inkl. MwSt.) des beurkundeten Kaufpreises. |
Finanzierungsrechner:
Kaufpreis:
600.000 €
Eigenkapital:
600.000 €
Monatliche Rate
0 €
Effektiver Jahreszins
0 %
Sollzinsbindung
10 Jahre
Bausubstanz & Energieausweis
| Baujahr | 1980 |
|---|---|
| Bauphase | Haus fertig gestellt |
| Objektzustand | Gepflegt |
| Qualität der Austattung | Normal |
| Heizungsart | Zentralheizung |
| Wesentliche Energieträger | Gas |
| Energieausweis | liegt vor |
| Energieausweistyp | Verbrauchsausweis |
| Energieverbrauchskennwert | 286,8 kWh/(m²*a) |
| Energieeffizienzklasse | H |
286,8
kWh/(m²*a)
Energieeffizienzklasse H
- A+
- A
- B
- C
- D
- E
- F
- G
- H
- 0
- 25
- 50
- 75
- 100
- 125
- 150
- 175
- 200
- 225
- >250
Beschreibung des Objekts
Ausstattung
- Wohnfläche: ca. 197,33 m²
- Grundstücksfläche: ca. 563,00 m²
- Baujahr: ca. 1980
- Küche: Einbauküche
- Badezimmer: 2 (mit Fenster)
- Gäste-WC (EG)
- Bodenbelag: Fliesen, Teppichboden
- Heizung: Gas-Zentralheizung
- Wand innen: Tapete
- Decke innen: Tapete
- Fenster: 2-fach verglast, Holz
- Keller: Ja
- Rollladen: Ja
- Terrasse: Ja
- Garten: Ja
- Loggia: Ja
- Sauna: Ja
- Garage: Ja
- Stellplatz: Ja
- Kamin: Ja
- Hervorragende Verkehrsanbindung zu sämtlichen Autobahnen, Bussen, Bahnen und dem Frankfurter Flughafen
Lage
Die Immobilie befindet sich in Erzhausen, einer attraktiven Wohnlage im südhessischen Landkreis Darmstadt-Dieburg. Der Ort zeichnet sich durch eine ruhige und familienfreundliche Atmosphäre aus und bietet zugleich eine hervorragende Anbindung an die Metropolregion Rhein-Main.
Im Ortskern sind zahlreiche Einkaufsmöglichkeiten, Bäckereien, Apotheken sowie Kindertagesstätten und eine Grundschule vorhanden. Auch das rege Vereinsleben und vielfältige Freizeitangebote tragen zur hohen Lebensqualität bei. Felder, Wiesen und Spazierwege in unmittelbarer Umgebung laden zu Aktivitäten in der Natur ein und bieten ideale Möglichkeiten für Erholung und Sport.
Pendler profitieren besonders von der guten Verkehrsanbindung: Der S-Bahnhof Erzhausen ermöglicht schnelle Direktverbindungen nach Darmstadt und Frankfurt. Zudem sind die Autobahnen A5, A661 und A3 in kurzer Fahrzeit erreichbar. Damit verbindet Erzhausen naturnahes Wohnen mit urbaner Flexibilität – ein idealer Standort für Familien, Berufstätige und alle, die das Leben im Grünen mit der Nähe zur Stadt kombinieren möchten.
Sonstige Angaben
GELDWÄSCHE: Als Immobilienmaklerunternehmen ist die Main Estate Immobilien GmbH nach § 2 Abs. 1 Nr. 14 und § 11 Abs. 1, 2 Geldwäschegesetz (GwG) dazu verpflichtet, bei der Begründung einer Geschäftsbeziehung bzw. sobald ein ernsthaftes Interesse an der Durchführung des Immobilienkaufvertrages besteht, die Identität des Vertragspartners festzustellen und zu überprüfen. Hierzu ist es erforderlich, dass wir, wenn Sie als natürliche Person handeln, nach § 11 Abs. 4 GwG die relevanten Daten Ihres Personalausweises festhalten - beispielsweise mittels einer Kopie. Bei einer juristischen Person benötigen wir eine Kopie des Handelsregisterauszugs, aus welchem der wirtschaftlich Berechtigte hervorgeht. Das Geldwäschegesetz sieht vor, dass der Makler die Kopien bzw. Unterlagen fünf Jahre aufbewahren muss. Als unser Vertragspartner haben Sie auch eine Mitwirkungspflicht nach § 11 Abs. 6 GwG.
HAFTUNG: Wir weisen darauf hin, dass die von uns weitergegebenen Objektinformationen, Unterlagen, Pläne etc. vom Verkäufer bzw. Vermieter stammen. Eine Haftung für die Richtigkeit oder Vollständigkeit der Angaben übernehmen wir daher nicht. Es obliegt daher unseren Kunden, die darin enthaltenen Objektinformationen und Angaben auf ihre Richtigkeit hin zu überprüfen. Alle Immobilienangebote sind freibleibend und vorbehaltlich Irrtümer, Zwischenverkauf- und Vermietung oder sonstiger Zwischenverwertung.
BILDER: Aus Gründen der Ästhetik wurden u.U. manche Bilder mit Hilfe von KI optimiert.
HINWEIS: Sollten mehrere Kaufzusagen zur angebotenen Immobilie / Grundstück vorliegen, hält sich der Eigentümer das Recht vor, von einem Verkaufsangebot auf ein Bieterverfahren zu wechseln.
EIGENTÜMERSERVICE: Planen Sie den Verkauf oder die Vermietung Ihrer Immobilie, so ist es für Sie wichtig, deren Marktwert zu kennen. Lassen Sie kostenfrei und unverbindlich den aktuellen Wert Ihrer Immobilie professionell durch uns einschätzen. Unser professionelles Netzwerk ermöglicht es uns, Verkäufer bzw. Vermieter und Interessenten bestmöglich zusammenzuführen.
Weitere Dokumente
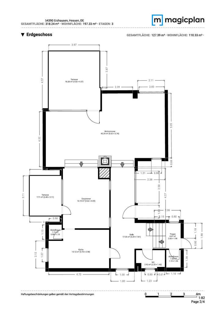
Grundriss EGGrundriss DG
Grundriss KG
Grundriss
Grundriss EG
>
>
Grundriss DG
>
>
Grundriss KG
>
>
Adresse
64390 Erzhausen
Interessante Orte
Preis- und Lageinformationen
Preistrend für Bestandsimmobilien in Erzhausen