Dieses charmante Haus vereint klassischen Wohnkomfort mit einer einzigartigen Aussichtslage. Die Kombination aus ruhiger Sackgasse, familienfreundlicher Umgebung und den besonderen Details des Hauses macht diese Immobilie zu einem echten Wohntraum im Vordertaunus.
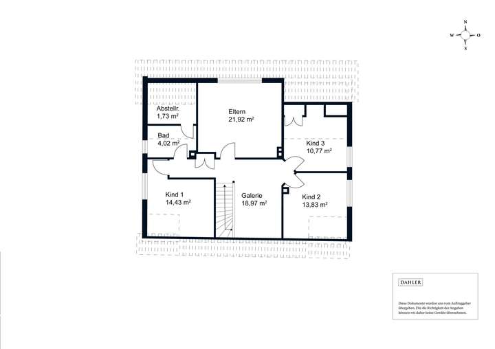
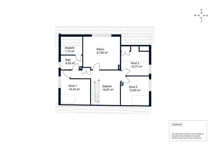
Ursprünglich im Jahr 1960 gebaut und 1972 erweitert, wurde das Haus 2002 umfassend modernisiert. Sieben Zimmer verteilen sich auf ca. 187 m² Wohnfläche, darunter sechs Schlafzimmer. Da zwei der Schlafzimmer im Erdgeschoss liegen, ist Wohnen auf einer Ebene möglich. Außerdem befindet sich auf jeder Wohnetage ein Badezimmer.
Ein herrlicher, sonniger Garten lädt zum Spielen, Toben und Entspannen ein. Zwei Garagen und eine weitere kleinere Garage im Haus runden das Angebot perfekt ab.
Idyllisches Wohnen mit Blick über die Obstwiesen in kinderfreundlicher Spielstraße
65812 Bad Soden am Taunus
Die vollständige Adresse der Immobilie erhalten Sie vom Anbieter.
Auf Karte anzeigen
Die vollständige Adresse der Immobilie erhalten Sie vom Anbieter.
Finanzierungszertifikat
In nur zwei Minuten zu Ihrem persönlichen Finanzierungszertifkat.
Infos
| Haustyp | Einfamilienhaus |
|---|---|
| Etagenzahl | 2 |
| Wohnfläche ca. | 187 m2 |
| Nutzfläche | 134 m2 |
| Grundstücksfläche | 1.062 m2 |
| Bezugsfrei ab | nach Absprache |
| Zimmer | 7 |
| Schlafzimmer | 6 |
| Badezimmer | 2 |
| Anzahl Garage/Stellplatz | 3 |
Kosten
| Kaufpreis |
948.000 € |
|---|---|
| Provision |
3,57 % inkl. gesetzlicher MwSt. von aktuell 19 % bezogen auf den Kaufpreis |
Finanzierungsrechner:
Kaufpreis:
600.000 €
Eigenkapital:
600.000 €
Monatliche Rate
0 €
Effektiver Jahreszins
0 %
Sollzinsbindung
10 Jahre
Bausubstanz & Energieausweis
| Baujahr | 1961 |
|---|---|
| Objektzustand | Modernisiert |
| Qualität der Austattung | Normal |
| Heizungsart | Zentralheizung |
| Wesentliche Energieträger | Erdgas leicht |
| Energieausweis | liegt vor |
| Energieausweistyp | Bedarfsausweis |
| Energieverbrauchskennwert | 110,1 kWh/(m²*a) |
| Energieeffizienzklasse | D |
110,1
kWh/(m²*a)
Energieeffizienzklasse D
- A+
- A
- B
- C
- D
- E
- F
- G
- H
- 0
- 25
- 50
- 75
- 100
- 125
- 150
- 175
- 200
- 225
- >250
Beschreibung des Objekts
Ausstattung
_ sieben Zimmer
_ sechs Schlafzimmer
_ Einbauküche
_ zwei Bäder
_ Wannenduschbad mit zwei Waschbecken im Obergeschoss
_ Duschbad mit bodentiefer Dusche im Erdgeschoss
_ Kamin
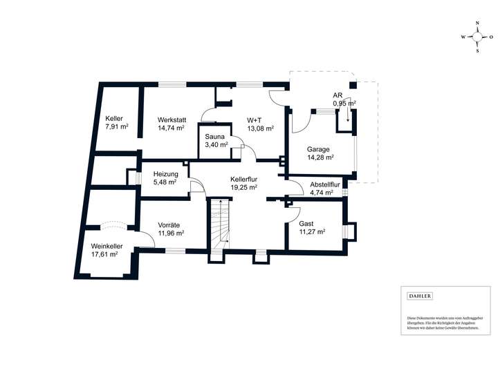
_ Großzügige Nutzfläche im Keller
_ Werkstatt, Weinkeller und Oldtimer-Garage
_ Sauna
_ Gasheizung (Baujahr 1985)
_ doppelt verglaste Kunststofffenster
_ zwei Einzelgaragen sowie ein zusätzlicher Stellplatz davor
_ automatische Gartenbewässerung
Lage
_Bad Soden steht vor allem für Idylle und Erholung
_Unweit von Frankfurt präsentiert sich die Stadt als eine kleine Oase, die alles bietet was das Herz begehrt
_Die historische Altstadt ist vor allem durch ihre vielen Fachwerkhäuser geprägt
_ Altenhain ist ein beliebter Stadtteil von Bad Soden, der vor allem für naturnahes Wohnen und Erholung im Grünen bekannt ist
_Besonders für Familien exisitert hier eine kleine feine Infrastruktur mit Kindergarten, Kinderkrippe und Grundschule in kurzer Laufdistanz
_ Der Hofladen eines ortsansässigen Bauernhofs bietet Produkte aus eigenem Anbau und der Region
_ Die Anbindung zur Autobahn ist schnell und problemlos
_Nach 20 Minuten reiner Fahrtzeit wird der Frankfurter Flughafen erreicht
Grundriss
Grundriss Erdgeschoss
>
>
Grundriss Dachgeschoss
>
>
Kellergeschoss
>
>
Adresse
65812 Bad Soden am Taunus
Interessante Orte
Preis- und Lageinformationen
Preistrend für Bestandsimmobilien in Bad Soden am Taunus