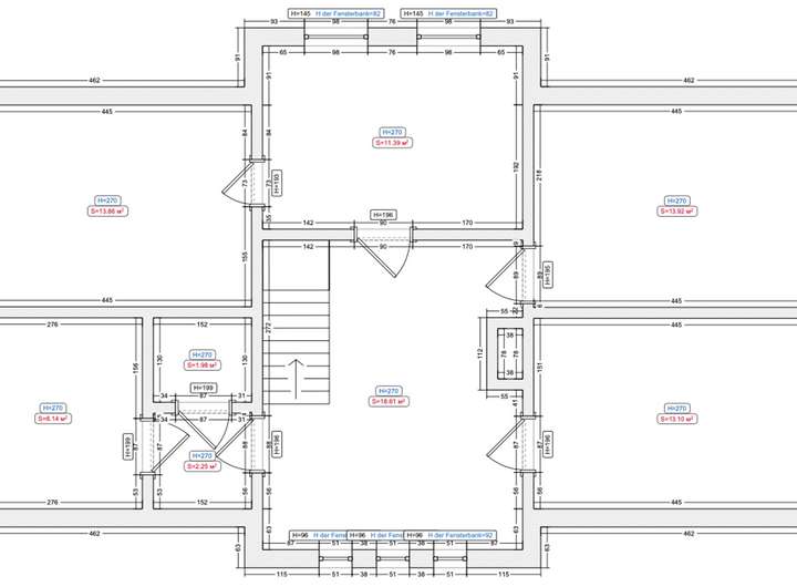
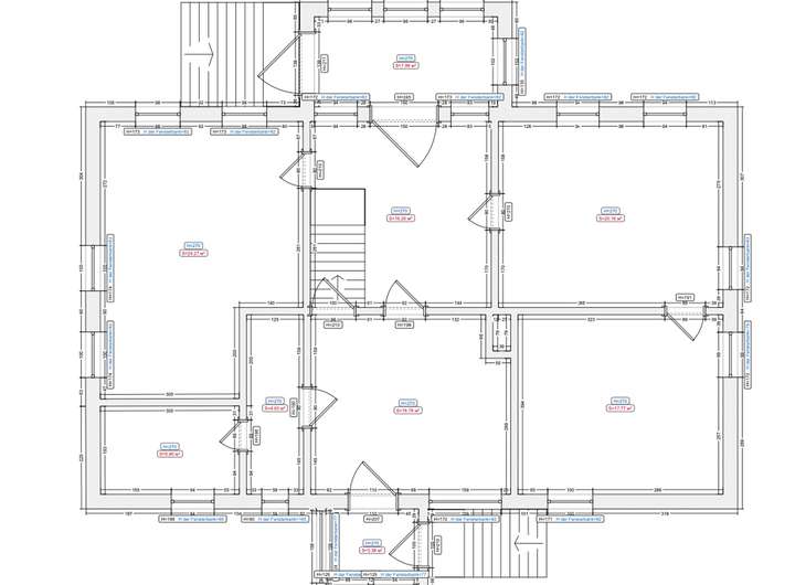
Viel Platz & Potenzial: Einfamilien- Landhaus in Gockenholz - großer Garten, Garage & Carport Dein freistehendes Einfamilienhaus von ca. 1910 empfängt dich mit klassischem Landhaus-Charme und rund 180 m² Wohnfläche – ideal, wenn du Platz suchst und eigene Wohnideen umsetzen möchtest. Der Eingangsbereich mit Kamin schafft direkt beim Betreten ein einladendes Ambiente. Rundgang: Im Erdgeschoss liegen Wohnzimmer, separates Esszimmer, Küche und ein weiteres Zimmer, das sich flexibel als Homeoffice, Gäste- oder Hobbyraum nutzen lässt. Ergänzt wird das Raumangebot durch Bad und Gäste-WC. Im Obergeschoss befinden sich drei Schlafzimmer und ein kleines Bad; ein Zimmer verfügt über ein angrenzendes Ankleidezimmer. Zwei Eingänge – jeweils mit Windfang – bieten Alltag und Nutzung flexible Möglichkeiten, z. B. für Mehrgenerationenwohnen, Wohnen & Arbeiten oder einen separaten Gästetrakt. Untergeschoss & Außen: Das Haus ist voll unterkellert und bietet viel Stauraum sowie den Heizungsraum mit Ölheizung (Baujahr 2007). Draußen stehen Garage und Carport zur Verfügung. Auf dem rund 1.936 m² großen Grundstück genießt du den Ausblick bis zum Feldrand – Platz für Garten, Spiel oder einfach Ruhe im Grünen. Zustand & Potenzial: Die Immobilie bietet eine solide Basis und viel Freiraum für individuelle Gestaltungsideen. Auf Wunsch können erfahrene Partner beim Sanierungsfahrplan unterstützen – von der ersten Planung bis zur Umsetzung. 🌟 Finanzierung? Leichter als du denkst. Ja, die Zinsen sind gestiegen – aber genau jetzt lohnt sich der Vergleich mehr denn je 💸 Über unseren erfahrenen Finanzierungspartner bekommst du maßgeschneiderte Angebote, perfekt abgestimmt auf deine persönliche Situation. Aus einem Pool von über 400 regionalen und überregionalen Banken wird täglich die beste Lösung für dich ausgewählt – transparent, unabhängig und mit echten Top-Konditionen. 🔍💼 So wird dein Traum vom Eigenheim nicht nur planbar – sondern auch bezahlbar. 🏡💶 🏡 Du möchtest deine Immobilie verkaufen? Dann nutz unseren Rundum-sorglos-Service und konzentrier dich ganz entspannt auf dein nächstes Zuhause. Wenn du im Zuge deines Neukaufs deine aktuelle Immobilie veräußern willst, stehen wir dir mit unserem erfahrenen Maklerteam zur Seite – von der ersten Einschätzung bis zur finalen Übergabe. Wir bewerten dein Objekt unverbindlich, ehrlich und professionell und geben dir eine realistische Einschätzung zur aktuellen Marktlage. 📊 Dein Vorteil? Ein Ansprechpartner. Ein Ziel. Alles aus einer Hand. 🖤
Viel Platz & Potenzial: Einfamilien- Landhaus in Gockenholz - großer Garten, Garage & Carport
29331 Lachendorf
Die vollständige Adresse der Immobilie erhalten Sie vom Anbieter.
Auf Karte anzeigen
Die vollständige Adresse der Immobilie erhalten Sie vom Anbieter.

Finanzierungszertifikat
In nur zwei Minuten zu Ihrem persönlichen Finanzierungszertifkat.
Infos
Haustyp | Einfamilienhaus |
---|---|
Wohnfläche ca. | 180 m2 |
Grundstücksfläche | 1.936 m2 |
Bezugsfrei ab | sofort |
Zimmer | 7 |
Schlafzimmer | 5 |
Badezimmer | 2 |
Garage/Stellplatz | Garage |
Anzahl Garage/Stellplatz | 2 |
Kosten
Kaufpreis |
279.000 € |
---|---|
Provision |
3,57% inkl. der gesetzlich geltenden Mehrwertsteuer Mit dem Verkäufer wurde eine gleichlautende Provisionsvereinbarung geschlossen. |
Finanzierungsrechner:
Kaufpreis:
600.000 €
Eigenkapital:
600.000 €
Monatliche Rate
0 €
Effektiver Jahreszins
0 %
Sollzinsbindung
10 Jahre
Bausubstanz & Energieausweis
Baujahr | 1910 |
---|---|
Letzte Sanierung | 1980 |
Bauphase | Haus fertig gestellt |
Heizungsart | Öl-Heizung |
Wesentliche Energieträger | Öl |
Energieausweis | liegt vor |
Energieausweistyp | Bedarfsausweis |
Energieverbrauchskennwert | 262,1 kWh/(m²*a) |
Energieeffizienzklasse | H |
262,1
kWh/(m²*a)
Energieeffizienzklasse H
- A+
- A
- B
- C
- D
- E
- F
- G
- H
- 0
- 25
- 50
- 75
- 100
- 125
- 150
- 175
- 200
- 225
- >250
Beschreibung des Objekts
Ausstattung
✨ Ausstattungshighlights auf einen Blick: • 2 Badezimmer + Gäste-WC • 2 separate Eingänge, jeweils mit Windfang • Ofen • Ölheizung 2007 • Vollkeller (inkl. Heizungsraum) • Carport und Garage • großer Garten • Feldrandlage und vieles mehr !
Lage
Gockenholz ist ein ruhiger Ortsteil der Gemeinde Lachendorf im niedersächsischen Landkreis Celle, etwa 10km östlich der Stadt Celle. Eingebettet in eine von Feldern und Wäldern geprägte Landschaft, bietet dieser kleine Ort ein idyllisches und naturnahes Wohnumfeld. ÖPNV & Nahversorgung: Gockenholz verfügt über eine Bus‑Haltestelle mit Verbindung nach Lachendorf/Celle. Alle Einkäufe des täglichen Bedarfs, Ärzte, Apotheken und Gastronomie findest du im nahegelegenen Lachendorf. Familien freuen sich über kurze Wege zur Ikarus‑Grundschule sowie weiterführende Angebote wie das Immanuel‑Kant‑Gymnasium in Lachendorf. Die Anbindung erfolgt ebenso über die Kreisstraße K 76 zur Landesstraße L 282 Richtung Celle; damit bist du schnell in der Fachwerk‑ und Residenzstadt mit ihrer historischen Altstadt und dem Celler Schloss. Dazu bietet die Umgebung Feld‑ und Waldwege fürs Spazieren, Joggen, Radfahren sowie Reiten und Naturbeobachtung.
Sonstige Angaben
🏠 WOHNWERKimmopulse GmbH – Ihr Partner rund um Immobilien Verkauf oder Vermietung, Kauf oder Anmietung – wir stehen Ihnen mit Erfahrung, Engagement und echter Leidenschaft zur Seite. Als regional verankertes Maklerteam begleiten wir Sie zuverlässig bei allen Fragen rund um Ihre Wunschimmobilie. Persönlich, kompetent und nah dran. 💬 Finanzierung gesucht? Kein Problem! Über unsere starken Finanzierungspartner finden wir gemeinsam das passende Angebot für Sie – maßgeschneidert, transparent und attraktiv. Sprechen Sie uns einfach an – wir helfen Ihnen gerne weiter! 📌 Käuferprovision Das vom Käufer zu zahlende Maklerhonorar beträgt 3,57 % inkl. MwSt. vom notariellen Kaufpreis und wird mit Unterzeichnung des Kaufvertrags fällig. Mit dem Verkäufer wurde eine Provision in gleicher Höhe vereinbart. 🔍 Hinweis zur Objektangabe Alle Angaben in diesem Exposé basieren auf Informationen des Eigentümers. Wir haben diese mit größter Sorgfalt zusammengestellt, können jedoch keine Gewähr für deren Richtigkeit übernehmen. Änderungen und Irrtümer bleiben vorbehalten. 📩 Wichtiger Hinweis für Interessenten Mit dem Erhalt dieses Exposés erkennen Sie an, dass der Erwerb der Immobilie durch den Nachweis oder die Vermittlung der WOHNWERKimmopulse GmbH erfolgt.
Adresse
29331 Lachendorf
Interessante Orte
Preis- und Lageinformationen
Preistrend für Bestandsimmobilien in Lachendorf