Lifestyle 14.01 S – Modernes Wohnen auf 146 qm
Das Lifestyle 14.01 S von Massa-Haus vereint klaren Baustil mit durchdachtem Raumkonzept. Auf ca. 146 qm Wohnfläche bietet dieses Haus den idealen Rahmen für modernes Familienleben.
Die Highlights im Überblick:
• 5 Zimmer – viel Platz für Familie, Homeoffice oder Gäste
• Großzügiger Wohn- und Essbereich mit offener Küche und Zugang zur Terrasse
• Helles Elternschlafzimmer mit optionaler Ankleide
• Kinder- und Arbeitszimmer flexibel nutzbar
• Modernes Tageslichtbad plus zusätzliches Gäste-WC
• Energieeffiziente Bauweise nach neuesten Standards
Die Architektur des Lifestyle 14.01 S verbindet zeitlose Eleganz mit Funktionalität und schafft ein Zuhause, das sich an die Bedürfnisse seiner Bewohner anpasst.
Ob als Familienhaus, Rückzugsort oder Ort für kreative Entfaltung – hier finden Sie den Platz, um Ihre Wohnträume zu verwirklichen.
Ihr Traumhaus in Hamburg-Altenwerder
21129 Hamburg
Die vollständige Adresse der Immobilie erhalten Sie vom Anbieter.
Auf Karte anzeigen
Die vollständige Adresse der Immobilie erhalten Sie vom Anbieter.
Finanzierungszertifikat
In nur zwei Minuten zu Ihrem persönlichen Finanzierungszertifkat.
Infos
| Haustyp | Einfamilienhaus |
|---|---|
| Etagenzahl | 2 |
| Wohnfläche ca. | 146 m2 |
| Nutzfläche | 146 m2 |
| Grundstücksfläche | 600 m2 |
| Zimmer | 5 |
| Schlafzimmer | 4 |
| Badezimmer | 2 |
Kosten
| Kaufpreis |
879.000 € |
|---|---|
| Provision | Nein |
Finanzierungsrechner:
Kaufpreis:
600.000 €
Eigenkapital:
600.000 €
Monatliche Rate
0 €
Effektiver Jahreszins
0 %
Sollzinsbindung
10 Jahre
Bausubstanz & Energieausweis
| Baujahr | 2026 |
|---|
Beschreibung des Objekts
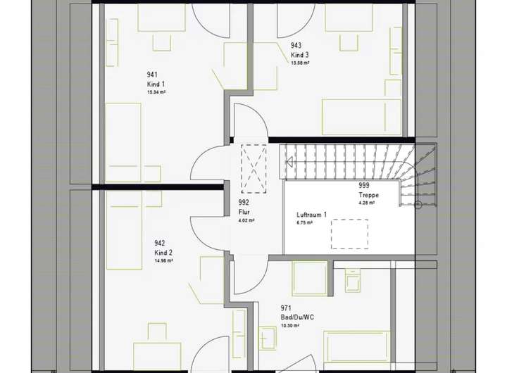
Grundriss
Grundriss Erdgeschoss
>
>
Grundriss Obergeschoss
>
>
Adresse
21129 Hamburg
Interessante Orte
Preis- und Lageinformationen
Preistrend für Bestandsimmobilien in Finkenwerder