Es ist uns eine Freude, Ihnen dieses exklusive Reihenendhaus aus dem Jahr 2019 in der ruhigen und ansprechenden Umgebung von Riedstadt Goddelau präsentieren zu dürfen.
Das moderne und zugleich charmante Anwesen erstreckt sich über drei Stockwerke und bietet etwa 164 m² Wohn-/ und Nutzfläche, gelegen auf einem rund 173 m² großen Grundstück.
Beim Betreten des Hauses gelangen Sie in einen großzügigen Eingangsbereich, von dem aus das Gäste-WC mit Fenster sowie der weitläufige Wohn-/ und Essbereich mit einer offengestalteten Küche erreichbar sind. Die Küche bietet Platz für eine großzügige Einbauküche.
Die einladende Terrasse und der pflegeleichte Garten bieten viel Raum für Erholung und gesellige Stunden. Ein Zaun mit Sichtschutz gewährleistet Ihre Privatsphäre.
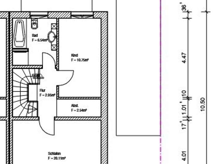
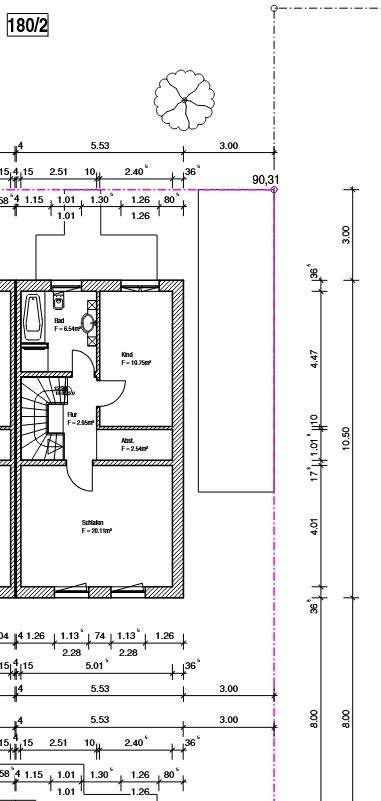
Das Obergeschoss verfügt über zwei helle, geräumige Zimmer und ein Tageslichtbad, ausgestattet mit Dusche, Badewanne, Waschbecken, WC und einem Fenster.
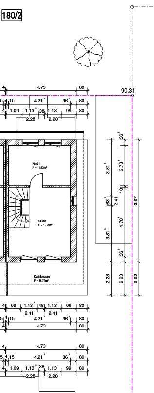
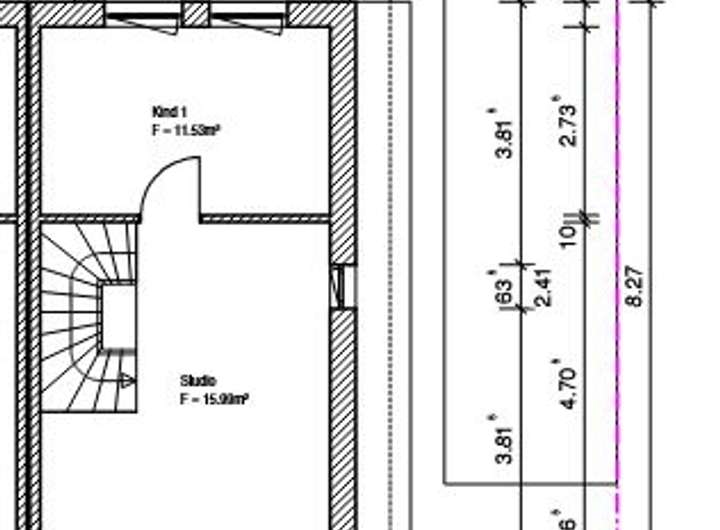
Das Dachgeschoss beheimatet ein Studio mit einem Schlafzimmer. Das Studio eignet sich ideal als Arbeitsbereich und bietet Zugang zur großzügigen Dachterrasse, die einen herrlichen Blick ermöglicht.
Das Haus ist voll unterkellert. Im Kellergeschoss befinden sich ein Hobbyraum, die Waschküche sowie der Hausanschlussraum.
Die Bodenbeläge aus hochwertigen Fliesen und Vinyl sowie große Kunststofffenster mit Isolierverglasung verleihen dem Haus einen hellen und freundlichen Charakter. Alle Fenster sind zudem mit elektrischen Rollläden ausgestattet.
Aktuell ist das Haus zu einer Kaltmiete von 1.300 € pro Monat vermietet.
Beheizt wird das Anwesen über eine Wärmepumpe und ist mit einer Fußbodenheizung mit Einzelraumregelung versehen.
Zwei PKW-Stellplätze vervollständigen das Angebot, und es besteht zusätzlich die Möglichkeit zum Parken neben dem Haus.
Schönes Reihenendhaus mit Dachterrasse + zwei PKW-Stellplätzen in guter Lage von Riedstadt-Goddelau
64560 Riedstadt
Die vollständige Adresse der Immobilie erhalten Sie vom Anbieter.
Auf Karte anzeigen
Die vollständige Adresse der Immobilie erhalten Sie vom Anbieter.
Finanzierungszertifikat
In nur zwei Minuten zu Ihrem persönlichen Finanzierungszertifkat.
Infos
| Haustyp | Reiheneckhaus |
|---|---|
| Etagenzahl | 3 |
| Wohnfläche ca. | 121 m2 |
| Nutzfläche | 42,46 m2 |
| Grundstücksfläche | 172,73 m2 |
| Bezugsfrei ab | Nach Absprache |
| Zimmer | 5 |
| Schlafzimmer | 3 |
| Badezimmer | 1 |
| Garage/Stellplatz | Außenstellplatz |
| Anzahl Garage/Stellplatz | 2 |
Kosten
| Kaufpreis |
549.000 € |
|---|---|
| Provision |
3% vom Kaufpreis zzgl. 19% MwSt. vom Käufer |
| Mieteinnahmen | 1.300 € |
Finanzierungsrechner:
Kaufpreis:
600.000 €
Eigenkapital:
600.000 €
Monatliche Rate
0 €
Effektiver Jahreszins
0 %
Sollzinsbindung
10 Jahre
Bausubstanz & Energieausweis
| Baujahr | 2019 |
|---|---|
| Letzte Sanierung | 2025 |
| Objektzustand | Neuwertig |
| Qualität der Austattung | Gehoben |
| Heizungsart | Fußbodenheizung |
| Energieausweis | liegt vor |
| Energieausweistyp | Bedarfsausweis |
| Energieverbrauchskennwert | 35,8 kWh/(m²*a) |
Beschreibung des Objekts
Ausstattung
- Baujahr 2019
- Reihenendhaus
- Grundstücksfläche ca. 172,73 m²
- Wohnfläche ca. 121,66 m²
- Nutzfläche ca. 42,46 m²
- 5 Zimmer
- Gäste-WC mit Fenster
- Ein Tageslichtbad mit Wanne oder Dusche
- Dachstudio mit Schlafzimmer
- Vollunterkellert
- Hobbyraum
- Waschküche
- Fliesen-/ und Vinylboden
- Großzügige Dachterrasse
- Garten
- Terrasse
- Gartenzaun mit Sichtschutz
- Kunststofffenster mit Isolierverglasung
- Wärmepumpe
- Fußbodenheizung mit Einzelraumregelung
- Zwei PKW-Stellplätze
- Naturnahe Lage in Goddelau
Lage
Riedstadt ist gemessen an ihrer Fläche die größte Stadt im Kreis Groß-Gerau in Hessen.
Der Verwaltungssitz befindet sich im zentral gelegenen Stadtteil Goddelau und ist ein Zusammenschluss der ursprünglich selbständigen Gemeinden Goddelau, Crumstadt, Erfelden, Leeheim und Wolfskehlen.
Für den Standort sprechen insbesondere die freie Lage außerhalb der bebauten Ortslage, die hervorragende Verkehrsinfrastruktur und die Nähe zu den Großstädten Frankfurt am Main, Darmstadt, Wiesbaden, Mainz und Mannheim geprägt.
Riedstadt hat direkten Anschluss an die B26, B44, E35, E42 und E451. Im Riedstädter Stadtgebiet sind zwei Haltepunkte der Riedbahn mit gut getaktetem, ortsteilverbindendem S-Bahn- und Regionalzugverkehr in Richtung Darmstadt Hauptbahnhof eingerichtet.
Deutschlands größter Flughafen Frankfurt am Main ist in weniger als 20 Minuten über die Autobahn oder mit öffentlichen Verkehrsmitteln erreichbar.
Zur Bewegung im Freien laden die Wälder ein, die von einem Netz an Rad- und Wanderwegen durchzogen sind.
Golfplätze in unmittelbarer Nähe und die Rhein-Mainufer gelten als beliebte Treffpunkte.
Sonstige Angaben
Gerne erhalten Sie weitere Details und Beratung bei einer persönlichen Besichtigung.
Bitte benutzen Sie für eine erste Anfrage beiliegendes Kontaktformular unter Angabe Ihrer persönlichen Daten, damit wir zügig reagieren können.
Bei Abschluss des Kaufvertrages beträgt die vom Erwerber zu zahlende Maklerprovision 3,57% inkl. gesetzlicher Mehrwertsteuer vom beurkundeten Kaufpreis. Alle Angaben sind ohne Gewähr und basieren ausschließlich auf Informationen, die uns vom Eigentümer übermittelt wurden. BTI Immobilien GmbH übernimmt keine Gewähr für die Vollständigkeit, Richtigkeit und Aktualität dieser Angaben. Zwischenverkauf/Vermietung bleibt vorbehalten. Es gelten unsere AGB´s der BTI Immobilien GmbH.
Grundriss
HSE Nr. 3 - Grundriss Erdgesch
>
>
HSE Nr. 3 - Grundriss Dachgesc
>
>
HSE Nr. 3 - Grundriss Kellerge
>
>
HSE Nr. 3 - Grundriss Obergesc
>
>
Adresse
64560 Riedstadt
Interessante Orte
Preis- und Lageinformationen
Preistrend für Bestandsimmobilien in Riedstadt