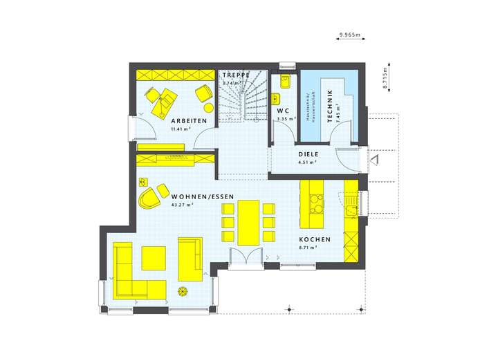
Dieses beeindruckende Fertighaus von LivingHaus in Wendeburg ist die perfekte Symbiose aus modernem Design und individueller Gestaltung. Mit einer großzügigen Wohnfläche von 145,38 m² auf einem 679 m² großen Grundstück bietet es Platz für die ganze Familie. Das architektonische Highlight ist das coole Walmdach, das nicht nur für eine attraktive Optik sorgt, sondern dir auch im Obergeschoss eine tolle Deckenhöhe beschert. Hier gelangst du auf einen großzügigen Balkon, der als Überdachung für den Freisitz dient und perfekt in den übereck angeordneten Erker integriert ist. Der offene Wohn- und Essbereich im Erdgeschoss erstreckt sich über mehr als 43 Quadratmeter und bietet dir ein lichtdurchflutetes Ambiente zum Entspannen und Beisammensein.
LivingHaus geht noch einen Schritt weiter, indem es dir eine Reihe von zusätzlichen Leistungen anbietet, die dein Bauprojekt zu einem rundum gelungenen Erlebnis machen. Mit der hochwertigen Traumküche, die individuell auf deinen Grundriss abgestimmt ist, bereitest du köstliche Mahlzeiten in einem stilvollen Umfeld zu. Die Küche wird rechtzeitig zum Einzug geliefert, sodass du sofort mit dem Kochen starten kannst. Im LivingHaus Bau-Cockpit behältst du den Überblick über dein Bauprojekt, egal ob Zeitplan oder Dokumentenverwaltung - alles ist digital und einfach zugänglich, was dir einen stressfreien Bau ermöglicht.
Das I-KON Konzept sorgt dafür, dass dein Zuhause nachhaltig und energieeffizient ist. Du profitierst von einem Effizienzhaus-Standard, der nur 55 % der Energie eines Standardhauses benötigt, dank innovativer Dämmung und intelligenter Heiztechniken. Zudem kannst du dein Traumhaus mit dem Zuhause-Darlehen von bis zu 250.000 EUR zu besonders günstigen Konditionen finanzieren und von staatlichen Förderprogrammen profitieren. Im Zuhause-Paket erhältst du eine hochwertige Grundausstattung, die moderne Böden, edle Türen und stilvolle Sanitäranlagen umfasst. Um deine Fähigkeiten im Innenausbau zu verbessern, bietet dir das DIY-Ausbau-Coaching die Möglichkeit, in nur drei Tagen von Experten zu lernen, wie du deinen Innenausbau selbst meisterst.
Mit LivingHaus bist du nicht nur für die Zukunft deines Hauses, sondern auch für die finanzielle Sicherheit optimal aufgestellt.
Dein individuelles Traumhaus in Wendeburg - Fertighaus von LivingHaus
38176 Wendeburg
Die vollständige Adresse der Immobilie erhalten Sie vom Anbieter.
Auf Karte anzeigen
Die vollständige Adresse der Immobilie erhalten Sie vom Anbieter.
Finanzierungszertifikat
In nur zwei Minuten zu Ihrem persönlichen Finanzierungszertifkat.
Infos
| Haustyp | Einfamilienhaus |
|---|---|
| Etagenzahl | 2 |
| Wohnfläche ca. | 145 m2 |
| Nutzfläche | 145,38 m2 |
| Grundstücksfläche | 679 m2 |
| Zimmer | 6 |
| Schlafzimmer | 3 |
| Badezimmer | 1 |
Kosten
| Kaufpreis |
429.120 € |
|---|
Finanzierungsrechner:
Kaufpreis:
600.000 €
Eigenkapital:
600.000 €
Monatliche Rate
0 €
Effektiver Jahreszins
0 %
Sollzinsbindung
10 Jahre
Bausubstanz & Energieausweis
| Baujahr | 2026 |
|---|---|
| Bauphase | Haus in Planung (projektiert) |
| Qualität der Austattung | Gehoben |
| Energieausweis | liegt vor |
| Energieausweistyp | Bedarfsausweis |
| Energieverbrauchskennwert | 18,0 kWh/(m²*a) |
| Energieeffizienzklasse | A+ |
18,0
kWh/(m²*a)
Energieeffizienzklasse A+
- A+
- A
- B
- C
- D
- E
- F
- G
- H
- 0
- 25
- 50
- 75
- 100
- 125
- 150
- 175
- 200
- 225
- >250
Beschreibung des Objekts
Ausstattung
Die umfangreiche Ausstattung deines neuen Fertighauses umfasst:
- Hochwertige Traumküche, individuell auf deinen Grundriss abgestimmt, mit modernster Technik und cleveren Stauraumlösungen.
- Digitale Bau-Cockpit-App für eine einfache Verwaltung deines Bauprojekts.
- I-KON Effizienzhaus 55 für maximale Energieeffizienz und Nachhaltigkeit.
- Zuhause-Darlehen für die Finanzierung deines Traumhauses zu günstigen Konditionen.
- Hochwertige Grundausstattung im Zuhause-Paket, inklusive moderner Böden und stilvollen Sanitäranlagen.
- DIY-Ausbau-Coaching, um dir Fähigkeiten im Innenausbau anzueignen.
Das alles sorgt dafür, dass du dein Zuhause ganz nach deinen Vorstellungen gestalten kannst und es zu "Deinem Wie ich es will Fertighaus" wird.
Lage
Wendeburg bietet dir eine hervorragende Lage mit einer Vielzahl an Freizeit- und Bildungsangeboten, die ideal für Familien sind. In unmittelbarer Nähe findest du mehrere Kindergärten und Schulen, darunter die Grundschule Wendeburg, die für ihre familiäre Atmosphäre und engagierten Lehrkräfte bekannt ist. Zudem gibt es in der Umgebung zahlreiche Einkaufsmöglichkeiten, wie Supermärkte und Fachgeschäfte, die deinen täglichen Bedarf abdecken. Das Einkaufszentrum in der nahegelegenen Stadt Braunschweig ist ebenfalls schnell erreichbar und bietet eine große Auswahl an Geschäften.
Für die medizinische Versorgung stehen dir mehrere Ärzte und eine Apotheke in Wendeburg zur Verfügung, sodass du und deine Familie bestens versorgt sind. Freizeitmöglichkeiten kommen in Wendeburg auch nicht zu kurz: Die Umgebung lädt zu ausgedehnten Spaziergängen und Radtouren ein, und die nahegelegenen Waldflächen sind perfekt für Naturliebhaber.
Die Anbindung an den öffentlichen Nahverkehr ist ebenfalls erstklassig, mit regelmäßigen Busverbindungen, die dich schnell nach Braunschweig bringen. Zudem hast du Zugang zur Autobahn A2, die dir eine schnelle Verbindung zu weiteren Städten in Niedersachsen bietet. Das macht Wendeburg zu einem idealen Standort für Pendler, die in der Stadt arbeiten und gleichzeitig die Ruhe und den Charme eines kleinen Ortes genießen möchten.
Grundriss
Gestaltungsbeispiel EG
>
>
Gestaltungsbeispiel DG
>
>
Adresse
38176 Wendeburg
Interessante Orte
Preis- und Lageinformationen
Preistrend für Bestandsimmobilien in Wendeburg