Sie möchten gern mit der Familie oder mit Freunden direkt zusammenleben? Unsere massiv
gebauten Reihenhäuser machen das möglich. Mit einer Wohnfläche von rund m² finden
sie auch auf kleinen Grundstücken Platz. Bei allen Fragen rund um den Hausbau stehen
Ihnen unsere erfahrenen Fachberaterinnen und Fachberater kompetent zur Seite.
Die Abbildung zeigt eine mögliche Ausstattungsvariante. Das Haus ist Verblender
erhältlich.
Variante 3er Reihenhaus ca. 150 qm Wohnnutzfläche nach DIN277
Haus Baukosten KfW 40 förderfähig 420.000 € Einzugsfertig
Bau- und Nebenkosten: 75.000 € inkl. Abriss Bestandsimmobilie
Grundstückskosten: 350.000 € plus ca. 27.000 € Kauferwerbskosten 450 qm Grundstücksfläche
Gesamtkosten Variante 3er Reihenhaus: ca. 872.000,00 €
Variante 4er Reihenhaus ca. 120 qm Wohnnutzfläche nach DIN277
Haus Baukosten KFW 40 förderfähig 360.000 € Einzugsfertig
Bau- und Nebenkosten: 57.000 € inkl. Abriss Bestandsimmobilie
Grundstückskosten: 260.000 € plus ca. 20.000 € Kauferwerbskosten 337 qm Grundstücksfläche
Gesamtkosten Variante 4er Reihenhaus: ca. 697.000 €
Reihenweise Zuhause - Preisreduziert Das Braamheide Quartett im schönen Bramfeld
22175 Hamburg
Die vollständige Adresse der Immobilie erhalten Sie vom Anbieter.
Auf Karte anzeigen
Die vollständige Adresse der Immobilie erhalten Sie vom Anbieter.
Finanzierungszertifikat
In nur zwei Minuten zu Ihrem persönlichen Finanzierungszertifkat.
Infos
| Haustyp | Reihenmittelhaus |
|---|---|
| Etagenzahl | 2 |
| Wohnfläche ca. | 101 m2 |
| Nutzfläche | 117 m2 |
| Grundstücksfläche | 350 m2 |
| Bezugsfrei ab | nach Absprache |
| Zimmer | 4 |
| Schlafzimmer | 3 |
| Badezimmer | 1 |
| Garage/Stellplatz | Außenstellplatz |
| Anzahl Garage/Stellplatz | 1 |
Kosten
| Kaufpreis |
649.900 € |
|---|---|
| Provision | Nein |
Finanzierungsrechner:
Kaufpreis:
600.000 €
Eigenkapital:
600.000 €
Monatliche Rate
0 €
Effektiver Jahreszins
0 %
Sollzinsbindung
10 Jahre
Bausubstanz & Energieausweis
| Baujahr | 2026 |
|---|---|
| Wesentliche Energieträger | Umweltwärme |
| Energieausweis | liegt vor |
| Energieausweistyp | Bedarfsausweis |
| Energieverbrauchskennwert | 19,0 kWh/(m²*a) |
| Energieeffizienzklasse | A+ |
19,0
kWh/(m²*a)
Energieeffizienzklasse A+
- A+
- A
- B
- C
- D
- E
- F
- G
- H
- 0
- 25
- 50
- 75
- 100
- 125
- 150
- 175
- 200
- 225
- >250
Beschreibung des Objekts
Ausstattung
Keller, Laminat, Fliesen
Bemerkungen:
Ausstattung: KFW 40 förderfähig, Klinkerfassade, Wärmepumpe inkl. Lüftungsanlage mit
Rückgewinnung, Laminat,Fliesen, Sanitär inkl. Anlagen, Elektrik mit CAD, usw.....
Lage
Im schönen Bramfeld. Schnell zur Innenstadt Hamburg. Öffentliche Einrichtungen in direkt Umgebung.
Infrastruktur (im Umkreis von 5 km):
Apotheke, Lebensmittel-Discount, Allgemeinmediziner, Kindergarten, Grundschule, Hauptschule, Realschule, Gymnasium, Gesamtschule, Öffentliche Verkehrsmittel
Sonstige Angaben
Wir suchen drei bis vier Familie n oder Interessenten für dieses Projekt. Wir freuen uns auf Ihre Kontaktaufnahme.
Projektbetreuung:
Immobilien Company Nord GmbH , Böttcherweg 30, D - 25355 Barmstedt
Geschäftsführer: Karl Jörn Thiel Kontaktinformationen
eMail: kt@immobilien-company-nord.com
Telefon: 040 -82294633 Mobil: 0176-20261770
Umsatzsteuer-Nr. DE365729377
Aufsichtsbehörde Amtsgericht Pinneberg eingetragen im HRA 9608 PI
Makleranfragen nicht erwünscht. Nach § 7 UWG sind unaufgeforderte Kontaktaufnahmen durch Makler ohne ausdrückliche Einwilligung des Empfängers verboten!
ohne-makler (OM) ist weder Anbieter noch Vermittler der Immobilie. OM betreibt eine Plattform für Immobilieneigentümer, die unter anderem die gleichzeitige Veröffentlichung einzelner Inserate auf mehreren Immobilienportalen ermöglicht. Die Inhalte dieser Inserate werden ausschließlich von Dritten verantwortet. Für die Richtigkeit, Vollständigkeit oder Rechtmäßigkeit der Angaben übernimmt OM keine Haftung. Hinweise auf mögliche Rechtsverstöße können jederzeit gemeldet werden und werden nach Prüfung umgehend bearbeitet.
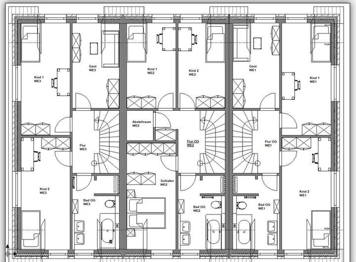
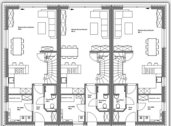
Grundriss
Grundriss
>
>
Grundriss
>
>
Adresse
22175 Hamburg
Interessante Orte
Preis- und Lageinformationen
Preistrend für Bestandsimmobilien in Bramfeld