Gepflegte Doppelhaushälfte, perfekt für Familien.
Auf insgesamt 4 Etagen, inkl. Keller, ist reichlich Platz für Kinderzimmer und Büros.
Das Haus ist stetig saniert, inkl. neuer Elektrik und 3-fach verglasten Fenstern. Weiter saniert wurden:
2016 Küche
2017 Bad
2020 Bodenbeläge
2021 Große Markise
2021 Haustür und Garagentor
2021 Zisterne
2022 Carport
2023 Balkon
2024 Garage
2025 Ausbau Kellerraum
2025 Glasfaser
Reserviert - Doppelhaushälfte für Familien
63322 Rödermark
Die vollständige Adresse der Immobilie erhalten Sie vom Anbieter.
Auf Karte anzeigen
Die vollständige Adresse der Immobilie erhalten Sie vom Anbieter.
Finanzierungszertifikat
In nur zwei Minuten zu Ihrem persönlichen Finanzierungszertifkat.
Infos
| Haustyp | Doppelhaushaelfte |
|---|---|
| Etagenzahl | 4 |
| Wohnfläche ca. | 170 m2 |
| Nutzfläche | 49 m2 |
| Grundstücksfläche | 247 m2 |
| Zimmer | 6 |
| Schlafzimmer | 4 |
| Badezimmer | 2 |
| Garage/Stellplatz | Carport |
| Anzahl Garage/Stellplatz | 2 |
Kosten
| Kaufpreis |
530.000 € |
|---|---|
| Provision | Nein |
Finanzierungsrechner:
Kaufpreis:
600.000 €
Eigenkapital:
600.000 €
Monatliche Rate
0 €
Effektiver Jahreszins
0 %
Sollzinsbindung
10 Jahre
Bausubstanz & Energieausweis
| Baujahr | 1980 |
|---|---|
| Bauphase | Haus fertig gestellt |
| Heizungsart | Zentralheizung |
| Wesentliche Energieträger | Öl |
| Energieausweis | liegt vor |
| Energieausweistyp | Verbrauchsausweis |
| Energieverbrauchskennwert | 117,0 kWh/(m²*a) |
| Energieeffizienzklasse | D |
117,0
kWh/(m²*a)
Energieeffizienzklasse D
- A+
- A
- B
- C
- D
- E
- F
- G
- H
- 0
- 25
- 50
- 75
- 100
- 125
- 150
- 175
- 200
- 225
- >250
Beschreibung des Objekts
Ausstattung
Das Haus hat keinen Sanierungsstau. Mit viel Staufläche und solider Struktur, ist die Immobilie perfekt für junge Familien. Besonders das große Spielzimmer im DG ist ein Highlight für Kinder.
Die große Terrasse, mit neuer großer Markise, ermöglicht entspannte Grillabende.
Der Garten ist liebevoll angelegt mit verschiedenen Pflanzen, Obst- und Blumensträuchern.
Lage
Das Haus liegt in einer sehr ruhigen Wohngegen in Rödermark-Urberach. Alle täglichen Bedarfe wie z.B. Supermärkte, Bäcker, Metzger, Schulen, Ärzte, Kindergärten und Bahnhöfe/Bushaltestellen sind in weniger als 10 Fußminuten zu erreichen.
Sonstige Angaben
Das Haus wird im Dezember 2025 frei.
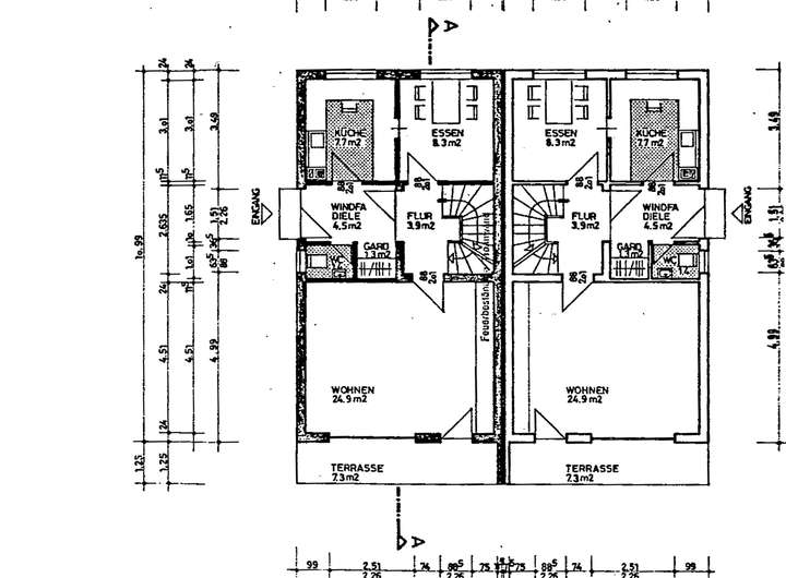
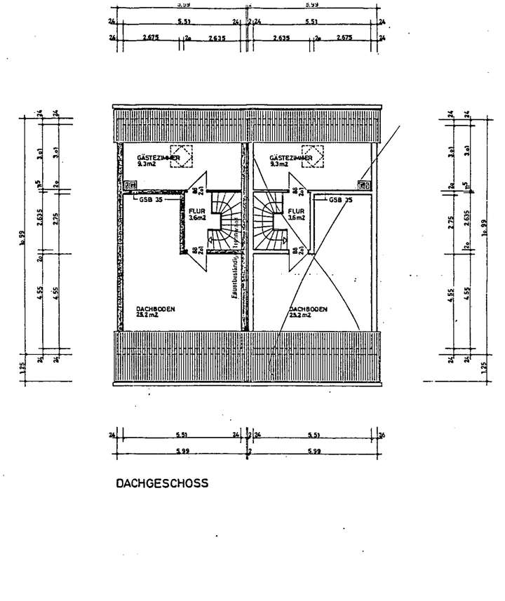
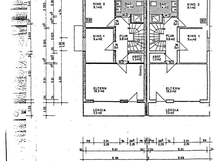
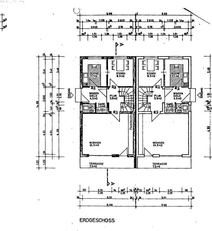
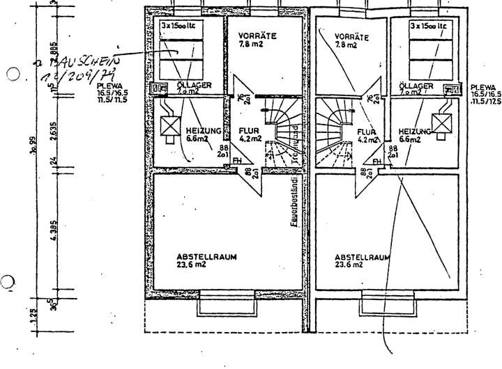
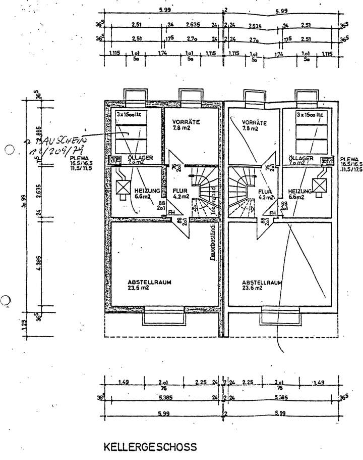
Grundriss
B55a_GR_DG.jpg
>
>
B55a_GR_EG.jpg
>
>
B55a_GR_KG.jpg
>
>
B55a_GR_OG.jpg
>
>
Adresse
63322 Rödermark
Interessante Orte
Preis- und Lageinformationen
Preistrend für Bestandsimmobilien in Rödermark