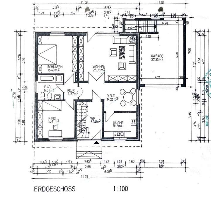
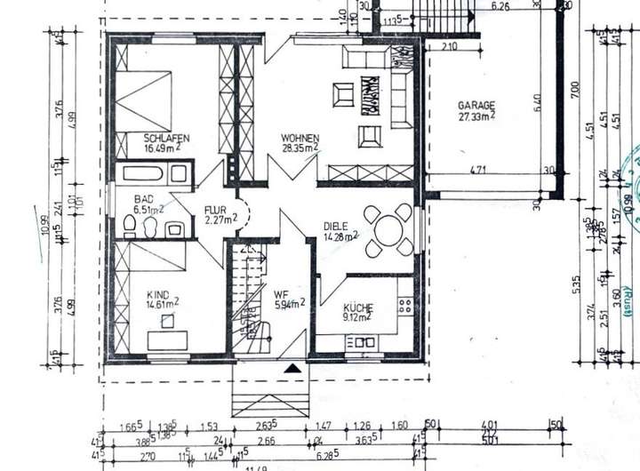
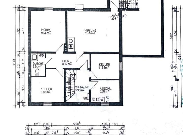
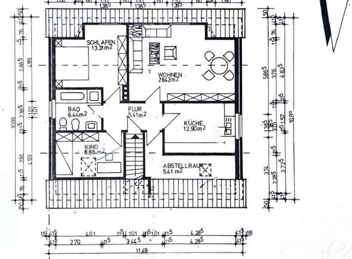
Dieses gepflegte Zweifamilienhaus in guter Lage von Lehrte überzeugt durch seine solide Bauweise und vielseitigen Nutzungsmöglichkeiten. Mit einer Wohnfläche von ca. 153 m² bietet die Immobilie insgesamt 7 gut geschnittene Zimmer und 3 Badezimmer – ideal für Familien, Gäste oder eine flexible Nutzung als Mehrgenerationenhaus. Das Haus wurde 1984 errichtet; ein wesentlicher Vorteil ist die vollständige Erneuerung des Daches im Jahr 2006. Ein weiteres Highlight stellt der im Jahr 2010 errichtete, beheizbare Wintergarten auf der Südseite dar. Mit einer Fläche von ca. 20 m² schafft er zu jeder Jahreszeit einen hellen, freundlichen Raum, der als zusätzlicher Wohnbereich, gemütlicher Rückzugsort oder Essbereich genutzt werden kann. Das Gebäude ist vollständig unterkellert und bietet dadurch reichlich Stauraum sowie vielfältige Nutzungsmöglichkeiten. Besonders hervorzuheben ist die großzügige Garage: Sie bietet nicht nur Platz für ein Fahrzeug, sondern eignet sich dank integrierter Arbeitsfläche und separatem Zugang vom Keller auch hervorragend als Werkstatt oder Hobbybereich. Ein besonderes Extra ist die vorhandene Kfz-Grube, die es ermöglicht, bequem Wartungsarbeiten oder kleinere Reparaturen wie Ölwechsel am Fahrzeug durchzuführen – ein echter Mehrwert für Handwerker, Tüftler oder Hobby-Mechaniker. Das Grundstück hat eine Größe von 528 m², wovon das Wohnhaus rund 126 m² einnimmt. Der verbleibende Außenbereich steht als Garten- und Freifläche zur Verfügung und bietet ausreichend Raum für Freizeit und Erholung. Beheizt wird die Immobilie über eine zentrale Gasheizung.
Attraktives Zweifamilienhaus in Lehrte – Wohnen & Vermieten unter einem Dach
Beethovenring 82,
31275 Lehrte
Auf Karte anzeigen

Finanzierungszertifikat
In nur zwei Minuten zu Ihrem persönlichen Finanzierungszertifkat.
Infos
Haustyp | Sonstige |
---|---|
Etagenzahl | 3 |
Wohnfläche ca. | 153 m2 |
Nutzfläche | 125 m2 |
Grundstücksfläche | 528 m2 |
Bezugsfrei ab | 1.1.2026 |
Zimmer | 7 |
Schlafzimmer | 4 |
Badezimmer | 3 |
Garage/Stellplatz | Garage |
Anzahl Garage/Stellplatz | 1 |
Kosten
Kaufpreis |
530.000 € |
---|---|
Provision | Nein |
Finanzierungsrechner:
Kaufpreis:
600.000 €
Eigenkapital:
600.000 €
Monatliche Rate
0 €
Effektiver Jahreszins
0 %
Sollzinsbindung
10 Jahre
Bausubstanz & Energieausweis
Baujahr | 1984 |
---|---|
Letzte Sanierung | 2006 |
Bauphase | Haus fertig gestellt |
Objektzustand | Gepflegt |
Qualität der Austattung | Normal |
Heizungsart | Zentralheizung |
Wesentliche Energieträger | Gas |
Energieausweis | liegt vor |
Energieausweistyp | Verbrauchsausweis |
Energieverbrauchskennwert | 133,0 kWh/(m²*a) |
Energieeffizienzklasse | D |
133,0
kWh/(m²*a)
Energieeffizienzklasse D
- A+
- A
- B
- C
- D
- E
- F
- G
- H
- 0
- 25
- 50
- 75
- 100
- 125
- 150
- 175
- 200
- 225
- >250
Beschreibung des Objekts
Ausstattung
Massive, gedämmte Bauweise, Dach 2006 erneuert. Heller, beheizbarer Süd-Wintergarten (ca. 20 m², 2010). Zwei getrennte Eingänge für EG/DG, Kachelofen, elektrische Rollläden, gepflegte Fliesen- und Laminatböden. Vollkeller (teilweise beheizt) mit Bad/Dusche und Zugang zur großen Garage inkl. Werkstatt und Kfz-Grube. Zentrale Gasheizung
Lage
Das Zweifamilienhaus befindet sich in Lehrte, einer familienfreundlichen Stadt östlich von Hannover mit sehr guter Infrastruktur und hoher Lebensqualität. Lehrte bietet eine gelungene Kombination aus urbaner Nähe zur Landeshauptstadt und naturnaher Umgebung mit vielen Freizeitmöglichkeiten. Die Lage des Hauses ist als ruhig und angenehm zu bezeichnen, gleichzeitig profitieren Sie von einer schnellen Anbindung an das Stadtzentrum von Lehrte sowie die umliegenden Ortschaften. Einkaufsmöglichkeiten für den täglichen Bedarf, Ärzte, Apotheken sowie diverse Dienstleister sind in wenigen Minuten erreichbar. Auch Schulen und Kindergärten befinden sich in der näheren Umgebung und machen die Lage besonders attraktiv für Familien. Pendler schätzen die hervorragende Verkehrsanbindung: Über die Autobahnen A2 und A7 sowie die Bundesstraße B65 gelangen Sie zügig nach Hannover, Braunschweig oder Hildesheim. Zudem bietet der Bahnhof Lehrte eine sehr gute Anbindung an den Regional- und S-Bahnverkehr, wodurch Hannover in rund 15 Minuten erreichbar ist. Die Freizeitgestaltung kommt ebenfalls nicht zu kurz: Sportvereine, Schwimmbäder, Rad- und Wanderwege sowie Grünanlagen wie der Stadtpark laden zur Erholung und aktiven Freizeit ein. Auch kulturell bietet Lehrte mit Veranstaltungen, Märkten und Vereinen ein abwechslungsreiches Angebot. Insgesamt überzeugt die Lage durch ihre ruhige Wohnatmosphäre in Verbindung mit einer hervorragenden Infrastruktur und Verkehrsanbindung – ideal sowohl für Familien als auch für Berufspendler.
Sonstige Angaben
Besonderer Vorteil für Käufer: Dank der bereits gut gedämmten Gebäudehülle eignet sich das Haus ideal für den Einbau einer modernen Wärmepumpe. Gemeinsam mit der D&G Energieberatung GmbH erhalten Sie kostenlos eine Heizlastberechnung sowie Unterstützung bei den Förderanträgen. So können Sie attraktive staatliche Zuschüsse nutzen – in vielen Fällen werden 30 bis 55 % der Investitionskosten übernommen. Auf diese Weise profitieren Sie von einer klimafreundlichen Heizlösung und spürbaren finanziellen Entlastungen.
Weitere Dokumente
EnergieausweisGrundriss
Grundriss KG
>

Grundriss EG
>

Grundriss DG
>

Schnitt
>

Adresse
Beethovenring 82, 31275 Lehrte
Interessante Orte
Preis- und Lageinformationen
Preistrend für Bestandsimmobilien in Lehrte