Dieses charmante Einfamilienhaus aus dem Jahr 1935 befindet sich in einem gepflegten und gewachsenen Wohngebiet im beliebten Hamburger Osten – nahe der begehrten Wohnlage Marienthal. Es überzeugt durch eine ruhige, grüne Umgebung und gleichzeitig eine hervorragende Anbindung an den öffentlichen Nahverkehr. Eine neue S-Bahn-Haltestelle (derzeit im Bau) sowie zahlreiche Busverbindungen befinden sich in fußläufiger Nähe.
Schulen aller Schulformen – von Grundschulen bis zu weiterführenden Einrichtungen – sind bequem erreichbar, was die Lage besonders attraktiv für Familien macht.
Wohnen mit viel Platz und Potenzial:
Das sanierungsbedürftige Haus wurde auf einem großzügigen, ca. 600 m² großen Grundstück errichtet und bietet mit ca. 140 m² Wohnfläche viel Raum für individuelle Gestaltung und persönliche Wohnträume – drinnen wie draußen. Der weitläufige Garten lädt zum Verweilen, Spielen oder Gärtnern ein und bietet ausreichend Platz für die ganze Familie.
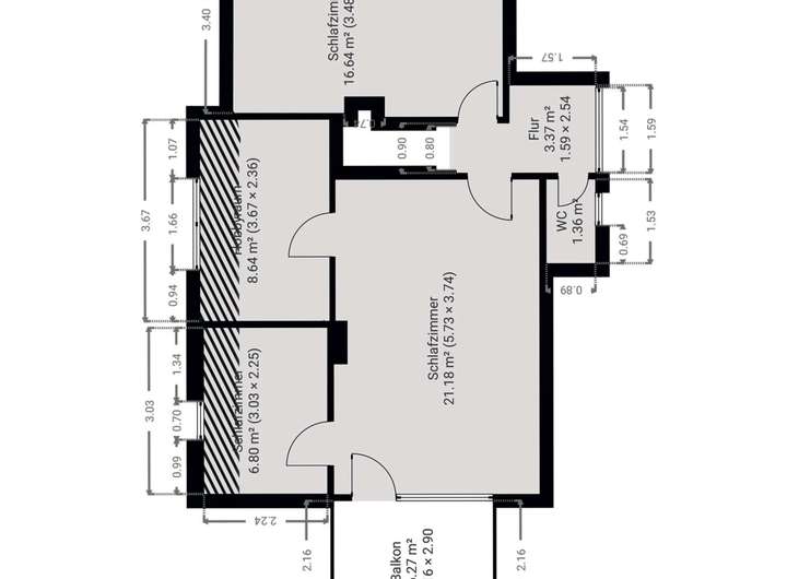
Grundriss und Aufteilung:
Im Erdgeschoss erwartet Sie ein großzügiger Eingangsbereich, von dem aus alle Hauptbereiche zugänglich sind:
• Ein großzügiges Wohnzimmer mit direktem Zugang zum angrenzenden Esszimmer
• Eine separate Küche mit direktem Zugang zur sonnigen West-Terrasse und in den Garten – ideal für gemütliche Abende im Freien
• Ein großes Badezimmer mit Tageslicht
• Ein separates Schlafzimmer oder Büro – ideal als Home-Office oder Gästezimmer
Über eine Treppe im Eingangsbereich gelangen Sie ins Obergeschoss. Dort finden Sie:
• Ein Kinder- oder Schlafzimmer zur Straßenseite
• Ein großzügiges Schlafzimmer mit Balkon und Blick in den Garten
• Zwei weitere, kleinere Zimmer, die flexibel als Ankleidezimmer, Büro oder Schlafraum genutzt werden können
• Ein kleines Badezimmer mit Waschbecken und Toilette
Mit wenigen Umbauten ließe sich die Raumaufteilung im Obergeschoss noch weiter optimieren.
Nutzfläche und Keller:
Der Keller ist direkt vom Wohn-/Essbereich aus zugänglich. Er bietet:
• Eine funktionale Waschküche
• Zwei weitere Räume, die als Abstellfläche oder Hobbyräume genutzt werden können – inklusive Partykeller-Potenzial
• Einen Technikraum mit Ölheizung und Elektrik
• Einen direkten Zugang zur angrenzenden Garage – praktisch und wettergeschützt.
Fazit:
Dieses Einfamilienhaus bietet eine seltene Kombination aus ruhiger Lage, guter Anbindung und vielfältigen Nutzungsmöglichkeiten. Ob als Zuhause für die junge Familie, als Rückzugsort mit Garten oder als Projekt für kreative Wohnideen – hier steckt jede Menge Potenzial. Ein Blick auf den Grundriss verdeutlicht die durchdachte Aufteilung und das großzügige Platzangebot.
Lassen Sie sich diese Gelegenheit nicht entgehen – wir freuen uns auf Ihre Anfrage!
Charmantes Einfamilienhaus mit großem Garten in ruhiger Lage von Hamburg
22043 Hamburg
Die vollständige Adresse der Immobilie erhalten Sie vom Anbieter.
Auf Karte anzeigen
Die vollständige Adresse der Immobilie erhalten Sie vom Anbieter.
Finanzierungszertifikat
In nur zwei Minuten zu Ihrem persönlichen Finanzierungszertifkat.
Infos
| Haustyp | Einfamilienhaus |
|---|---|
| Etagenzahl | 2 |
| Wohnfläche ca. | 140 m2 |
| Grundstücksfläche | 600 m2 |
| Bezugsfrei ab | sofort |
| Zimmer | 5 |
| Schlafzimmer | 3 |
| Badezimmer | 2 |
| Anzahl Garage/Stellplatz | 1 |
Kosten
| Kaufpreis |
549.000 € |
|---|---|
| Provision |
3,50 % inkl. 19% MwSt Die Käufercourtage beträgt jeweils 3,5 % vom Kaufpreis inkl. 19 % MwSt. und ist gleichermaßen mit dem Verkäufer vereinbart. |
Finanzierungsrechner:
Kaufpreis:
600.000 €
Eigenkapital:
600.000 €
Monatliche Rate
0 €
Effektiver Jahreszins
0 %
Sollzinsbindung
10 Jahre
Bausubstanz & Energieausweis
| Baujahr | 1935 |
|---|---|
| Objektzustand | Renovierungsbedürftig |
| Qualität der Austattung | Einfach |
| Heizungsart | Zentralheizung |
| Wesentliche Energieträger | Öl |
| Energieausweis | liegt vor |
| Energieausweistyp | Bedarfsausweis |
| Energieverbrauchskennwert | 339,4 kWh/(m²*a) |
| Energieeffizienzklasse | H |
339,4
kWh/(m²*a)
Energieeffizienzklasse H
- A+
- A
- B
- C
- D
- E
- F
- G
- H
- 0
- 25
- 50
- 75
- 100
- 125
- 150
- 175
- 200
- 225
- >250
Beschreibung des Objekts
Lage
Die Immobilie liegt im Hamburger Stadtteil Jenfeld, im Bezirk Wandsbek. Jenfeld ist ein dynamischer Stadtteil, der sich durch eine Mischung aus Wohngebieten, viel Grün und einer guten Infrastruktur auszeichnet. Die Lage im Schimmelmannstieg verbindet eine ruhige Wohnatmosphäre mit der Nähe zu allen wichtigen Einrichtungen des täglichen Bedarfs.
Historische Aspekte:
Jenfeld kann auf eine lange Geschichte zurückblicken, die eng mit der Familie von Schimmelmann verbunden ist. Heinrich Carl von Schimmelmann, ein einflussreicher Hamburger Kaufmann und Staatsmann des 18. Jahrhunderts, prägte die Entwicklung der Region maßgeblich.
Sehenswürdigkeiten und Umgebung:
Neben dem Torhaus Jenfeld und dem Schlosspark bietet die Umgebung weitere interessante Ziele. Besonders hervorzuheben ist die Kunsthalle Jenfeld, die regelmäßig Ausstellungen präsentiert. Zudem sind die Wandsbeker Marktstraße mit ihren zahlreichen Geschäften, Cafés und Restaurants sowie das Einkaufszentrum Tondo in direkter Nähe. Das Öjendorfer Parkgelände mit dem großen Öjendorfer See ist ein beliebtes Naherholungsgebiet für Spaziergänge, Wassersport oder Grillabende.
Verkehrsanbindung:
Die Verkehrsanbindung ist sehr gut. Mehrere Buslinien verkehren in unmittelbarer Nähe und bieten schnelle Anbindungen an die U-Bahn-Linie U1 (Haltestelle Wandsbek Markt) sowie an die S-Bahn-Linie S4, die zukünftig noch besseren Verbindungen in die Innenstadt schafft. Mit dem Auto sind über die Autobahn A24 sowie die B75 sowohl die Hamburger Innenstadt als auch das Umland zügig erreichbar. Auch der Flughafen Hamburg ist in etwa 25 Minuten erreichbar.
Freizeitmöglichkeiten:
Der Stadtteil bietet zahlreiche Möglichkeiten für Freizeit und Erholung. Neben Sportvereinen und Fitnessstudios sind es vor allem die großzügigen Grünflächen wie der Öjendorfer Park oder der Jenfelder Moorpark, die zu Outdoor-Aktivitäten einladen. Auch kulturelle Veranstaltungen im Torhaus oder kleinere Stadtteilfeste bereichern das Leben in Jenfeld. Für Familien sind zudem Schulen, Kindergärten und Spielplätze in der Umgebung vorhanden.
Vorteile des Wohnens im Osten von Hamburg:
Das Leben im Schimmelmannstieg vereint die Vorteile einer ruhigen Wohnlage mit der Nähe zur Hamburger Innenstadt. Bewohner profitieren von einer guten Infrastruktur, vielfältigen Einkaufsmöglichkeiten, kulturellen Angeboten und einem hohen Freizeitwert durch die zahlreichen Parks und Grünflächen.
Adresse
22043 Hamburg
Interessante Orte
Preis- und Lageinformationen
Preistrend für Bestandsimmobilien in Jenfeld