Herzlich willkommen in Ihrem neuen Zuhause! Dieses großzügige und gut geschnittene Okal-Fertighaus bietet Ihnen auf einer Wohnfläche von 100 m² genügend Platz für die ganze Familie. Mit insgesamt fünf hellen und einladenden Zimmern ist dieses Haus ideal für alle, die ausreichend Raum für individuelles Wohnen und Gestalten suchen. Das Objekt steht auf einer attraktiven Grundstücksfläche von 529 m² und wurde im Jahr 1979 erbaut. Es bietet Ihnen eine perfekte Kombination aus traditionellem Charme und modernem Wohnkomfort. Das Haus überzeugt nicht nur durch seinen Raum und seine Ausstattung, sondern auch durch die Energieeffizienzklasse C, die kostensparendes Heizen und Wohnen ermöglicht. 2021 wurde eine neue Ölheizung installiert, die für wohlige Wärme sorgt. Die dreifachverglasten Kunststofffenster, die im Jahr 2024 erneuert wurden, tragen zur modernen Ausstattung des Hauses bei. Die neuen elektrischen Rollläden bieten zusätzlichen Komfort und Sicherheit. Die Eingangstür wurde ebenfalls 2024 ersetzt und verleiht dem Haus eine frische und einladende Optik. Das Badezimmer ist ein wahres Highlight und überzeugt durch seine durchdachte Raumaufteilung mit Fenster, einer Badewanne und einer separaten Dusche. Hier finden Sie den perfekten Ort zum Entspannen. Die geräumige Küche grenzt direkt an den Essbereich und bietet viele Möglichkeiten, um kulinarische Kreationen zu verwirklichen. Der Außenbereich des Hauses zeigt sich mit einem liebevoll angelegten Garten und einer einladenden Terrasse, die zum Verweilen im Freien einlädt. Genießen Sie die Sonne und die frische Luft in Ihrem privaten Rückzugsort. Eine Einzelgarage sowie ein zusätzlicher Stellplatz vor der Garage runden das Gesamtpaket ab und bieten Ihnen genug Platz für Ihr Auto und andere Fahrzeuge. Das Satteldach des Hauses bietet nicht nur eine ansprechende Optik, sondern auch die Möglichkeit, eine zusätzliche Wohnfläche von etwa 50 m² auszubauen. Der vollunterkellerte Bereich des Hauses bietet Ihnen eine praktische Waschküche sowie mehrere Abstellräume, die für zusätzlichen Stauraum sorgen. Dieses Okal-Fertighaus vereint modernen Wohnkomfort mit vielen praktischen Features und überzeugt durch seine attraktive Lage, großzügigen Platz und liebevolle Details. Lassen Sie sich von diesem Objekt inspirieren und vereinbaren Sie noch heute einen Besichtigungstermin!
Einfamilienhaus auf einem wunderschönen Grundstück in ruhiger Wohnlage von Garbsen-Horst!
30826 Garbsen
Die vollständige Adresse der Immobilie erhalten Sie vom Anbieter.
Auf Karte anzeigen
Die vollständige Adresse der Immobilie erhalten Sie vom Anbieter.

Finanzierungszertifikat
In nur zwei Minuten zu Ihrem persönlichen Finanzierungszertifkat.
Infos
Haustyp | Einfamilienhaus |
---|---|
Etagenzahl | 2 |
Wohnfläche ca. | 100 m2 |
Nutzfläche | 150 m2 |
Grundstücksfläche | 529 m2 |
Zimmer | 5 |
Schlafzimmer | 3 |
Badezimmer | 2 |
Garage/Stellplatz | Garage |
Anzahl Garage/Stellplatz | 1 |
Kosten
Kaufpreis |
330.000 € |
---|---|
Provision |
3,57 % inkl. 19 % MwSt. |
Finanzierungsrechner:
Kaufpreis:
600.000 €
Eigenkapital:
600.000 €
Monatliche Rate
0 €
Effektiver Jahreszins
0 %
Sollzinsbindung
10 Jahre
Bausubstanz & Energieausweis
Baujahr | 1979 |
---|---|
Objektzustand | Renovierungsbedürftig |
Heizungsart | Öl-Heizung |
Wesentliche Energieträger | Öl |
Energieausweis | liegt vor |
Energieausweistyp | Verbrauchsausweis |
Energieverbrauchskennwert | 96,9 kWh/(m²*a) |
Energieeffizienzklasse | C |
96,9
kWh/(m²*a)
Energieeffizienzklasse C
- A+
- A
- B
- C
- D
- E
- F
- G
- H
- 0
- 25
- 50
- 75
- 100
- 125
- 150
- 175
- 200
- 225
- >250
Beschreibung des Objekts
Ausstattung
Fast Facts: - Okal-Fertighaus - 100 m² Wohnfläche - 5 Zimmer - Grundstücksfläche: 529 m² - Baujahr: 1979 - Energieeffizienzklasse: C - Heizung: Ölheizung 2021 - Fenster: Dreifachverglaste Kunststofffenster 2024 - Eingangstür 2024 - Badezimmer: Mit Fenster mit Badewanne und separater Dusche - Küche: grenzt mit Essbereich - Außenbereich: Garten mit Terrasse - Garage: Einzelgarage - Zusätzlicher Stellplatz vor der Garage - Dach: Satteldach mit ausbaufähigen Wohnfläche ca. 50 gm - Keller: Vollunterkellert mit Waschküche und Abstellräumen
Lage
Diese Immobilie liegt in einer gut angebundenen und familienfreundlichen Umgebung in Garbsen. Für Familien mit Kindern ist die Nähe zu mehreren Spielplätzen ideal, der nächste ist nur etwa 140 Meter entfernt. Auch die Bildungseinrichtungen sind gut erreichbar, mit einer Grundschule in etwa 225 Metern Entfernung und einem Kindergarten in rund 115 Metern. Für Pendler und Reisende bietet die Lage eine hervorragende Verkehrsanbindung. Die nächste Bushaltestelle ist nur etwa 190 Meter entfernt, und die Autobahnauffahrt zur A2 erreichen Sie in ca. 2 Kilometern. Der Flughafen Hannover ist etwa 15 Kilometer entfernt und bietet eine bequeme Anbindung für nationale und internationale Reisen. Die Umgebung bietet zudem eine Vielzahl an Freizeitmöglichkeiten. Ein Sportverein ist nur rund 200 Meter entfernt und lädt zu sportlichen Aktivitäten ein. Für kulturelle Abwechslung sorgt die Kleinkunstbühne, die sich in nur etwa 315 Metern Entfernung befindet. Einkaufsmöglichkeiten sind ebenfalls in der Nähe vorhanden. Ein Combi-Supermarkt ist etwa 830 Meter entfernt und bietet alles für den täglichen Bedarf. Die Nähe zu einem Bäcker in etwa 220 Metern Entfernung sorgt für frische Brötchen am Morgen. Diese Lage vereint Komfort, Anbindung und Freizeitmöglichkeiten in einer harmonischen Umgebung.
Sonstige Angaben
Alle Angaben in diesem Exposé wurden sorgfältig und so vollständig wie möglich gemacht. Dennoch kann das Vorhandensein von Fehlern nicht ausgeschlossen werden. Die Angaben in diesem Exposé erfolgen daher ohne Gewähr und basieren ausschließlich auf Informationen, die uns vom Verkäufer bzw. von Dritten zur Verfügung gestellt wurden, sodass wir eine Gewähr für die Vollständigkeit, Richtigkeit und Aktualität dieser Angaben nicht übernehmen können. Irrtum und Zwischenverkauf / Zwischenvermietung bleibt vorbehalten. ***Da wir unseren Auftraggebern zur Diskretion verpflichtet sind und es sich bei den Informationen zu der Immobilie um sensible Daten handelt, bitten wir um Verständnis, dass wir Ihre Anfragen nur unter vollständiger Nennung Ihres Namens, der Anschrift und der Telefonnummer bearbeiten können!*** Weitere Fragen beantwortet Ihnen sehr gerne Frau Asiba Kahrimanovic aus unserem Büro in Hannover unter Mobil 0176 60880915. Rufen Sie uns an. Wir freuen uns, Ihnen bei der Suche nach Ihrer Wunschimmobilie behilflich sein zu dürfen.
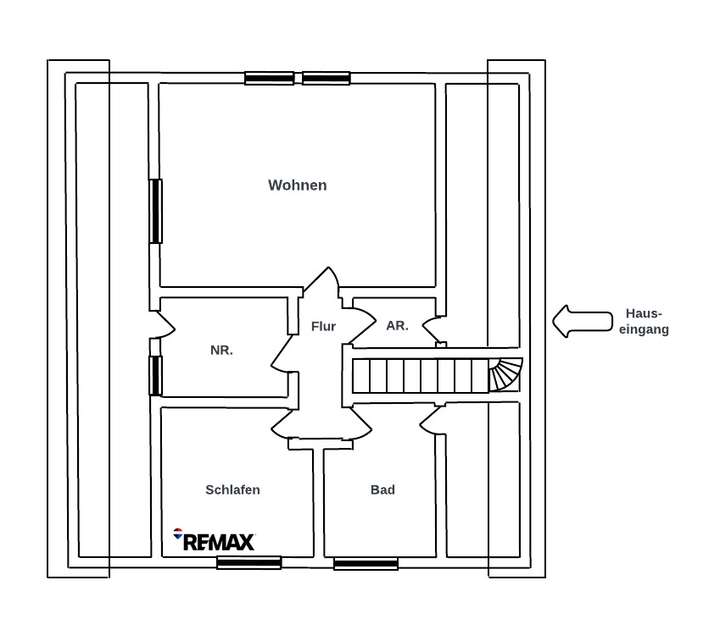
Grundriss
Erdgeschoss
>

Dachgeschoss
>

Keller
>

Adresse
30826 Garbsen
Interessante Orte
Preis- und Lageinformationen
Preistrend für Bestandsimmobilien in Garbsen