Wichtige Hinweise vorab:
- Das Grundstück ist im Angebotspreis enthalten. Die Baunebenkosten ermitteln wir gemeinsam mit Ihnen in einem transparenten Prozess.
- Es handelt sich um ein geplantes Projekt, bei dem Sie Einfluss auf die Grundrisse, Fenster, Bodenbeläge und vieles mehr nehmen können. Optional können Sie das Haus auch unterkellern. Die gezeigten Grundrisse gelten als erste Idee.
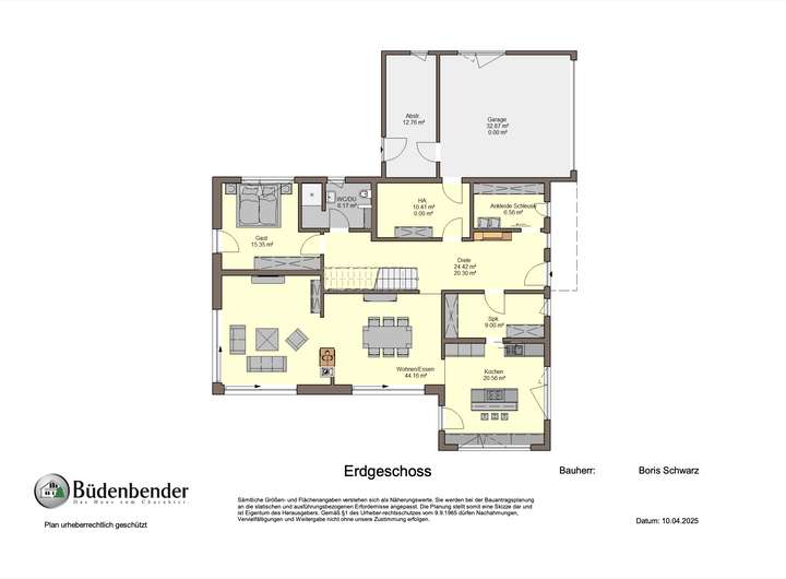
Dieses moderne Traumhaus vereint stilvolles Design mit großzügigem Raumangebot – perfekt für eine Familie mit drei Kindern. Hier erleben Sie höchsten Wohnkomfort, kombiniert mit gesunder Wohnatmosphäre. Im lichtdurchfluteten Erdgeschoss befindet sich das Herzstück des Hauses: eine geräumige Küche, in der sich die Familie gern versammelt. Der angrenzende Wohnbereich lädt zu entspannten Abenden mit der Familie oder gemütlichen Runden mit Freunden ein. Auf der sonnigen Südwestterrasse genießen Sie laue Sommerabende und lassen den Tag mit einem erfrischenden Getränk entspannt ausklingen.
Zusätzlich gibt es im Erdgeschoss eine geräumige Garderobe, ein Gästezimmer und ein stilvolles Gäste-WC mit Dusche.
Das Obergeschoss begeistert mit zwei bis drei perfekt geschnittenen Kinderzimmern – alle hell und mit raumhohen Fenstern ausgestattet und einem separaten Kinderbad. Das Elternschlafzimmer bietet eine ruhige Rückzugsoase, ergänzt durch ein elegantes und großzügiges Masterbad, das keine Wünsche offenlässt. Zusätzlich befindet sich auf der Etage ein praktischen Hauswirtschaftsraum, der genügend Platz für Waschmaschine und Trockner bietet.
Hier spüren Sie in jedem Raum die Liebe zum Detail – ein Ort, der das Zuhause-Gefühl auf höchstem Niveau neu definiert.
Exklusives Traumhaus inklusive Grundstück in bester Lage Saulheim
55291 Saulheim
Die vollständige Adresse der Immobilie erhalten Sie vom Anbieter.
Auf Karte anzeigen
Die vollständige Adresse der Immobilie erhalten Sie vom Anbieter.
Finanzierungszertifikat
In nur zwei Minuten zu Ihrem persönlichen Finanzierungszertifkat.
Infos
| Haustyp | Einfamilienhaus |
|---|---|
| Etagenzahl | 2 |
| Wohnfläche ca. | 231 m2 |
| Grundstücksfläche | 890 m2 |
| Bezugsfrei ab | 12.2026 |
| Zimmer | 10 |
| Schlafzimmer | 4 |
| Badezimmer | 2 |
| Garage/Stellplatz | Garage |
| Anzahl Garage/Stellplatz | 2 |
Kosten
| Kaufpreis |
1.279.000 € |
|---|---|
| Provision | Nein |
Finanzierungsrechner:
Kaufpreis:
600.000 €
Eigenkapital:
600.000 €
Monatliche Rate
0 €
Effektiver Jahreszins
0 %
Sollzinsbindung
10 Jahre
Bausubstanz & Energieausweis
| Baujahr | 2026 |
|---|---|
| Bauphase | Haus in Planung (projektiert) |
| Objektzustand | Erstbezug |
| Qualität der Austattung | Gehoben |
| Heizungsart | Wärmepumpe |
| Wesentliche Energieträger | Strom |
| Energieausweis | liegt zur Besichtigung vor |
Beschreibung des Objekts
Ausstattung
Jedes Haus von Büdenbender steht für Qualität, maximalen Komfort und zukunftsweisende Technik, die nicht nur Ihre Lebensqualität steigert, sondern Ihnen auch langfristige Sicherheit und finanzielle Vorteile verschafft.
Dank der effizienten Viessmann Wärmepumpe mit Fußbodenheizung genießen Sie behagliche Wärme, während die Photovoltaikanlage von Viessmann mit einem Batteriespeicher Ihre Energiekosten nachhaltig reduziert. Im Sommer sorgen robuste, elektrisch betriebene Aluminium-Rollläden für Schutz vor der Sonne und eine angenehm kühle Raumtemperatur.
Ein besonderes Highlight ist der fortschrittliche Wandaufbau mit der diffusionsoffenen Klimawand atmo-tec®. Diese innovative Technologie bietet nicht nur erstklassige Dämmung und optimalen Schallschutz, sondern schafft auch ein gesundes Raumklima, das Ihre Heizkosten im Winter senkt und im Sommer für angenehme Frische sorgt.
Mit hochwertiger Q3-Spachtelung und elegantem Malervlies erhalten die Innenwände Ihres Hauses ein besonders edles Finish – ein echtes Plus für das Ambiente.
Das Haus wird inklusive einer gedämmten Bodenplatte und in bezugsfertiger bzw. schlüsselfertiger Ausstattung gemäß der Bau- und Leistungsbeschreibung 09.2023 angeboten. Zudem sind sämtliche Architektenleistungen, einschließlich Bauantrag, bereits im Hauspreis enthalten. Auch bei Anträgen für Strom, Wasser und Telefon stehen wir Ihnen unterstützend zur Seite.
Mit Büdenbender entscheiden Sie sich für unvergleichliche Qualität und absolute Zuverlässigkeit in jedem Detail. Entdecken Sie die Vorteile und erleben Sie, was modernes Wohnen wirklich bedeutet!
Lage
Das ebene Grundstück mit Südwestausrichtung ist ein echtes Filetstück und befindet sich in ruhiger Lage in Ober-Saulheim.
Saulheim, eingebettet in die sanften Hügel Rheinhessens, vereint ländliche Ruhe mit einer hervorragend ausgebauten Infrastruktur. Mit nur wenigen Minuten Fahrt bis zur Autobahn A63 ist das charmante Winzerdorf optimal angebunden und bietet eine schnelle Verbindung nach Mainz, Wiesbaden und Frankfurt. Der nahegelegene Bahnhof ermöglicht zudem eine komfortable Anbindung an den öffentlichen Nahverkehr. Trotz der zentralen Lage genießen die Bewohner eine idyllische Atmosphäre, umgeben von Weinbergen und weitläufiger Natur – ideal zum Wandern, Radfahren und Erholen. In Saulheim selbst gibt es alle wichtigen Einrichtungen des täglichen Bedarfs, wie Supermärkte, Ärzte, Kindergärten und eine Grundschule, sowie zahlreiche Weingüter und Restaurants, die das Leben hier besonders lebenswert machen.
Sonstige Angaben
Büdenbender Hausbau ist ein renommiertes Unternehmen in der Fertighausbranche, das sich durch erstklassige Bauqualität und einen hervorragenden Ruf auszeichnet. Seit seiner Gründung 1946 steht das Familienunternehmen für innovative, langlebige und energieeffiziente Bauweise. Jedes Haus wird mit höchster Präzision und Sorgfalt gefertigt, wobei modernste Technologien und umweltfreundliche Materialien verwendet werden. Diese Qualität spiegelt sich in zahlreichen Auszeichnungen wider, darunter Zertifikate für Nachhaltigkeit und Energieeffizienz.
Das Unternehmen legt besonderen Wert auf individuelle Planung und Kundenbetreuung. Von der ersten Beratung bis zur Schlüsselübergabe steht ein erfahrenes Team den Bauherren zur Seite. Der maßgeschneiderte Service und die Liebe zum Detail tragen dazu bei, dass Büdenbender einen herausragenden Ruf genießt. Die Kombination aus traditionellem Handwerk und modernen Standards macht Büdenbender Hausbau zu einem der gefragtesten Anbieter von Fertighäusern in Deutschland. Kunden schätzen die Zuverlässigkeit, Termintreue und den persönlichen Ansatz.
Weitere Dokumente
2024 CrefozertAdresse
55291 Saulheim
Interessante Orte
Preis- und Lageinformationen
Preistrend für Bestandsimmobilien in Saulheim