Dieses exquisite Einfamilienhaus aus dem Jahr 1978 präsentiert sich in einem hervorragend gepflegten Zustand - technisch als auch optisch - und kombiniert klassischen Charme mit moderner Eleganz auf einer beeindruckenden Grundstücksgröße von ca. 862 m². Mit einer großzügigen Wohnfläche von ca. 350 m² bietet dieses Haus ausreichend Platz für Ihre Familie und Ihre Gäste auf höchstem Niveau.
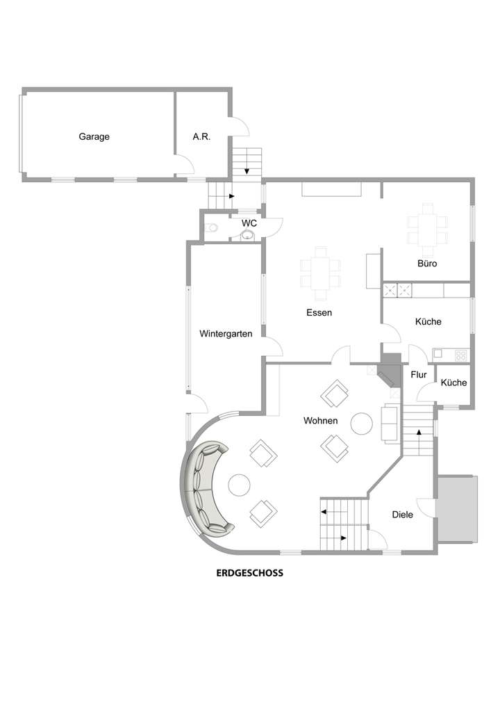
Durch den repräsentativen Eingangsbereich betreten Sie das Erdgeschoss, das mit einer Diele und einem einzigartigen Wohnzimmer beeindruckt. Genießen Sie die mehr als 6 Meter hohe Decke, eine Natursteinwand, einen einladenden Kamin, ein Kachelofen sowie eine offene Galerie und den luxuriösen Marmorboden. Die offene Küche und der Essbereich sind ebenfalls stilvoll gestaltet und bilden gemeinsam mit dem lichtdurchfluteten Wintergarten in Richtung Garten und Pool das kommunikative Zentrum der Liegenschaft. Beide sind mit Terracotta-Böden ausgestattet. Ergänzt wird das Raumangebot durch ein grosszügiges Büro, ein Gäste-WC und einen praktischen Abstellraum.
Über eine elegante, offene Marmortreppe gelangen Sie ins Obergeschoss, das ein großzügiges Schlafzimmer mit ca. 20 m² großem Balkon sowie ein luxuriöses Badezimmer mit Natursteinbadewanne und Waschbecken beherbergt und den Rückzugsort auf der oberen Etage darstellt. Die Walk-in-Dusche und die imposante Badewanne aus Onyx-Stein lassen keine Wünsche offen.
Das Untergeschoss bietet eine Vielzahl an Nutzungsmöglichkeiten: derzeit sind dies - ein Hobbyraum mit Bar, ein Gästezimmer mit separatem Eingang (ideal auch als Einliegerwohnung nutzbar), sowie eine Sauna mit Ruheraum und Dusche, welche zur Erholung einladen. Zudem steht Ihnen hier ein Hauswirtschaftskeller für Technik und Heizung zur Verfügung.
Freuen Sie sich auf entspannte Stunden auf der Terrasse oder dem Balkon (beide mit Südausrichtung) und erfrischen Sie sich im hauseigenen Pool, der durch einen äußerst charmanten, zusätzlichen Freisitz im Grünen, perfekt ergänzt wird.
Mediterranes Flair in Bestlage von Riedstadt - Traumvilla im südländischen Stil mit Pool und Energie
64650 Riedstadt
Die vollständige Adresse der Immobilie erhalten Sie vom Anbieter.
Auf Karte anzeigen
Die vollständige Adresse der Immobilie erhalten Sie vom Anbieter.
Finanzierungszertifikat
In nur zwei Minuten zu Ihrem persönlichen Finanzierungszertifkat.
Infos
| Haustyp | Einfamilienhaus |
|---|---|
| Wohnfläche ca. | 350 m2 |
| Grundstücksfläche | 862 m2 |
| Zimmer | 7 |
| Badezimmer | 2 |
| Garage/Stellplatz | Garage |
| Anzahl Garage/Stellplatz | 1 |
Kosten
| Kaufpreis |
1.165.000 € |
|---|---|
| Provision |
3,57 % inklusive 19 % MWSt. |
Finanzierungsrechner:
Kaufpreis:
600.000 €
Eigenkapital:
600.000 €
Monatliche Rate
0 €
Effektiver Jahreszins
0 %
Sollzinsbindung
10 Jahre
Bausubstanz & Energieausweis
| Baujahr | 1978 |
|---|---|
| Objektzustand | Gepflegt |
| Heizungsart | Zentralheizung |
| Wesentliche Energieträger | Strom |
| Energieausweis | liegt vor |
| Energieausweistyp | Bedarfsausweis |
| Energieverbrauchskennwert | 48,6 kWh/(m²*a) |
| Energieeffizienzklasse | A |
48,6
kWh/(m²*a)
Energieeffizienzklasse A
- A+
- A
- B
- C
- D
- E
- F
- G
- H
- 0
- 25
- 50
- 75
- 100
- 125
- 150
- 175
- 200
- 225
- >250
Beschreibung des Objekts
Ausstattung
Die Liegenschaft verfügt über eine Ausstattung, welche keine Wünsche offen lässt:
- Kabel / Sat TV
- Alarmanlage
- Kamin und Kachelofen
- Terrasse und Freisitz am Pool
- Balkon
- Sauna
- Garage, Carport sowie vier PKW-Stellplätze
- voll unterkellert
- Zentralheizung mit Wärmepumpe (erneuert 2024)
- Marmorböden
- Elternschlafzimmer mit hochwertiger Naturstein-Ausstattung
- Außenpool samt automatischer Chlor/PH-Dosieranlage (Poolfolie und Pooltechnik vor drei Jahren vollumfänglich erneuert)
- Zwei Bäder
- Gäste WC
- Einliegerwohnung
- Gartenhaus sowie Pool-Technikraum hinter der Garage
Lage
Dieses charmante Einfamilienhaus befindet sich in der beschaulichen Stadt Riedstadt, eingebettet in die malerische Landschaft Südhessens. Die Umgebung zeichnet sich durch ihre idyllische Mischung aus ländlichem Charme und urbaner Nähe aus, wodurch ein Wohngefühl der besonderen Art entsteht. Riedstadt liegt in der Nähe von sowohl Darmstadt als auch Frankfurt, was eine hervorragende Anbindung an städtische Annehmlichkeiten bietet, während die unmittelbare Nähe zu weitläufigen Feldern und Grünflächen eine hohe Lebensqualität verspricht. Hinzu kommt eine hervorragende Infrastruktur mit Schulen, Einkaufsmöglichkeiten und Freizeitangeboten in der Umgebung, die dieses Haus zu einem perfekten Rückzugsort für Familien und Berufspendler gleichermaßen machen. Die Anbindung an die Autobahn und den öffentlichen Nahverkehr ist ideal, was die Mobilität erleichtert und die Attraktivität der Lage zusätzlich unterstreicht. Auch das gastronomische Angebot von Riedstadt sowie medizinische Versorgung sind ausreichend gegeben.
Der malerische Riedsee lädt zum Baden und Spazieren ein und ist in nur ca. 10 Minuten fußläufig erreichbar.
Ein idealer Standort für alle, die von der idyllischen und zugleich gut angebundenen Lage profitieren möchten.
Sonstige Angaben
Sämtliche Angaben basieren auf Informationen der Eigentümer. Wir prüfen diese selbstverständlich gründlich können aber keine Haftung oder Gewährleistung für die Angaben Dritter übernehmen.
Sollte ein notarieller Kaufvertrag aufgrund unserer Tätigkeit zustande kommen, so gilt unsere Provision als verdient. Dieses Exposé dient lediglich als Vorabinformation; allein der notariell abgeschlossene Kaufvertrag bildet die Rechtsgrundlage.
Im Rahmen einer Doppelmaklertätigkeit gemäß §656c BGB agiert der Anbieter auch für den Eigentümer und erhält hierfür dieselbe Provision.
Wir stellen gerne sämtliche Objektunterlagen und Grundrisspläne bereit und führen Besichtigungen durch.
Im Rahmen des Geldwäschegesetzes (GWG) sind wir verpflichtet, Ihre vollständigen Kontaktdaten bei Erstkontakt aufzunehmen. Bitte haben Sie Verständnis dafür, dass wir nur Anfragen bearbeiten können, die Ihren vollständigen Namen, Ihre Anschrift und Telefonnummer enthalten.
Nach Erhalt Ihrer schriftlichen Anfrage setzen wir uns zeitnah mit Ihnen zwecks Terminvereinbarung in Verbindung.
Weitere Angebote im Rhein-Main-Gebiet finden Sie auf unserer Webseite unter www.gertschwarz.de.
Weitere Dokumente
EnergieausweisGrundriss
Erdgeschoss
>
>
Obergeschoss
>
>
Keller
>
>
Adresse
64650 Riedstadt
Interessante Orte
Preis- und Lageinformationen
Preistrend für Bestandsimmobilien in Riedstadt