Bei dem angebotenen Projekt handelt es sich um den Neubau von 3 modernen, exklusiven Townhäusern mit 1,5 Vollgeschossen auf einem rückwärtigen Grundstück in Hamburg-Sasel.
In einer absolut zentralen, aber ruhigen Lage von Sasel wird Ihr neues Zuhause schlüsselfertig von einem in der Region ansässigen Unternehmen individuell in massiver Bauweise mit hochwertigen Materialien errichtet.
Die Ausrichtung des Grundstückes ermöglicht den Bewohnern, den ganzen Tag die Sonne zu genießen. Es erwartet Sie ein Haus zum Wohlfühlen mit vielen individuellen Extras. Es entstehen drei große Grundstücke mit Südausrichtung und jeweils 1 Stellplatz pro Haus.
Exklusive Townhäuser in Sasel KFW 40 inkl. Photovoltaikanlage
22393 Hamburg
Die vollständige Adresse der Immobilie erhalten Sie vom Anbieter.
Auf Karte anzeigen
Die vollständige Adresse der Immobilie erhalten Sie vom Anbieter.
Finanzierungszertifikat
In nur zwei Minuten zu Ihrem persönlichen Finanzierungszertifkat.
Infos
| Haustyp | Reihenmittelhaus |
|---|---|
| Etagenzahl | 2 |
| Wohnfläche ca. | 120 m2 |
| Nutzfläche | 120 m2 |
| Grundstücksfläche | 300 m2 |
| Bezugsfrei ab | 2026 |
| Zimmer | 4 |
| Schlafzimmer | 3 |
| Badezimmer | 1 |
| Anzahl Garage/Stellplatz | 1 |
Kosten
| Kaufpreis |
590.000 € |
|---|---|
| Provision |
3,57% Die Provision für den Käufer beträgt 3,57 % (inkl. MwSt.) auf den notariell beurkundeten Gründstückskaufpreis. Sie ist mit Abschluss dieser Verträge verdient und fällig. |
Finanzierungsrechner:
Kaufpreis:
600.000 €
Eigenkapital:
600.000 €
Monatliche Rate
0 €
Effektiver Jahreszins
0 %
Sollzinsbindung
10 Jahre
Bausubstanz & Energieausweis
| Baujahr | 2026 |
|---|---|
| Bauphase | Haus in Planung (projektiert) |
| Qualität der Austattung | Gehoben |
Beschreibung des Objekts
Ausstattung
Der Angebotspreis beinhaltet die schlüsselfertige Erstellung des Hauses mit Putzfassade und 2 Gauben im OG sowie ausgebauten Dachboden. Die Maler- und Bodenbelagsarbeiten sowie die Einbauküche sind im Kaufpreis nicht enthalten ebenso die Baunebenkosten. Wir senden Ihnen mit dem Exposé die detaillierte Kostenaufstellung.
Das Grundstück ist zur Zeit mit einem Doppelhaus in eingeschossiger Bauweise bebaut. Dieses Haus muss durch die Käufer auf eigene Kosten abgerissen werden. Ein entsprechendes Angebot liegt bereits vor. Das vordere Grundstück wird mit zwei Einfamilienhäusern als Stadthausvilla bebaut.
Die Baunebenkosten wie Grunderwerbsteuer, Notar- und Gerichtskosten, Hausanschlüsse (Gas, Wasser, Strom, Telefon, Schmutz- und Regenwasser), Baugenehmigungs- und Vermessungsgebühren sind vom Erwerber zu tragen.
Gern beraten wir Sie hinsichtlich dieser Kosten ausführlich und stehen für weitere Informationen zur Verfügung.
Ein Teil der o.g. Kosten wird durch die Käufer zu je 1/5 getragen.
Lage
Willkommen in Sasel, einem der beliebtesten und schönsten Stadteile von Hamburg.
Sasel bietet viele Grünflächen, Wanderwege und Sportmöglichkeiten.
Umso mehr ist das Stadtbild von Sasel hauptsächlich durch Einfamilienhäuser und Doppelhäuser mit großen Gärten geprägt. Der Ideale Wohnort für Familien.
Kindertagesstätten und Schulen sind fußläufig oder gut mit dem Fahrrad zu erreichen.
Sonstige Angaben
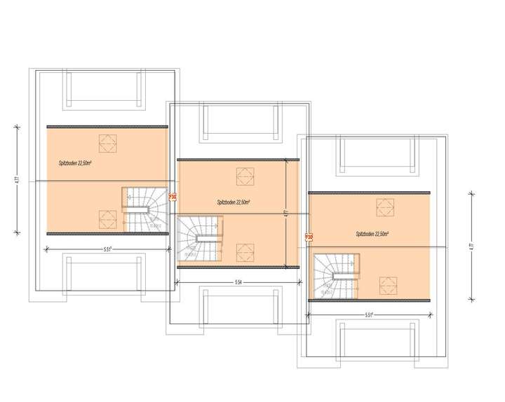
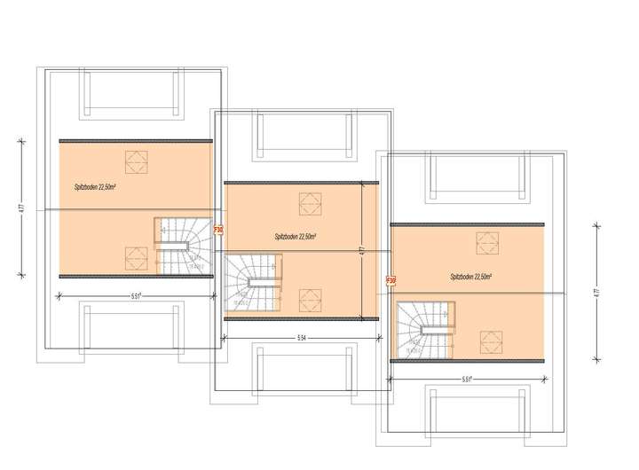
Townhäuser Dämmpaket 40 Eff. Standard, 1. OG mit 2 Gauben und ausgebauten Dachboden mit 2 Dachflächenfenstern und Dreiecksfenster.
Projektiert, Baubeginn geplant Januar 2026, Fertigstellung bis Dezember 2026.
Das Objekt wird im umweltbewussten und energieeffizienten KfW40 Standard erstellt und verhilft den zukünftigen Eigentümern damit zu bemerkenswert günstigen Verbrauchskosten für Warmwasser und Heizung - außerdem können die gerade optimierten Förderprogramme der KfW-Bank für die Immobilienfinanzierung in Anspruch genommen werden.
4 Zimmer, davon 3 Schlafräume
1 x Gäste-WC, 1 x Bad mit Badewanne + Dusche + Hauswirtschaftsraum
Zentrale Lüftung und Luft-Wasser-Wärmepumpe - Photovoltaikanlage
Grundstück gesamt: ca. 1785 m², das Grundstück für die Reihenhäuser ist ca. 896 m² groß.
Die Grundstücke für die Townhäuser entstehen als Parzellen gemäß Lageplan.
Gemeinsame Zuwegung.
Die Kaufpreisforderung für unser Angebot variiert pro Haus.
Grundriss
Grundriss EG
>
>
Grundriss DG
>
>
Grundriss Dachboden
>
>
Adresse
22393 Hamburg
Interessante Orte
Preis- und Lageinformationen
Preistrend für Bestandsimmobilien in Sasel