Dieses freistehende Zweifamilienhaus aus dem Jahr 1994 liegt in attraktiver Höhenlage oberhalb des Mittelrheintals in der Ortsgemeinde Auel. Die Immobilie bietet ca. 186 m² Wohnfläche auf drei Ebenen sowie ca. 40 m² Nutzfläche und eignet sich für verschiedene Wohnkonzepte wie Mehrgenerationenwohnen, Teilvermietung oder Wohnen und Arbeiten unter einem Dach. Die Hauptwohnung erstreckt sich über Erd- und Untergeschoss mit rund 132 m² Wohnfläche. Der großzügige Wohn- und Essbereich besticht durch freiliegendes Gebälk, das dem Raum eine besondere Atmosphäre verleiht – eine gelungene Kombination aus offenem Wohngefühl und charmantem Landhausstil. Ein gemütlicher Kachelofen, eine moderne Küche (2010) sowie der direkte Zugang zur großzügigen Terrasse und dem Garten schaffen Wohnqualität mit Wohlfühlfaktor. Zwei Schlafzimmer und ein Tageslichtbad ergänzen diese Ebene. Im Untergeschoss befinden sich zwei weitere Schlafzimmer, ein Bad sowie Hauswirtschafts- und Abstellräume. Die Einliegerwohnung im Dachgeschoss (ca. 54 m²) ist separat zugänglich und umfasst ein Wohn-/Esszimmer mit Balkon, ein Schlafzimmer, Küche und Bad – ideal für die Vermietung oder als Rückzugsbereich. Der großzügige, eingewachsene Garten bietet viel Privatsphäre, eine große Terrasse, Gartenlauben, Obststräucher, einen kleinen Teich sowie Rasenflächen.
Ein vielseitiges Zuhause mit viel Platz, Charme und Gestaltungsmöglichkeiten. Ob als Familiennest, Kapitalanlage oder Ort für neue Wohnideen – hier genießen Sie Natur, Ruhe und ein Zuhause mit Weitblick.
Zweifamilienhaus mit Fernblick in ruhiger Höhenlage von Auel
56357 Auel
Die vollständige Adresse der Immobilie erhalten Sie vom Anbieter.
Auf Karte anzeigen
Die vollständige Adresse der Immobilie erhalten Sie vom Anbieter.
Finanzierungszertifikat
In nur zwei Minuten zu Ihrem persönlichen Finanzierungszertifkat.
Infos
| Haustyp | Mehrfamilienhaus |
|---|---|
| Etagenzahl | 2 |
| Wohnfläche ca. | 186 m2 |
| Nutzfläche | 40 m2 |
| Grundstücksfläche | 900 m2 |
| Zimmer | 7 |
| Badezimmer | 3 |
| Garage/Stellplatz | Carport |
| Anzahl Garage/Stellplatz | 4 |
Kosten
| Kaufpreis |
270.000 € |
|---|---|
| Provision |
3,57% inkl. MwSt. vom notariell beurkundeten Kaufpreis |
Finanzierungsrechner:
Kaufpreis:
600.000 €
Eigenkapital:
600.000 €
Monatliche Rate
0 €
Effektiver Jahreszins
0 %
Sollzinsbindung
10 Jahre
Bausubstanz & Energieausweis
| Baujahr | 1994 |
|---|---|
| Bauphase | Haus fertig gestellt |
| Objektzustand | Gepflegt |
| Heizungsart | Elektro-Heizung |
| Energieausweis | liegt vor |
| Energieausweistyp | Bedarfsausweis |
| Energieverbrauchskennwert | 108,0 kWh/(m²*a) |
| Energieeffizienzklasse | D |
108,0
kWh/(m²*a)
Energieeffizienzklasse D
- A+
- A
- B
- C
- D
- E
- F
- G
- H
- 0
- 25
- 50
- 75
- 100
- 125
- 150
- 175
- 200
- 225
- >250
Beschreibung des Objekts
Ausstattung
Carport mit mind. 3 Stellplätzen und E-Ladestation
Photovoltaikanlage
Beheizung über Strom (moderne Nachtspeicheröfen + Infrarotheizungen) und Kachelöfen
Lage
Auel ist eine kleine Ortsgemeinde im Rhein-Lahn-Kreis in Rheinland-Pfalz. Die Region liegt im nördlichen Teil des Bundeslandes, zwischen Wiesbaden und Koblenz und ca. 5 Kilometer westlich des Rheins. Die Umgebung ist geprägt von einer hügeligen Landschaft, die durch landwirtschaftliche Flächen und Waldgebiete dominiert wird. Auel ist Teil der Verbandsgemeinde Loreley, die sich entlang der beliebten UNESCO-Kulturlandschaft Oberes Mittelrheintal erstreckt – einer Region, die für ihre Weinberge, historische Burgen und hervorragende Wanderwege bekannt ist. Die Infrastruktur deckt die Grundversorgung durch lokale Geschäfte und Dienstleister in Nastätten (ca. 10 Automin.) sowie Sankt Goarshausen (ca. 5 Automin.) ab. Über die Bundesstraßen B54 und B260 besteht eine gute Anbindung an die Autobahnen A3 und A66. Öffentliche Verkehrsmittel sind in Form von Buslinien vorhanden, die Auel mit den umliegenden Gemeinden verbinden.
Verkehrsanbindung: B260, B42, A61, A3, Bahnhof St. Goarshausen, Buslinien
Nächstgelegene Städte: Wiesbaden, Koblenz, je ca. 45 Autominuten entfernt
Einkaufsmöglichkeiten, Baumärkte, Supermärkte: St. Goarshausen und Nastätten
Schulen, Kindergärten: St. Goarshausen, Bogel und Nastätten
Nächstgelegener Flughafen: Frankfurt am Main, Hunsrück
Nächstgelegenes Krankenhaus, Ärzte: Nastätten, St. Goarshausen
Auel vereint ländliche Idylle mit guter Erreichbarkeit – ideal für Familien und Berufspendler.
Sonstige Angaben
Bitte geben Sie bei Anfragen Ihre vollständigen Kontaktdaten an.
Alle in diesem Exposé gemachten Angaben basieren auf Auskünften des Verkäufers. Trotz sorgfältiger Recherche können wir hierfür keine Haftung übernehmen.
Der Zwischenverkauf bleibt vorbehalten.
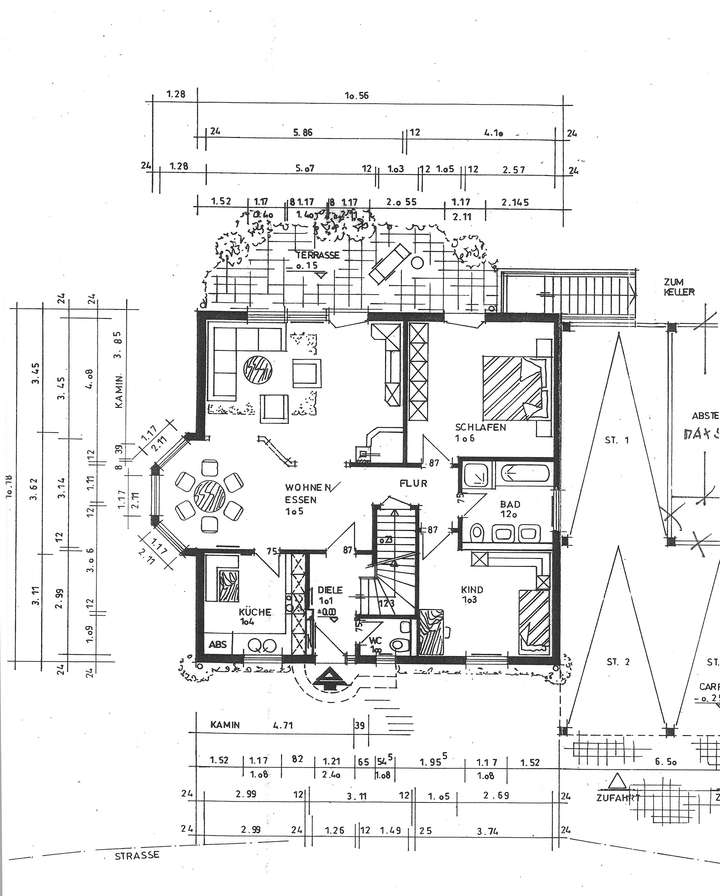
Grundriss
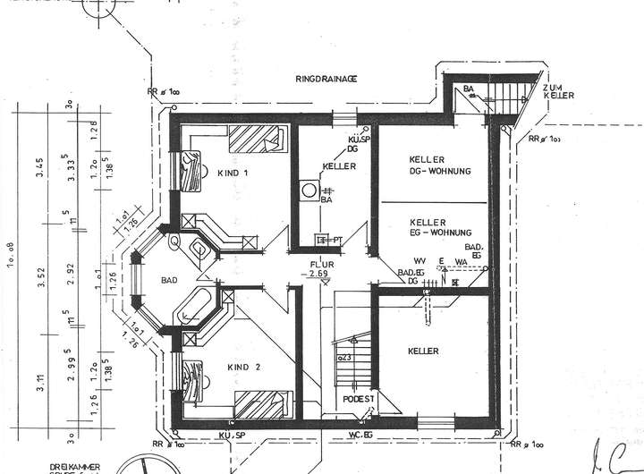
Grundriss KG
>
>
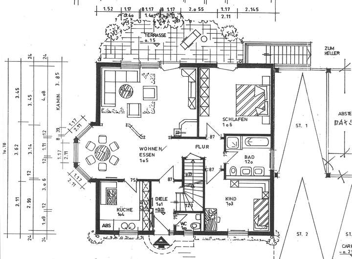
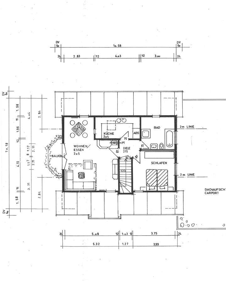
Grundriss EG
>
>
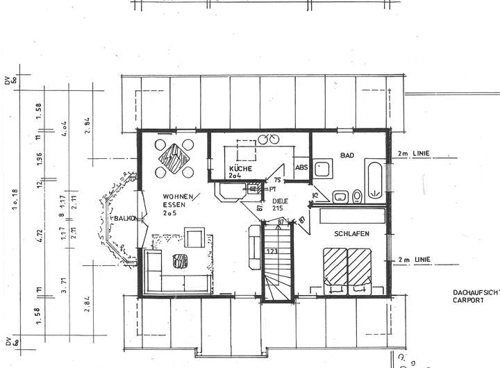
Grundriss DG
>
>
Adresse
56357 Auel
Interessante Orte
Preis- und Lageinformationen
Preistrend für Bestandsimmobilien in Auel