Wohnen & Leben einmal anders!
Diese diagonal geschnittene mächtige Doppelhaushälfte, planungstechnisch als s.g. „Stadtvilla“ ausgelegt, befindet sich innerhalb des mittlerweile gereiften Neubaugebietes Dortelweil-West, die Europaschule nur ein Steinwurf weit entfernt.
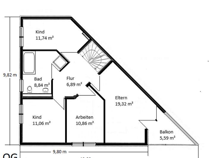
Durch die diagonale Teilung sind abwechslungsreiche Raumlösungen entstanden. Mit insgesamt 6 Schlafzimmern ist dieses Haus ideal für die große Familie geeignet und bietet auch in Zeiten von Homeoffice beste Nutzungsmöglichkeiten. Der Vollkeller offeriert extremes Staupotenzial, die Option eines zusätzlichen Hobbyraums sowie eine Außentreppe.
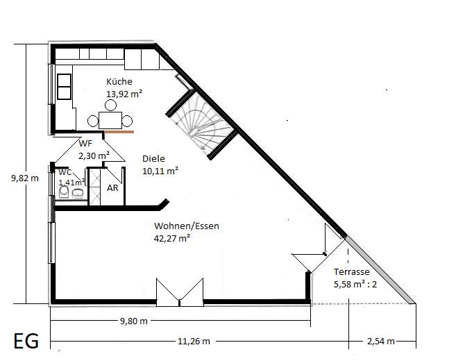
Die großzügige, halboffene und wertige Einbauküche ist umfangreich ausgestattet und lässt kaum Wünsche offen. Sie geht fließend in den üppig dimensionierten Wohn-Essbereich über, welcher komplett gefliest ist. Neben dem Gäste-WC und einem gut dimensionierten Abstellraum präsentieren sich 2 zeitlos moderne Tgl.-Bäder im OG und DG. Das Elternschlafzimmer ist zusätzlich mit einer pfiffigen Loggia versehen.
Entgegen der allgemeinen Praktik ist die Gas-Zentralheizung platzsparend und dezent in einem sep. Räumchen im DG untergebracht. Eine Massivholztreppe (Buche) verbindet die einzelnen Etagen.
Die mit Bäumchen, Hecken und Pflanzen prächtig eingesäumte Außenanlage ist sehr abwechslungsreich gestaltet und in mehreren Ebenen unterteilt. Von der dominierenden Südwest-Terrasse mit Grünfläche aus begeht man ein paar Stufen tiefer einen weiteren Gartenanteil (ebenso nach Südwest) und gelangt in anderer Richtung zum Kfz-Stellplatz.
Signifikanter Handlungsbedarf ist lediglich bei den vorhandenen Teppichböden in den Schlafräumen sowie ggfs. bei der Wandgestaltung zu erkennen, ansonsten präsentiert sich diese unkonventionelle Immobilie in einem sehr guten Zustand!
NEU! "Kinder-Reich" - Expressiv geschnittene "Stadtvilla" mit viel Platz nahe der Europa-Schule!
61118 Bad Vilbel
Die vollständige Adresse der Immobilie erhalten Sie vom Anbieter.
Auf Karte anzeigen
Die vollständige Adresse der Immobilie erhalten Sie vom Anbieter.
Finanzierungszertifikat
In nur zwei Minuten zu Ihrem persönlichen Finanzierungszertifkat.
Infos
| Haustyp | Doppelhaushaelfte |
|---|---|
| Etagenzahl | 2 |
| Wohnfläche ca. | 180 m2 |
| Nutzfläche | 71 m2 |
| Grundstücksfläche | 262 m2 |
| Bezugsfrei ab | sofort |
| Zimmer | 7 |
| Schlafzimmer | 6 |
| Badezimmer | 2 |
| Garage/Stellplatz | Außenstellplatz |
| Anzahl Garage/Stellplatz | 1 |
Kosten
| Kaufpreis |
899.000 € |
|---|---|
| Provision |
26.745,25 2,975 % inkl. MwSt. vom Kaufpreis = hälftiger Provisionsanteil für Käufer u. Verkäufer |
Finanzierungsrechner:
Kaufpreis:
600.000 €
Eigenkapital:
600.000 €
Monatliche Rate
0 €
Effektiver Jahreszins
0 %
Sollzinsbindung
10 Jahre
Bausubstanz & Energieausweis
| Baujahr | 1998 |
|---|---|
| Objektzustand | Gepflegt |
| Qualität der Austattung | Gehoben |
| Heizungsart | Gas-Heizung |
| Wesentliche Energieträger | Gas |
| Energieausweis | liegt vor |
| Energieausweistyp | Verbrauchsausweis |
| Energieverbrauchskennwert | 79,0 kWh/(m²*a) |
Beschreibung des Objekts
Lage
Nur 3 Fuß-Min. zur Europäischen Schule und zur Grundschule!
Hier finden Sie alles was Sie brauchen. Der Stadtteil "Dortelweil-West" bietet eine in sich abgeschlossene komplette perfekte Infrastruktur! Neben der erwähnten Europa-Schule u. einer Grundschule bieten sich ein Kindergarten nebst Kita, Lokalitäten, Bäckerei, Eiscafès, Wochenmarkt, Porta-Möbelhaus, 2 Sporthallen, 18-Loch Golfplatz uvm..
Bushaltestelle nach Bad Vilbel (Zentrum) wie auch die S-Bahnhaltestelle (S6 Richt. Frankfurt bzw. Friedberg) befinden sich in Laufnähe. Fahrrad-/Spazierwege über die Felder und entlang der Nidda schließen sich direkt an. Sie haben in nur 2 Auto-Min. direkten Anschluss an die B3 auf die A661 Richt. Frankfurt (in ca. 10 Min.), Bad Homburg und Richt. Flughafen (ca. 20 Min.).
Sonstige Angaben
Bitte haben Sie Verständnis dafür, dass wir Anfragen ohne vollständige Kontaktangaben (voller Name, Anschrift u. Telefonnummer) nicht bearbeiten werden.
Wir freuen uns auf Ihren Anruf unter 06101-88356 oder 0172-6773986
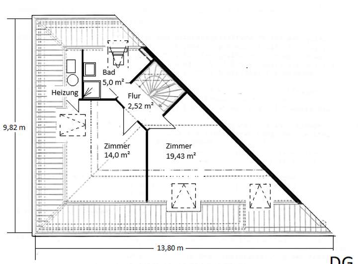
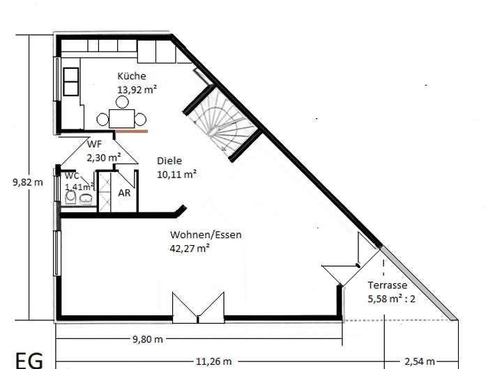
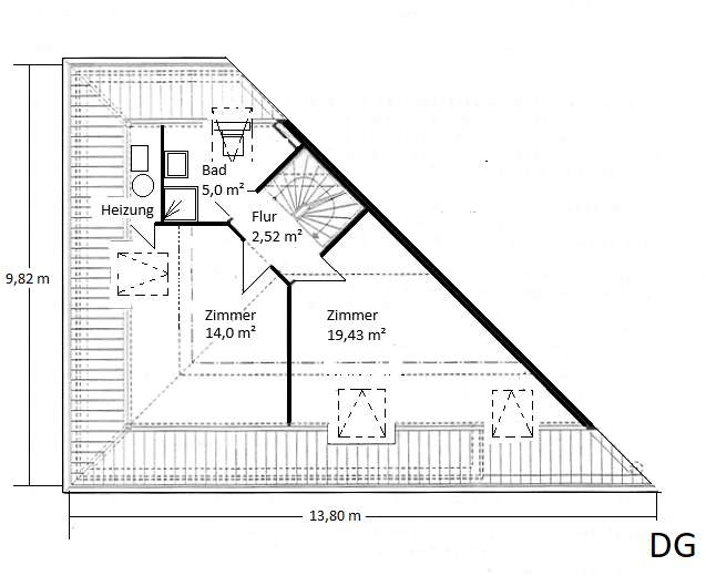
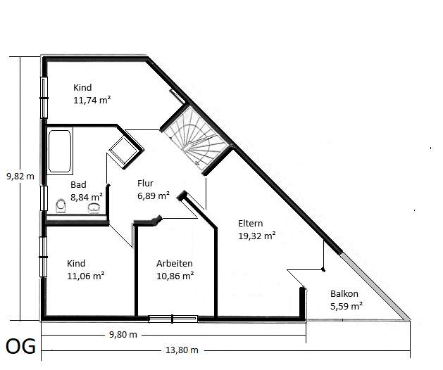
Grundriss
GR KG
>
>
GR EG
>
>
GR OG
>
>
GR DG
>
>
Adresse
61118 Bad Vilbel
Interessante Orte
Preis- und Lageinformationen
Preistrend für Bestandsimmobilien in Bad Vilbel