WICHTIGER HINWEIS VORAB: Bitte berücksichtigen Sie, dass es sich um ein Sanierungsobjekt handelt.
Dieses Haus aus dem Jahr 1961 erzählt seine eigene Geschichte und wartet nun auf jemanden, der es mit neuem Leben füllt. Ob eine Sanierung oder ein kompletter Neubau – hier eröffnen sich Ihnen viele Möglichkeiten. Das Grundstück bietet eine schöne Grünfläche, und das Haus selbst erstreckt sich über zwei Etagen mit einem Untergeschoss und einem zusätzlichen Hobbyraum ca. 20 m².
In den letzten Jahren wurden laut den Eigentümern bereits die Elektrik, die Heizungsrohre sowie die Wasserleitungen erneuert, sodass die Basis für weitere Arbeiten gelegt ist. Fenster und Dach entsprechen noch dem ursprünglichen Baujahr, die ideale Gelegenheit ist, eigene Ideen umzusetzen und das Haus ganz nach den persönlichen Vorstellungen zu gestalten.
Ob für Handwerker mit Leidenschaft oder Bauträger mit Weitblick – dieses Objekt bietet die perfekte Grundlage für ein Projekt mit Zukunft. Der Kauf erfolgt für Sie provisionsfrei.
*Provisionsfrei* Haus Potenzial – teils modernisiert in Liederbach
65835 Liederbach am Taunus
Die vollständige Adresse der Immobilie erhalten Sie vom Anbieter.
Auf Karte anzeigen
Die vollständige Adresse der Immobilie erhalten Sie vom Anbieter.
Finanzierungszertifikat
In nur zwei Minuten zu Ihrem persönlichen Finanzierungszertifkat.
Infos
| Haustyp | Einfamilienhaus |
|---|---|
| Etagenzahl | 2 |
| Wohnfläche ca. | 118 m2 |
| Nutzfläche | 51,66 m2 |
| Grundstücksfläche | 516 m2 |
| Bezugsfrei ab | Sofort |
| Zimmer | 5 |
| Badezimmer | 3 |
| Garage/Stellplatz | Garage |
| Anzahl Garage/Stellplatz | 2 |
Kosten
| Kaufpreis |
539.000 € |
|---|---|
| Provision | Nein |
Finanzierungsrechner:
Kaufpreis:
600.000 €
Eigenkapital:
600.000 €
Monatliche Rate
0 €
Effektiver Jahreszins
0 %
Sollzinsbindung
10 Jahre
Bausubstanz & Energieausweis
| Letzte Sanierung | 2021 |
|---|---|
| Objektzustand | Renovierungsbedürftig |
| Qualität der Austattung | Normal |
| Heizungsart | Gas-Heizung |
| Wesentliche Energieträger | Gas |
| Energieausweis | liegt vor |
| Energieausweistyp | Bedarfsausweis |
| Energieverbrauchskennwert | 210,8 kWh/(m²*a) |
Beschreibung des Objekts
Ausstattung
- Laminat
- Elektrische Rollläden
- Garage mit Solar
Lage
Top Wohnlage in Liederbach
Sonstige Angaben
Auf Anfrage sende ich Ihnen gerne das Exposé sowie alle relevanten Unterlagen zu.
Besichtigungstermine können nach vorheriger Absprache stattfinden. Bitte teilen Sie uns hierfür Ihren vollständigen Namen sowie Ihre Telefonnummer mit.
Für Rückfragen stehe ich Ihnen selbstverständlich auch telefonisch gerne zur Verfügung.
Hinweis: Sämtliche Angaben und Informationen stammen vom Eigentümer. Für deren Richtigkeit und Vollständigkeit übernehmen wir keine Haftung.
Geldwäschegesetz (GwG):
Als Immobilienmaklerunternehmen ist Ariana Real Estate gemäß § 2 Abs. 1 Nr. 14 sowie § 11 Abs. 1 und 2 GwG verpflichtet, bei der Begründung einer Geschäftsbeziehung die Identität des Vertragspartners festzustellen und zu überprüfen – spätestens jedoch, sobald ein ernsthaftes Interesse an dem Abschluss eines Immobilienkaufvertrags besteht.
Hierzu ist es erforderlich, bei natürlichen Personen die relevanten Daten des Personalausweises zu erfassen – in der Regel durch eine Kopie. Bei juristischen Personen benötigen wir eine Kopie des Handelsregisterauszugs, aus dem der wirtschaftlich Berechtigte hervorgeht.
Das Geldwäschegesetz verpflichtet den Makler zur Aufbewahrung dieser Unterlagen für die Dauer von fünf Jahren.
Grundriss
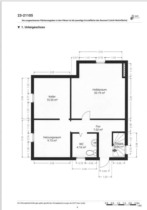
Grundriss UG
>
>
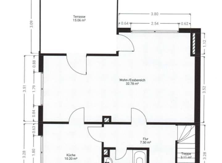
Grundriss EG
>
>
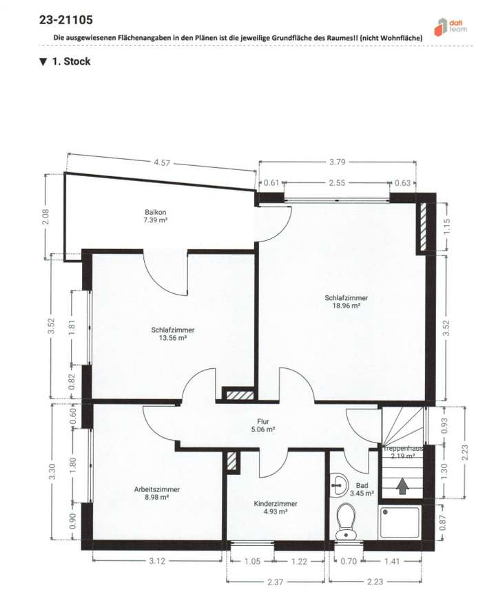
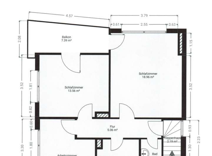
Grundriss 1.OG
>
>
Adresse
65835 Liederbach am Taunus
Interessante Orte
Preis- und Lageinformationen
Preistrend für Bestandsimmobilien in Liederbach am Taunus