Wohnfläche: 172 m² (Haupthaus, inkl. ELW), 84 m² (Loft) - Innenhof: 150 m²
Dieses vielseitige Refugium vereint Wohnen und Arbeiten auf einzigartige Weise – in einem authentischen Ambiente, das Raum für individuelle Konzepte wie Atelier, Studio, Büro, Praxis oder Kosmetiksalon bietet. Selten zuvor waren beide Lebensbereiche so eng miteinander verbunden wie heute. Der Trend, Wohnen und Arbeiten auf dem eigenen Grundstück zu vereinen, nimmt spürbar zu – ganz einfach, weil es praktisch, zeitsparend und lebensnah ist. Dabei ist dieses Gebäudeensemble weit mehr als eine klassische Wohneinheit: Es überrascht mit Charakter, Tiefe und liebevoll bewahrten Details, wie man sie nur selten findet.
Haupthaus:
Dieses überaus großzügige Wohnhaus aus der Zeit um 1900 wirkt zurückhaltend, schlicht und elegant. Mit seinem charaktervollen Erscheinungsbild trägt es die Handschrift einer Epoche, in der Handwerkskunst, Beständigkeit und Raumgefühl untrennbar miteinander verbunden waren.
Im Inneren überzeugt das Haus durch eine durchdachte Raumaufteilung. Hohe Decken und großzügige Zimmer mit zahlreichen Fensterelementen verleihen dem Haus eine besondere Atmosphäre – warm, einladend und voller Geborgenheit.
Das geräumige Obergeschoss wurde teilweise zu einer separaten Einliegerwohnung umgestaltet, lässt sich bei Bedarf jedoch problemlos wieder mit dem Haupthaus verbinden.
Das Haus befindet sich in einem modernisierten und sehr gepflegten Zustand, ein Reparaturstau besteht nicht. Sämtliche Modernisierungsmaßnahmen sind lückenlos dokumentiert.
Ein Loft mit Charakter – aus Stein, Holz und Geschichte
Die ehemalige Dorfschmiede aus dem Jahr 1954 mit bis zu 60 cm starken Bruchsteinmauern wurde im Jahr 2013 in ein außergewöhnliches Loft verwandelt.
Entstanden ist ein „Haus im Haus“, das mit moderner Innenarchitektur in Holzständerbauweise, ökologisch durchdachter Dämmung und einer mitreißenden Raumatmosphäre begeistert.
Das Erdgeschoss mit einer Wohnfläche von rund 84 m² beeindruckt durch seine Offenheit und Deckenhöhen von bis zu vier Metern. Teilweise bodentiefe Fensterfronten im stilvollen Rasterdesign sorgen für Großzügigkeit und Transparenz. Erhalten und elegant integriert wurden die alten Schmiedefenster sowie die hölzernen Eingangstürelemente, die nahtlos in den Innenhofbereich überleiten. Die Vielzahl an Fensterelementen taucht die Räume in ein lebendiges Spiel aus Licht und Schatten, während das offenliegende, sorgfältig erhaltene Dachtragwerk dem Ambiente eine warme und moderne Note verleiht.
Hier dominieren Licht, Luft und Lebensqualität!
3 Wohneinheiten - smart und flexibel nutzbar!
55578 Wallertheim
Die vollständige Adresse der Immobilie erhalten Sie vom Anbieter.
Auf Karte anzeigen
Die vollständige Adresse der Immobilie erhalten Sie vom Anbieter.
Finanzierungszertifikat
In nur zwei Minuten zu Ihrem persönlichen Finanzierungszertifkat.
Infos
| Haustyp | Einfamilienhaus |
|---|---|
| Etagenzahl | 2 |
| Wohnfläche ca. | 256 m2 |
| Nutzfläche | 40 m2 |
| Grundstücksfläche | 382 m2 |
| Bezugsfrei ab | Kurzfristig, nach Vereinbarung |
| Zimmer | 9 |
| Schlafzimmer | 5 |
| Badezimmer | 4 |
| Garage/Stellplatz | Außenstellplatz |
| Anzahl Garage/Stellplatz | 2 |
Kosten
| Kaufpreis |
580.000 € |
|---|---|
| Provision |
2,38 %, inkl. gesetzl. Mehrwertsteuer vom Kaufpreis Die Provision ist verdient und fällig bei notarieller Beurkundung. Wir haben einen Provisionspflichtigen Maklervertrag in gleicher Höhe mit dem Verkäufer abgeschlossen, § 656 c BGB. |
Finanzierungsrechner:
Kaufpreis:
600.000 €
Eigenkapital:
600.000 €
Monatliche Rate
0 €
Effektiver Jahreszins
0 %
Sollzinsbindung
10 Jahre
Bausubstanz & Energieausweis
| Letzte Sanierung | 2020 |
|---|---|
| Bauphase | Haus fertig gestellt |
| Objektzustand | Modernisiert |
| Qualität der Austattung | Gehoben |
| Heizungsart | Zentralheizung |
| Wesentliche Energieträger | Gas |
| Energieausweis | liegt vor |
| Energieausweistyp | Bedarfsausweis |
| Energieverbrauchskennwert | 118,0 kWh/(m²*a) |
Beschreibung des Objekts
Ausstattung
Die Highlights im Überblick:
* Repräsentatives Gebäudeensemble, kein Denkmalschutz,
* Sehr gepflegter Objektgesamtzustand,
* Wertbeständige, massive Bauweise,
* Modernisiertes, sehr gepflegtes Wohnhaus mit Einliegerwohnung,
* Praktische Raumaufteilung, sehr geräumige und helle Zimmer,
* 5 Zimmer, 3 Bäder, Balkon, 2 Küchen (inkl. Einbauküchen),
* 3fach verglaste Kunststofffenster,
* Freitragende Treppe mit Marmorstufen, Schmiedeeisengeländer (Maßanfertigung, Handarbeit),
* Parkettboden im Obergeschoss (ELW),
* Festbrennstoffherd in der Küche sowie zwei Kaminöfen,
* Gedämmte Geschossdecke, begehbarer Dachboden mit großzügigem Stauraum,
* Photovoltaik-Anlage auf dem Dach,
* Energiebedarfsausweis (Haupthaus): Energiebedarf: 167,5 kWh (m²*a),
* Ausbau als Loft 2013 – „Haus im Haus“,
* Deckenhöhen von bis zu vier Metern,
* Teilweise bodentiefe Fensterfronten im stilvollen Rasterdesign,
* Denkbar auch viele andere Nutzungsrichtungen, z.B. als Atelier, Studio, Büro, Praxis, Kosmetiksalon, etc.,
* Alle Räume sind mit Netzwerkkabel ausgestattet,
* 3 Zimmer mit integrierter Küche und Bad,
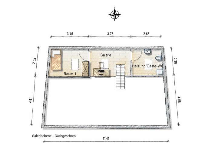
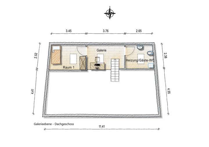
* Galerieebene mit weiterem Zimmer und Gäste-WC,
* Teilweise Fliesen- und Laminatböden,
* Maßgeschneiderte Einbauküche, Kaminofen,
* Überdachte Terrasse,
* Energiebedarfsausweis (Loft): Energiebedarf: 118 kWh (m²*a),
* Energieeffiziente Fußbodenheizung,
* Jede Gebäudeeinheit hat seine eigene Gas-Brennwertheizung (Buderus),
* Anschlüsse wie z.B. Wasser, Abwasser, Strom sind für beide Gebäudeeinheiten voneinander getrennt,
* Beide Bauten eignen sich hervorragend zur Eigennutzung oder auch Fremdvermietung,
* Soeben freigeworden und kann zeitnah bezogen werden
* PKW-Stellplätze direkt vor der Loft,
* Geräumiger Innenhof, ca. 150 m²,
* Kein Garten.
Für Gartenliebhaber gibt es die Möglichkeit, einen nahegelegenen separaten Garten (ca. 700 m²) gegen einen „freundschaftlichen“ Aufpreis zu erwerben.
Zusätzlich kann bei Bedarf die gegenüberliegende Scheune zur Erweiterung der Nutz-, Abstell- oder Lagerfläche gegen Aufpreis erworben werden.
Lage
Wohnen im Herzen von Wallertheim – zentral, komfortabel und gut erreichbar. Wallertheim ist ein historisch gewachsener Weinort in der Verbandsgemeinde Wörrstadt und befindet sich rund eine halbe Autostunde südwestlich von Mainz und etwa 16 km nordwestlich von Alzey entfernt.
Der historische Ortskern ist geprägt von barocken Hofanlagen, liebevoll erhaltenen Fachwerkhäusern und einer lebendigen Dorfgemeinschaft, eine Umgebung, die Geschichte atmet und zugleich modernes Leben ermöglicht.
Eingebettet in eine reizvolle Naturlandschaft, umgeben von Weinbergen, Feldern und dem nahegelegenen Wißberg, bietet Wallertheim ideale Voraussetzungen für naturnahes Wohnen mit hohem Freizeitwert.
Die örtliche Infrastruktur überzeugt mit kurzen Wegen: Eine Grundschule, eine Kindertagesstätte, Allgemein- und Zahnärzte sowie diverse Handwerks- und Dienstleistungsbetriebe sichern die alltägliche Versorgung. Zwei Cafés, ein Restaurant, mehrere Weingüter und Straußwirtschaften sorgen für gastronomische Vielfalt. Ein Dorfladen ist in Planung, zusätzliche Einkaufsmöglichkeiten befinden sich in den nahegelegenen Orten Armsheim und Gau-Bickelheim.
Die Wohnlage ist ruhig und dennoch zentral. In wenigen Gehminuten erreicht man den Bahnhof mit regelmäßiger Anbindung in Richtung Alzey, Mainz, Bingen, Worms und Kirchheimbolanden. Die Bundesstraße B420 durchquert den Ort und ermöglicht eine zügige Anbindung an die Autobahnen A61 (ca. 4 km) und A63 (ca. 6 km). So sind auch die Wirtschaftsräume Rhein-Main und Rhein-Neckar in etwa 30 bis 40 Minuten gut erreichbar.
Ein reges Vereinsleben, vielfältige Sportmöglichkeiten und traditionsreiche Weinfeste machen Wallertheim zu einem lebens- und liebenswerten Ort – ideal für alle, die eine Kombination aus ländlicher Idylle, guter Infrastruktur und urbaner Nähe suchen.
Sonstige Angaben
Wir freuen uns auf Ihre Anfrage!
Bitte haben Sie Verständnis, dass wir nur Anfragen mit vollständig ausgefüllten Adressdaten, inkl. Vor- und Zuname, Anschrift, Telefon-/Mobilnummer und E-Mail-Adresse bearbeiten können. Eine Versendung an E-Mail-Anschriften anonymer Interessenten wird von dem Eigentümer ausdrücklich nicht gewünscht.
Unser Internet-Kurz-Exposé kann nur bedingt auf alle Einzelheiten dieses Objektes eingehen.
Erst eine Besichtigung vor Ort wird Sie schlüssig über den Gesamteindruck informieren.
Alle Angaben wurden nach bestem Wissen und Gewissen erstellt. Wir übernehmen keine Gewähr für die Vollständigkeit, Richtigkeit und Aktualität dieser Angaben. Es handelt sich lediglich um eine Beschreibung und nicht um zugesicherte Eigenschaften. Änderungen wie Irrtum, Zwischenverkauf und Zwischenvermietung bleiben vorbehalten. Die Grundrisse sind nicht maßstabsgerecht und dienen lediglich der Veranschaulichung. Das vorliegende Exposé ist als unverbindliche Information zu verstehen und kann nicht als Rechtsgrundlage herangezogen werden. Rechtskräftig ist ausschließlich der notariell abgeschlossene Kaufvertrag.
Grundriss
Erdgeschoss (HH)
>
>
Obergeschoss (HH) mit ELW
>
>
Loft, Erdgeschoss
>
>
Loft, Dachgeschoss - Galerieeb
>
>
Adresse
55578 Wallertheim
Interessante Orte
Preis- und Lageinformationen
Preistrend für Bestandsimmobilien in Wallertheim