Wir präsentieren Ihnen ein exklusiv geplantes Reihenendhaus – als Bestandteil einer modernen Wohnanlage aus zwei nach Wohnungseigentümergesetzt geteilten Wohnkomplexen mit je zwei Reihenendhäusern und einem Reihenmittelhaus. Schlüsselfertig. Nicht unterkellert.
Die Häuser werden im Energiestandard KfW 40 errichtet. Sie erfüllen darüber hinaus die Kriterien der
Nachhaltigkeitsbewertung von neu zu errichtenden Wohngebäuden (BNK/BNG) sowie die Anforderungen des Qualitätssiegel "Nachhaltiges Gebäude Plus“ (QNG).
Die hochwertig gestaltete Immobilie bietet Ihnen genau das, was Sie sich wünschen:
Privatsphäre, modernes Wohnen und komfortable Räume.
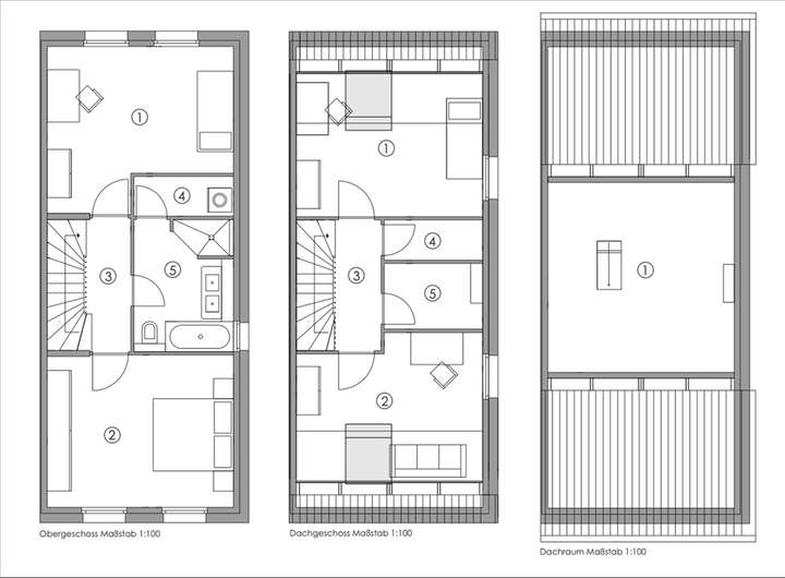
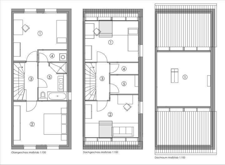
EG: Wohn- / Esszimmer, Küche, Flur, Vorratsraum, Gäste-WC, Terrasse
OG: Zwei Schlafzimmer, Flur, Hauswirtschaftsraum, Badezimmer
DG: zwei Schlafzimmer, Flur, zwei Abstellräume
Dachraum: ein Abstellraum
Jedes Reihenhaus verfügt über einen separaten Gartenanteil, ideal zum Entspannen, Spielen und Grillen.
Bauweise nach neuestem Standard: Hochwertige Materialien, klare Linien, zeitloses Design; lichtdurchflutete Räume durch große Fenster.
* Bauwerksvertrag mit einer garantierten Bauzeit von 10 Monaten.
Die Käuferprovision von 3,57 % ist nur auf den beurkundeten Grundstückspreis zu zahlen.
Sie beträgt je nach Grundstücksgröße ca. 10.000,-- € inkl. MwSt.
***Ihr neues Eigenheim***projektiertes, exklusives Reihenendhaus***KfW 40 QNG Plus
63110 Rodgau
Die vollständige Adresse der Immobilie erhalten Sie vom Anbieter.
Auf Karte anzeigen
Die vollständige Adresse der Immobilie erhalten Sie vom Anbieter.
Finanzierungszertifikat
In nur zwei Minuten zu Ihrem persönlichen Finanzierungszertifkat.
Infos
| Haustyp | Reiheneckhaus |
|---|---|
| Etagenzahl | 3 |
| Wohnfläche ca. | 140 m2 |
| Nutzfläche | 42,34 m2 |
| Grundstücksfläche | 0 m2 |
| Zimmer | 5 |
| Schlafzimmer | 4 |
| Badezimmer | 1 |
Kosten
| Kaufpreis |
720.000 € |
|---|---|
| Provision |
Die Käuferprovision beträgt 3,57 % inkl. MwSt. aus dem beurkundeten Kaufpreis für das GRUNDSTÜCK. |
Finanzierungsrechner:
Kaufpreis:
600.000 €
Eigenkapital:
600.000 €
Monatliche Rate
0 €
Effektiver Jahreszins
0 %
Sollzinsbindung
10 Jahre
Bausubstanz & Energieausweis
| Baujahr | 2026 |
|---|---|
| Bauphase | Haus in Planung (projektiert) |
| Objektzustand | Erstbezug |
| Qualität der Austattung | Gehoben |
| Heizungsart | Fußbodenheizung |
Beschreibung des Objekts
Ausstattung
Die Grundausstattung des Hauses entspricht der angefügten Bau- und Leistungsbeschreibung.
Gleichzeitig besteht die Möglichkeit, eigene Wünsche und Anpassungen einzubringen. Wir prüfen diese gerne individuell und besprechen Machbarkeit, Zeitrahmen sowie Kosten, um eine passende Lösung zu finden.
* Fußbodenheizung im Erdgeschoss
* elektrische Rollläden
* Luft-Wasser-Wärmepumpe
* Kunststofffenster mit 3fach Verglasung
* KfW40 Qualitätssiegel "Nachhaltiges Gebäude Plus“ (QNG)
* hochwertige Ausstattung
* Wände in Q2 Qualität
Optional können zwei PKW-Stellplätze erworben werden. Preis pro Stellplatz 10.000,-- €.
Lage
Die Immobilie finden Sie in lebendiger Gegend in Rodgau.
In Lauf Nähe gibt es verschiedene Restaurants, Bäckereien, zwei Ärzte und einen Supermarkt. Mehrere Kindertagesstätten und hervorragende Schulen. Fitnessstudios, Friseure, ein Museum, eine
Postannahmestelle und eine Apotheke finden Sie ebenfalls vor Ort.
Der öffentliche Personennahverkehr ist über die Buslinie 58 angebunden.
Sehr gute Anbindung zur B45 und A3.
Sonstige Angaben
HINWEIS!
Eigentümerangaben
Wir weisen darauf hin, dass die von uns weitergegebenen Objektinformationen, Unterlagen, Pläne etc. vom Veräußerer bzw. von einem Veräußerer beauftragten Dritten stammen, oder Vermieter stammen. Eine Haftung für die Richtigkeit oder Vollständigkeit der Angaben übernehmen wir daher nicht. Es obliegt daher unseren Kunden die darin enthaltenen Objektinformationen und Angaben auf ihre Richtigkeit hin zu überprüfen. Die Angebote des Maklers sind freibleibend und unverbindlich, Zwischenverkauf-, Vermietung und Verpachtung bleiben vorbehalten.
-----------
Wir bitten um Verständnis, dass wir Anfragen nur bearbeiten können, wenn wir folgende Angaben von Ihnen haben:
Name, Vorname, Anschrift, Telefon-Nr., Mobil-Nr., E-mail-Adresse.
Das Geldwäschegesetz (GwG) verpflichtet Makler zur Dokumentationspflicht über ihre Kundenkontakte vor Begründung einer Geschäftsbeziehung. Hierzu müssen wir die Daten Ihres Personalausweises festhalten. Dies kann erfolgen durch eine von Ihnen eingereichte Kopie oder durch ein Foto des Personalausweises. Diese können Sie uns gerne schon mit Ihrer Anfrage per e-mail zukommen lassen. Die Dokumente müssen mindestens fünf Jahre lang aufbewahrt werden. Wir bitten um Ihr Verständnis.
Selbstverständlich eröffnen sich mit dem Kauf einer Immobilie auch Fragen, die in keinem Exposé beantwortet werden können. Wir stehen Ihnen deshalb gerne und kompetent für nähere Informationen sowie für einen Besichtigungstermin zur Verfügung.
Weitere Dokumente
ESTATE BB Haustyp 141 StandardESTATE Rodgau V1 150525
Grundriss
Grundrisse
>
>
Wohn- und
>
>
Adresse
63110 Rodgau
Interessante Orte
Preis- und Lageinformationen
Preistrend für Bestandsimmobilien in Rodgau