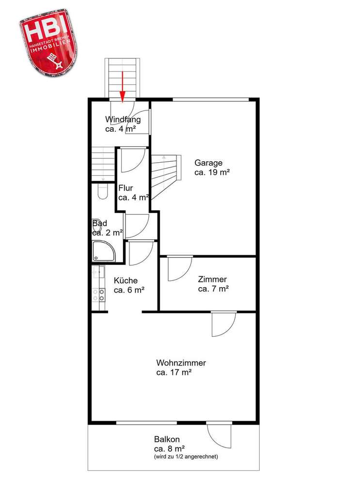
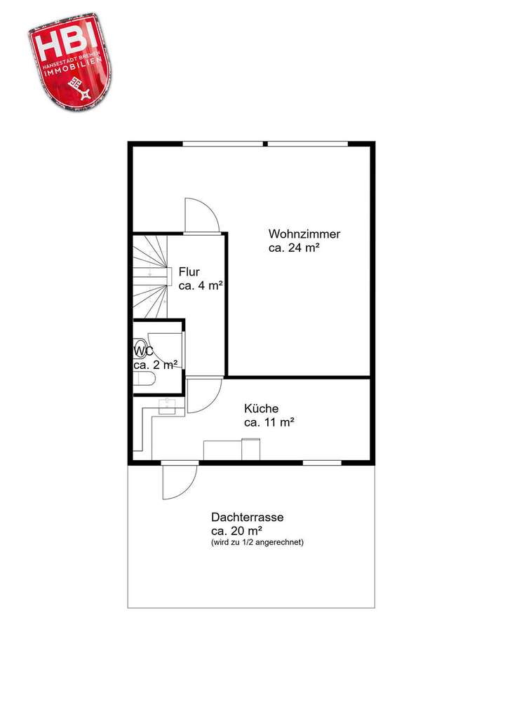
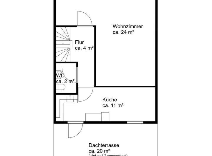
Dieses gepflegte Zweifamilienhaus verfügt über eine Wohnfläche von ca. 127 m² und befindet sich in ruhiger Lage im Bremer Stadtteil Gröpelingen. Die Immobilie ist in zwei separate Wohneinheiten aufgeteilt und bietet sowohl für Kapitalanleger als auch für Eigennutzer interessante Möglichkeiten. Die Wohnung im Erdgeschoss umfasst ca. 40 m² und besteht aus zwei Zimmern, einem Badezimmer sowie einer Küche. Durch die clevere Raumaufteilung eignet sich diese Einheit ideal für Singles oder Paare. Die zweite Wohneinheit erstreckt sich als Maisonette über das Ober- und Dachgeschoss und bietet mit ca. 83 m² Wohnfläche viel Platz für eine Familie. Sie verfügt über drei Zimmer, ein Tageslichtbad, ein Gäste-WC, eine Dachterrasse sowie eine voll ausgestattete Küche. Zusätzlich steht eine Nutzfläche von ca. 73 m² zur Verfügung, die vielseitig genutzt werden kann.
Gröpelingen / Gepflegtes Zweifamilienhaus mit Garage
28239 Bremen
Die vollständige Adresse der Immobilie erhalten Sie vom Anbieter.
Auf Karte anzeigen
Die vollständige Adresse der Immobilie erhalten Sie vom Anbieter.

Finanzierungszertifikat
In nur zwei Minuten zu Ihrem persönlichen Finanzierungszertifkat.
Infos
Haustyp | Sonstige |
---|---|
Wohnfläche ca. | 127 m2 |
Nutzfläche | 73 m2 |
Grundstücksfläche | 171 m2 |
Zimmer | 5 |
Garage/Stellplatz | Garage |
Anzahl Garage/Stellplatz | 1 |
Kosten
Kaufpreis |
239.000 € |
---|---|
Provision |
5,95 % inkl. 19 % MwSt. |
Finanzierungsrechner:
Kaufpreis:
600.000 €
Eigenkapital:
600.000 €
Monatliche Rate
0 €
Effektiver Jahreszins
0 %
Sollzinsbindung
10 Jahre
Bausubstanz & Energieausweis
Baujahr | 1910 |
---|---|
Heizungsart | Zentralheizung |
Wesentliche Energieträger | Öl |
Energieausweis | liegt vor |
Energieausweistyp | Bedarfsausweis |
Energieverbrauchskennwert | 165,2 kWh/(m²*a) |
Energieeffizienzklasse | F |
165,2
kWh/(m²*a)
Energieeffizienzklasse F
- A+
- A
- B
- C
- D
- E
- F
- G
- H
- 0
- 25
- 50
- 75
- 100
- 125
- 150
- 175
- 200
- 225
- >250
Beschreibung des Objekts
Ausstattung
- Einbauküche - Balkon - Dachterrasse - Vollkeller - Waschküche - Garage
Lage
Die Immobilie befindet sich im Stadtteil Bremen - Gröpelingen. Ärzte, Apotheken, Schulen, Kindergärten und Einkaufsmöglichkeiten wie zum Beispiel die beliebte Waterfront befinden sich in unmittelbarer Nähe. In der Umgebung sind diverse Freizeitmöglichkeiten wie die Eissporthalle Paradise und das dazugehörige Hallenbad vorhanden. Eine optimale Anbindung an den ÖPNV gewährleistet schnelle Erreichbarkeit der Bremer Innenstadt, des Bremer Hauptbahnhofs sowie des Bremer Flughafens. Der Autobahnzubringer der A 27 ist ebenfalls in wenigen Minuten zu erreichen.
Sonstige Angaben
Wissen Sie schon, wie viele Immobilie Sie sich leisten möchten? Mit unserem Partner HBI Finanz GmbH können Sie gemeinsam Ihren finanziellen Spielraum errechnen. Zur Zeit bietet Ihnen die HBI Finanz GmbH sogar Zinsfestschreibungen bis zu 30 Jahren und das ganz ohne Eigenkapital. Für eine kostenlose und unverbindliche Beratung sprechen Sie uns gerne jederzeit an!
Grundriss
Erdgeschoss
>

Obergeschoss
>

Dachgeschoss
>

Kellergeschoss
>

Adresse
28239 Bremen
Interessante Orte
Preis- und Lageinformationen
Preistrend für Bestandsimmobilien in Ohlenhof