Dieses großzügige und freistehende 3-Familienhaus mit 2 PKW-Stellplätzen auf einem ca. 755 m² großen Grundstück präsentiert sich in sehr gesuchter Wohnlage von Offenbach und bietet insgesamt ca. 229 m² Wohnfläche.
Eine Baugenehmigung für ein weiteres 3 Familienhaus auf dem Grundstück liegt bereits vor. Es können insgesamt ca. 165,53 m² Wohnfläche sowie 3 PKW-Carportstellplätze gebaut werden.
Alle 3 Wohnungen sowie die 2 PKW-Stellplätze sind vermietet. Die Nettomiete für alle vermieteten Einheiten liegt bei 27.720€ jährlich.
Die Wohnungen befinden sich in einem guten und überwiegend modernisierten Zustand. Insbesondere die Wohnung im 1. Obergeschoss wurde seit dem Jahr 2014 umfassend modernisiert. Dabei sind u.a. die Elektrik, die Wasserleitungen, die Bäder und die Böden erneuert worden. Das Bad in der Dachgeschosswohnung wurde in den 90er Jahren saniert.
Das Haus wurde laufend instandgehalten. So wurden z.B. im Jahr 2014 der Heizkessel und der Warmwasserboiler sowie die Hauseingangstür erneuert. Die Balkone wurden im Jahr 2014 saniert und verlängert.
Weitere Details zu erfolgten Modernisierungen können wir Ihnen auf Anfrage mitteilen.
Die 3 Zimmerwohnungen im Erdgeschoss und 1. Obergeschoss bieten jeweils ca. 80 m² Wohnfläche verteilt auf zwei Schlafzimmer, ein Wohnzimmer, eine Küche, einen Flur, ein Tageslichtbad sowie einen Balkon.
Die Wohnung im Dachgeschoss hat die gleiche Grundrissaufteilung wie die Wohnung im 1. Obergeschoss bietet jedoch aufgrund der Dachschrägen ca. 71,13 m² Wohnfläche.
Das Haus ist voll unterkellert. Die 2 PKW-Außenstellplätze runden das Angebot ab.
Nutzen Sie die Gelegenheit und vereinbaren Sie einen Beratungs- und Besichtigungstermin für diese besondere Immobilie mit uns.
Modernisiertes 3 Familienhaus inkl. Baugenehmigung für ein weiteres 3 FH - Gute Wohnlage!
63071 Offenbach am Main
Die vollständige Adresse der Immobilie erhalten Sie vom Anbieter.
Auf Karte anzeigen
Die vollständige Adresse der Immobilie erhalten Sie vom Anbieter.
Finanzierungszertifikat
In nur zwei Minuten zu Ihrem persönlichen Finanzierungszertifkat.
Infos
| Haustyp | Mehrfamilienhaus |
|---|---|
| Etagenzahl | 3 |
| Wohnfläche ca. | 229 m2 |
| Nutzfläche | 71 m2 |
| Grundstücksfläche | 755 m2 |
| Bezugsfrei ab | vermietet |
| Zimmer | 9 |
| Schlafzimmer | 6 |
| Badezimmer | 3 |
| Garage/Stellplatz | Außenstellplatz |
| Anzahl Garage/Stellplatz | 2 |
Kosten
| Kaufpreis |
940.000 € |
|---|---|
| Provision |
3,57 % inkl. ges. MwSt. |
| Mieteinnahmen | 2.310 € |
Finanzierungsrechner:
Kaufpreis:
600.000 €
Eigenkapital:
600.000 €
Monatliche Rate
0 €
Effektiver Jahreszins
0 %
Sollzinsbindung
10 Jahre
Bausubstanz & Energieausweis
| Baujahr | 1956 |
|---|---|
| Letzte Sanierung | 2014 |
| Bauphase | Haus fertig gestellt |
| Objektzustand | Modernisiert |
| Qualität der Austattung | Normal |
| Heizungsart | Zentralheizung |
| Wesentliche Energieträger | Gas |
| Energieausweis | liegt vor |
| Energieausweistyp | Verbrauchsausweis |
| Energieverbrauchskennwert | 119,4 kWh/(m²*a) |
| Energieeffizienzklasse | D |
119,4
kWh/(m²*a)
Energieeffizienzklasse D
- A+
- A
- B
- C
- D
- E
- F
- G
- H
- 0
- 25
- 50
- 75
- 100
- 125
- 150
- 175
- 200
- 225
- >250
Beschreibung des Objekts
Ausstattung
+ gesuchte Wohnlage
+ Baugenehmigung für weiteres 3 FH
+ voll unterkellert
+ 2 modernisierte Bäder
+ Wasserleitungen im 1. OG im Jahr 2014 saniert
+ Elektrik im 1. OG im Jahr 2014 saniert
+ Balkone
+ 2 PKW-Stellplätze
Lage
Offenbach gilt als Geheimtipp und bietet durch sein facettenreiches Angebot an Kultur, Freizeit und Gastronomie für jeden viel zu entdecken und lernen. Weitläufige Grünflächen, vielfältige Gastronomie, urbane Quartiere und kulturelle Einrichtungen sorgen u. a. dafür das Offenbach ein attraktiver Wohnort mit hohem Freizeitwert ist.
Das Haus befindet sich in einer sehr attraktiven und beliebten Wohnlage des Offenbacher Buchhügels in der Nähe zur Innenstadt.
In der Umgebung des Hauses ist vieles über kurze Wege fußläufig zu erreichen. So befinden sich beispielsweise Kindergärten, Schulen, Ärzte und Apotheken sowie ein Supermarkt in der näheren Umgebung.
Die Offenbacher Innenstadt ist fußläufig in ca. 15 Minuten zu erreichen und bietet viele weitere Einkaufsmöglichkeiten. Vor allem der weit über die Stadtgrenzen hinaus bekannte Wochenmarkt sowie das breite Gastronomieangebot am beliebten Wilhelmsplatz sind jederzeit einen Besuch wert.
Der Offenbacher Buchhügel verfügt über eine hervorragende Infrastruktur mit guter Anbindung an den ÖPNV und das öffentliche Straßennetz nach Frankfurt, zum Frankfurter Flughafen sowie nach Hanau. Die S-Bahn-Station Offenbach Ost ist fußläufig in ca. 10 Minuten zu erreichen, von welcher vier S-Bahnlinien nach Frankfurt fahren.
Sonstige Angaben
Alle in dieser Internet-Präsenz zur Verfügung gestellten Informationen sind ein Service der Servicegesellschaft der Sparkasse Offenbach mbH und ersetzen eine persönliche Beratung nicht.
Die Angaben sind freibleibend und unverbindlich. Sie erfolgen im Namen des Verkäufers, insoweit ist Irrtum vorbehalten.
Gleiches gilt auch für alle anderen Internet-Präsenzen, auf die mittels Hyperlink verwiesen wird. Die Servicegesellschaft der Sparkasse Offenbach mbH ist für den Inhalt und den einwandfreien Betrieb der Seiten, die aufgrund einer solchen Verbindung erreicht werden, nicht verantwortlich und kann keinerlei Haftung oder Garantie übernehmen. Dort genannte Empfehlungen und Meinungen müssen nicht der Meinung der Servicegesellschaft der Sparkasse Offenbach mbH entsprechen.
Die Informationen dieser Internet-Präsenz dürfen weder verändert noch verfälscht werden. Eine Weitergabe oder Vervielfältigung bzw. die Linksetzung auf diese Internet-Präsenz bedarf unserer Genehmigung. Die verwendeten Bilder und Grafiken dürfen nicht kopiert oder weiterverwendet werden.
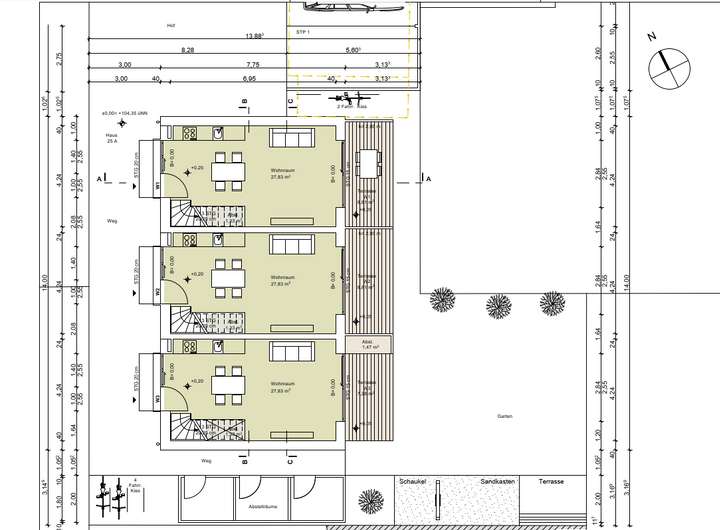
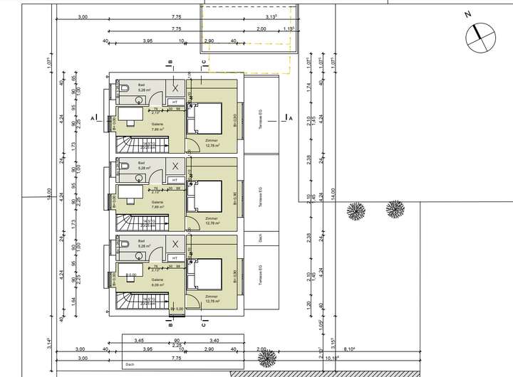
Grundriss
Grundriss Erdgeschoss
>
>
Grundriss 1. Obergeschoss
>
>
Grundriss Dachgeschoss
>
>
Grundriss Kellergeschoss
>
>
Adresse
63071 Offenbach am Main
Interessante Orte
Preis- und Lageinformationen
Preistrend für Bestandsimmobilien in Stadtmitte