Herzlich willkommen zu diesem einzigartigen Immobilienangebot – einem liebevoll sanierten Doppelhaus, das durch seine vielseitigen Nutzungsmöglichkeiten und moderne Ausstattung besticht.
Objektbeschreibung:
Das ursprüngliche Haus wurde im Jahr 1950 erbaut und im Jahr 2016 umfassend kernsaniert. Dabei wurde es energetisch auf den KFW-85-Standard gebracht, was für effiziente Heiz- und Energiekosten sorgt. Das Haus verfügt über eine Wohnfläche von ca. 90 m², die auf zwei separate Wohneinheiten verteilt sind. Zusätzlich steht ein ca. 55 m² großer Keller zur Verfügung, der viel Stauraum bietet. Eine große, überdachte Terrasse lädt zum Verweilen im Freien ein und ist perfekt für gesellige Stunden oder entspannte Abende. Beide Wohneinheiten in diesem Doppelhaus sind derzeit vermietet, was für eine stabile Einkommensquelle sorgt. Das Objekt ist somit eine attraktive Kapitalanlage.
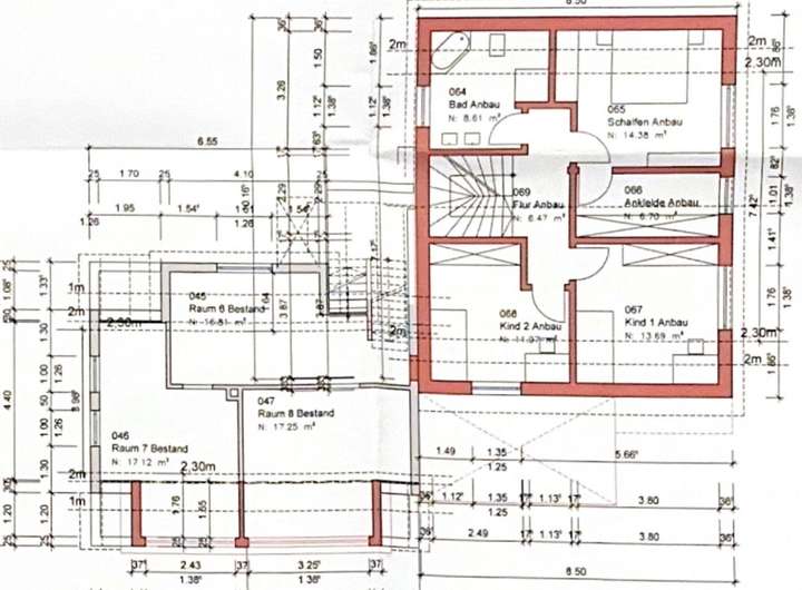
Im Jahr 2016 wurde das Haus durch einen modernen Anbau erweitert, der weiteren Wohnraum schafft. Dieser bietet ca. 135 m² Wohnfläche – ideal für Familien, Wohngemeinschaften oder als flexible Nutzung für Gäste und Monteure. Der Anbau ist mit einer hochmodernen Wärmepumpen-Heizung ausgestattet, was für nachhaltigen Komfort sorgt.
Derzeit werden die 8 Zimmer im Anbau als Fremden- bzw. Monteurzimmer vermietet, was eine attraktive Einkommensquelle darstellt. Auf Wunsch kann der Eigentümer den ursprünglichen Grundriss wiederherstellen, um die Immobilie in eine klassische Familienresidenz umzuwandeln.
Rendite:
Das gepflegte Zweifamilienhaus ist derzeit vermietet und bietet eine solide und zuverlässige Einnahmequelle. Die monatliche Kaltmiete beträgt 1.060 Euro, was einer Jahresnettomiete von 12.720 Euro entspricht.
Das Nebengebäude mit den Monteurwohnungen wertet die Vermietungssituation weiter auf und bietet zusätzliche Einkommensmöglichkeiten von ca. 2500 ,- Euro monatlich. Je nach Vermietungslage.
Attraktives Doppelhaus mit Potenzial / Finanzierung durch Mieteinnahmen in begehrter Lage
38554 Weyhausen
Die vollständige Adresse der Immobilie erhalten Sie vom Anbieter.
Auf Karte anzeigen
Die vollständige Adresse der Immobilie erhalten Sie vom Anbieter.
Finanzierungszertifikat
In nur zwei Minuten zu Ihrem persönlichen Finanzierungszertifkat.
Infos
| Haustyp | Mehrfamilienhaus |
|---|---|
| Etagenzahl | 2 |
| Wohnfläche ca. | 225 m2 |
| Nutzfläche | 0 m2 |
| Grundstücksfläche | 706 m2 |
| Bezugsfrei ab | sofort |
| Zimmer | 12 |
| Schlafzimmer | 0 |
| Badezimmer | 4 |
| Garage/Stellplatz | Außenstellplatz |
| Anzahl Garage/Stellplatz | 4 |
Kosten
| Kaufpreis |
489.000 € |
|---|---|
| Preis für Garage/Stellplatz | 0 € |
| Provision |
3,57 % vom Kaufpreis (inkl. MwSt.) Die vom Käufer zu zahlende Provision beträgt 3,57 % vom Kaufpreis und ist nach Abschluss eines notariellen Kaufvertrages zur Zahlung fällig. Alle Daten in diesem Exposé beruhen auf Angaben des jeweiligen Verkäufers (Eigentümers). |
Finanzierungsrechner:
Kaufpreis:
600.000 €
Eigenkapital:
600.000 €
Monatliche Rate
0 €
Effektiver Jahreszins
0 %
Sollzinsbindung
10 Jahre
Bausubstanz & Energieausweis
| Baujahr | 2016 |
|---|---|
| Objektzustand | Gepflegt |
| Qualität der Austattung | Normal |
| Heizungsart | Zentralheizung |
Beschreibung des Objekts
Ausstattung
Zweifamilienhaus:
- KFW 85 Haus
- 2014 kernsaniert
- neues Dach
- neue Elektrik
- neue Fenster 3-fach verglast
- 2 Wohneinheiten
- Keller
- große überdachte Terrasse
- Carport für Fahrräder etc.
- Parkplätze direkt vorm Haus
Anbau:
- KFW 70 Haus
- Wärmepumpe
- 3-fach Verglasung
- 8 Zimmer zum Vermieten z.B. als Fremdenzimmer/Monteurzimmer
- 2 Bäder
- Badewanne und Dusche
- Terrasse/Garten
Lage
Weyhausen ist ein Ortsteil der Gemeinde Boldecker Land im Landkreis Gifhorn, Niedersachsen. Die Lage des Ortes zeichnet sich durch eine ruhige, ländliche Umgebung aus, die aber trotzdem gut an wichtige Verkehrsachsen und infrastrukturelle Einrichtungen angebunden ist.
Lage:
Weyhausen liegt etwa 10 km nordwestlich der Stadt Gifhorn und ist sowohl über die Bundesstraße B4 als auch über die A39 gut erreichbar. Die Nähe zur A2 ermöglicht eine schnelle Anbindung an größere Städte wie Braunschweig (ca.36km) , Hannover und Wolfsburg (ca. 9km). Der Ort ist von einer abwechslungsreichen Natur geprägt, mit Wäldern und Feldern in der Umgebung.
Infrastruktur:
Verkehrsanbindung: Wie bereits erwähnt, bietet die Lage von Weyhausen eine gute Anbindung an die Autobahn A39 sowie an die B4, die beide für Pendler und den regionalen Verkehr wichtig sind. Auch mit dem Auto erreicht man Städte wie Wolfsburg und Braunschweig in relativ kurzer Zeit.
Öffentliche Verkehrsmittel: Der Ort ist durch Buslinien an benachbarte Städte und Gemeinden angebunden, sodass auch ohne Auto eine Mobilität gewährleistet ist.
Einkaufsmöglichkeiten: In und um Weyhausen gibt es kleinere Geschäfte für den täglichen Bedarf. Für größere Einkäufe bietet sich das nahe Gifhorn oder Wolfsburg an, wo eine größere Auswahl an Supermärkten und Fachgeschäften zur Verfügung steht.
Bildung: In Weyhausen gibt es Einrichtungen für die frühkindliche Betreuung, wie Kindergärten, Krippen, Grundschule und die erweiterte Schule.
Gesundheitsversorgung: Weyhausen bietet eine Grundversorgung an medizinischen Einrichtungen, wie Arztpraxen. Für spezialisierte Versorgung ist Gifhorn oder Wolfsburg der nächste Anlaufpunkt mit Kliniken und spezialisierten Ärzten.
Die Kombination aus guter Verkehrsanbindung, ländlicher Ruhe und Nähe zu größeren Städten macht Weyhausen zu einem attraktiven Wohnort für Menschen, die das Beste aus beiden Welten schätzen – Ruhe und ländliches Flair, aber auch eine gute Erreichbarkeit urbaner Angebote.
Sonstige Angaben
Die vom Käufer zu zahlende Provision beträgt 3,57 % vom Kaufpreis und ist nach Abschluss eines notariellen Kaufvertrages zur Zahlung fällig. Alle Daten in diesem Exposé beruhen auf Angaben des jeweiligen Verkäufers (Eigentümers)
Die Objektangaben wurden mit großer Sorgfalt zusammengestellt. Für die Richtigkeit der Verkäufer-, Anbieter- und Angebotsangaben können wir keine Haftung übernehmen. Irrtümer bleiben vorbehalten.
Adresse
38554 Weyhausen
Interessante Orte
Preis- und Lageinformationen
Preistrend für Bestandsimmobilien in Weyhausen