Diese Immobilie präsentiert sich in erstklassiger Vorstadtlage und bietet Bewohnern mit Freude an Outdoor-Aktivitäten höchste Lebensqualität. Die ruhige, gepflegte Umgebung eignet sich ideal für Familien und Ruhesuchende, die Wert auf Komfort und Modernität legen. Das Einfamilienhaus wurde modernisiert und überzeugt durch hochwertige Ausstattung sowie eine durchdachte Grundrissgestaltung auf ca. 132 m² Wohnfläche.
Raumaufteilung und Ausstattung:
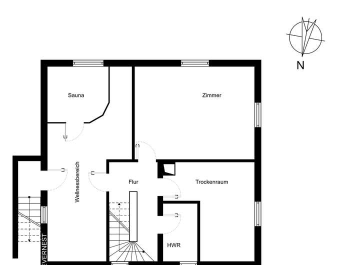
Es gibt 4 Zimmer, davon zwei Schlafzimmer, auf zwei Ebenen. Im Keller befindet sich ein weiteres Zimmer, das sich ideal als Homeoffice eignet. Die Aufteilung ist perfekt für Familien oder Mehrgenerationenhaushalte. Ein großzügiges Badezimmer mit Dusche und Badewanne sowie ein zusätzliches Gäste-WC sorgen für Komfort. Ein Kaminofen spendet behagliche Wärme, und ein exklusiver Saunabereich mit Dusche bietet entspannte Wellnessmomente.
Der ausgebaute Keller umfasst ca. 60 m² Nutzfläche und beherbergt einen Wohn- bzw. Schlafraum mit Fenster sowie zwei Abstellräume. In allen relevanten Bereichen wurden hochwertige Parkett- und Fliesenböden verlegt. Eine Einbauküche ist vorhanden, zudem unterstützt eine Regenwassernutzungsanlage Waschmaschine und Toiletten. Solarelemente auf dem Dach gewährleisten eine umweltfreundliche Warmwasseraufbereitung.
Freifläche und Außenbereich:
Das Grundstück umfasst ca. 695 m² und ist vollständig eingezäunt, was Sicherheit und Privatsphäre bietet. Der große, pflegeleichte Garten verfügt über einen Apfelbaum. Eine überdachte Terrasse eignet sich ideal für gemütliche Stunden im Freien. Im Keller steht viel Stauraum zur Verfügung; darüber hinaus gibt es einen Carport mit integrierter Werkstatt und zusätzlicher Ablagefläche.
Gerne können Sie sich vor Ort persönlich von all den schönen Facetten dieses Hauses überzeugen. Ich freue mich auf Ihre Anfrage.
Lichtdurchflutetes Architektenhaus - Leben, wo Wohnen auf Natur trifft
22397 Hamburg
Die vollständige Adresse der Immobilie erhalten Sie vom Anbieter.
Auf Karte anzeigen
Die vollständige Adresse der Immobilie erhalten Sie vom Anbieter.
Finanzierungszertifikat
In nur zwei Minuten zu Ihrem persönlichen Finanzierungszertifkat.
Infos
| Haustyp | Einfamilienhaus |
|---|---|
| Etagenzahl | 4 |
| Wohnfläche ca. | 132 m2 |
| Nutzfläche | 87 m2 |
| Grundstücksfläche | 695 m2 |
| Zimmer | 4 |
| Badezimmer | 2 |
| Garage/Stellplatz | Carport |
| Anzahl Garage/Stellplatz | 2 |
Kosten
| Kaufpreis |
799.000 € |
|---|---|
| Provision |
3.57 % inkl. MwSt. Bei Abschluss eines notariellen Kaufvertrages ist eine Käuferprovision vom Käufer in Höhe von 3.57 % inkl. MwSt. aus dem Kaufpreis fällig. |
Finanzierungsrechner:
Kaufpreis:
600.000 €
Eigenkapital:
600.000 €
Monatliche Rate
0 €
Effektiver Jahreszins
0 %
Sollzinsbindung
10 Jahre
Bausubstanz & Energieausweis
| Baujahr | 1960 |
|---|---|
| Letzte Sanierung | 2018 |
| Objektzustand | Modernisiert |
| Qualität der Austattung | Normal |
| Heizungsart | Gas-Heizung |
| Energieausweis | liegt vor |
| Energieausweistyp | Bedarfsausweis |
| Energieverbrauchskennwert | 95,7 kWh/(m²*a) |
| Energieeffizienzklasse | C |
95,7
kWh/(m²*a)
Energieeffizienzklasse C
- A+
- A
- B
- C
- D
- E
- F
- G
- H
- 0
- 25
- 50
- 75
- 100
- 125
- 150
- 175
- 200
- 225
- >250
Beschreibung des Objekts
Ausstattung
- Gesamtfläche: ca. 218 m²
- Kaminofen
- Sauna mit Ruhebereich
- Großzügige Terrasse, teilweise überdacht
- Ruhige Feldrandlage
- Eingezäuntes Grundstück
Lage
Die Immobilie befindet sich im idyllischen Stadtteil Lemsahl-Mellingstedt im Nordosten Hamburgs. Diese Lage zeichnet sich durch ihre ruhige, naturnahe Atmosphäre aus, die dennoch eine hervorragende Anbindung an das urbane Leben bietet. Lemsahl-Mellingstedt ist bekannt für seine grüne Umgebung und die hohe Lebensqualität. Hier genießen Sie die Vorzüge einer ruhigen Wohngegend, die sich ideal für Familien eignet. Die Umgebung ist geprägt von charmanten Einfamilienhäusern und bietet zahlreiche Freizeitmöglichkeiten, darunter Wander- und Radwege in den nahegelegenen Naturschutzgebieten.
Trotz der ruhigen Lage ist die Verkehrsanbindung hervorragend. Über die nahegelegene Autobahn A7 gelangen Sie schnell ins Zentrum Hamburgs sowie zu den wichtigen Wirtschafts- und Handelszentren der Stadt. Auch öffentliche Verkehrsmittel sind gut erreichbar, sodass Sie eine schnelle Verbindung zu den umliegenden Stadtteilen und zum Hamburger Hauptbahnhof haben.
In der Umgebung finden Sie alle notwendigen Einrichtungen des täglichen Bedarfs – darunter Schulen, Kindergärten, Supermärkte und Fachgeschäfte. Die ausgezeichnete Infrastruktur sorgt für hohen Wohnkomfort und eine erstklassige Lebensqualität.
Grundriss
Erdgeschoss
>
>
1.Obergeschoss
>
>
Dachgeschoss
>
>
Kellergeschoss
>
>
Adresse
22397 Hamburg
Interessante Orte
Preis- und Lageinformationen
Preistrend für Bestandsimmobilien in Lemsahl-Mellingstedt