Dieses gemütliche Wohnhaus, das im Jahr ca. 1963 erbaut wurde, ist trotz seines Alters in einem soliden Zustand, da immer wieder Renovierungsarbeiten vorgenommen wurden.
So wurden zum Beispiel in den Jahren 2012/2013 die Fenster teilweise erneuert und mit Jalousien ausgestattet, die im Wohnzimmer zum Teil elektrisch betätigt werden können. Im selben Zeitraum wurden die beiden Bäder erneuert, von denen das Bad im Erdgeschoss mit einer ebenerdigen Dusche und das Bad im Obergeschoss mit einer Eckbadewanne ausgestattet wurden. Die Heizung wurde im Jahr 2022 ebenfalls bereits erneuert.
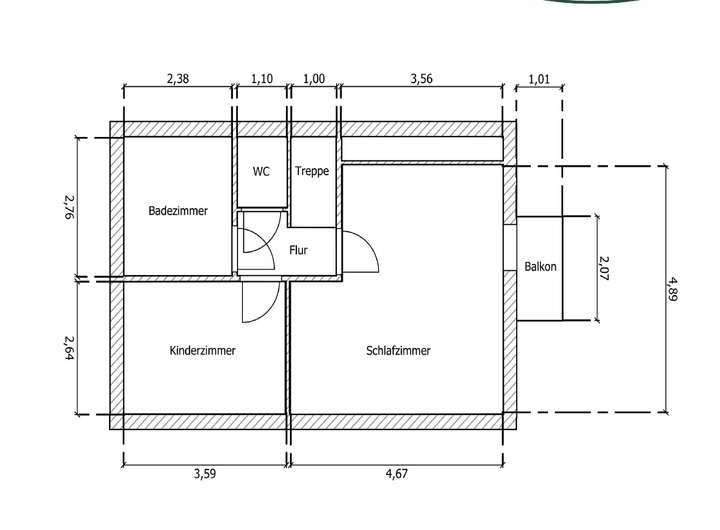
Im geschickt aufgeteilten Erdgeschoss befindet sich das helle und freundliche Wohnzimmer mit Parkettfußboden sowie ein kleines Schlafzimmer. Die mit einer Einbauküche ausgestattete Küche verfügt über einen direkten Zugang zur überdachten Terrasse. Angrenzend an die Küche ist das Esszimmer, das über einen kleinen Erker verfügt, der dem Raum ein gewisses Extra verleiht.
In das Obergeschoss, das man über eine massive Holztreppe erreicht, befinden sich ein Schlafzimmer mit Balkon sowie ein weiteres kleineres Schlafzimmer, das Bad mit der bereits erwähnten Eckbadewanne sowie ein separates WC. Der Dachboden wurde 1995 mit 10er Glaswolle isoliert und bietet ausreichend Staufläche.
Das Highlight dieses Angebotes ist das große Grundstück, das mit seinem geschmackvoll angelegten Garten, ein Traum für jeden Naturliebhaber ist und viel Platz zum Leben in und mit der Natur bietet. Ein Nebengebäude und eine Holzhütte, die mit einer Bar zum Partyraum ausgebaut ist, befinden sich ebenfalls auf dem Grundstück.
Eine Garage mit elektrischem Tor rundet dieses interessante Angebot ab, das auf jeden Fall eine Besichtigung wert ist.
Energieausweis: bedarfsorientiert vom 24.09.2025
Energiebedarf: 320,8 kWh/(m²a)
Energieträger: Erdgas
Baujahr Heizung: 2022
Effizienzklasse: H
Verkauft! - Gemütliches Wohnhaus mit Garage und einem großen u. schön angelegten Grundstück!
26810 Westoverledingen
Die vollständige Adresse der Immobilie erhalten Sie vom Anbieter.
Auf Karte anzeigen
Die vollständige Adresse der Immobilie erhalten Sie vom Anbieter.
Finanzierungszertifikat
In nur zwei Minuten zu Ihrem persönlichen Finanzierungszertifkat.
Infos
| Wohnfläche ca. | 115 m2 |
|---|---|
| Nutzfläche | 20 m2 |
| Grundstücksfläche | 1.709 m2 |
| Zimmer | 5 |
| Schlafzimmer | 3 |
| Badezimmer | 2 |
| Garage/Stellplatz | Garage |
| Anzahl Garage/Stellplatz | 1 |
Kosten
| Kaufpreis |
0 € |
|---|---|
| Provision |
3,57 Die Vermittlungsprovision beträgt 3 % des vereinbarten Kaufpreises plus der z. Zt. geltenden Mehrwertsteuer. |
Finanzierungsrechner:
Kaufpreis:
600.000 €
Eigenkapital:
600.000 €
Monatliche Rate
0 €
Effektiver Jahreszins
0 %
Sollzinsbindung
10 Jahre
Bausubstanz & Energieausweis
| Baujahr | 1963 |
|---|---|
| Heizungsart | Gas-Heizung |
| Wesentliche Energieträger | Gas |
| Energieausweis | liegt vor |
| Energieausweistyp | Bedarfsausweis |
| Energieverbrauchskennwert | 320,8 kWh/(m²*a) |
| Energieeffizienzklasse | H |
320,8
kWh/(m²*a)
Energieeffizienzklasse H
- A+
- A
- B
- C
- D
- E
- F
- G
- H
- 0
- 25
- 50
- 75
- 100
- 125
- 150
- 175
- 200
- 225
- >250
Beschreibung des Objekts
Lage
Das hier angebotene Haus steht in Ihrhove, im Herzen der Gemeinde Westoverledingen. Geschäfte des täglichen Bedarfs sowie Ärzte und Banken sind am Ort vorhanden. Die beiden Kleinstädte Leer und Papenburg, die beide über die Infrastruktur moderner Kleinstädte verfügen sind mit dem Auto über die B70 in wenigen Minuten erreichbar. Hier findet man alles, was man zum Leben braucht: Sämtliche Einkaufsmöglichkeiten, eine Vielzahl von Ärzten, Krankenhäuser, Banken, sämtliche Schulformen, Kindergärten etc. sowie einige touristische Highlights und Freizeitmöglichkeiten.
Sonstige Angaben
Ihr Ansprechpartner auch am Wochenende:
Immobilien Delventhal
Christoph Delventhal
04955 / 997012
www.immobilien-delventhal.de
Sonstiges:
Haben Sie bitte Verständnis dafür, dass wir Ihnen erst dann nähere Informationen über eine von uns angebotene Immobilie geben können wenn wir Ihren kompletten Namen sowie Ihre Anschrift und Telefonnummer vorliegen haben.
Provision:
Die Vermittlungsprovision beträgt 3 % des vereinbarten Kaufpreises plus der z. Zt. geltenden Mehrwertsteuer.
Datenschutz:
Wenn Sie sich mit uns in Verbindung setzten stimmen Sie der Klausel mit folgendem Text zu:
Hiermit bestätige ich, dass ich die Datenschutzerklärung (siehe: https://www.immobilienkontor-steenfelde.de/impressum) gelesen habe und erkläre ich mich einverstanden, dass meine in das Kontaktformular eingegebenen Daten elektronisch gespeichert und zum Zweck der Kontaktaufnahme verarbeitet und genutzt werden. Mir ist bekannt, dass ich meine Einwilligung jederzeit widerrufen kann.
Widerrufsrecht
Sie haben das Recht, binnen vierzehn Tagen ohne Angabe von Gründen diesen Vertrag zu widerrufen. Die Widerrufsfrist beträgt vierzehn Tage ab dem Tag des Vertragsabschlusses.
Um Ihr Widerrufsrecht auszuüben, müssen Sie uns [Immobilien Delventhal, Bahnhofstraße 15, 26810 Westoverledingen, Tel-Nr.: 04955 997012, mittels einer eindeutigen Erklärung (z.B. ein mit der Post versandter Brief, Telefax oder E-Mail) über Ihren Entschluss, diesen Vertrag zu widerrufen, informieren.
Zur Wahrung der Widerrufsfrist reicht es aus, dass Sie die Mitteilung über die Ausübung des Widerrufsrechts vor Ablauf der Widerrufsfrist absenden.
Folgen des Widerrufs
Wenn Sie diesen Vertrag widerrufen, haben wir Ihnen alle Zahlungen, die wir von Ihnen erhalten haben, unverzüglich und spätestens binnen vierzehn Tagen ab dem Tag zurückzuzahlen, an dem die Mitteilung über Ihren Widerruf dieses Vertrags bei uns eingegangen ist. Für diese Rückzahlung verwenden wir dasselbe Zahlungsmittel, das Sie bei der ursprünglichen Transaktion eingesetzt haben, es sei denn, mit Ihnen wurde ausdrücklich etwas anderes vereinbart; in keinem Fall werden Ihnen wegen dieser Rückzahlung Entgelte berechnet. Haben Sie verlangt, dass die Dienstleistungen während der Widerrufsfrist beginnen soll, so haben Sie uns einen angemessenen Betrag zu zahlen, der dem Anteil der bis zu dem Zeitpunkt, zu dem Sie uns von der Ausübung des Widerrufsrechts hinsichtlich dieses Vertrags unterrichten, bereits erbrachten Dienstleistungen im Vergleich zum Gesamtumfang der im Vertrag vorgesehenen Dienstleistung entspricht.
Hinweis zum vorzeitigen Erlöschen des Widerrufsrechts
Ihr Widerrufsrecht erlischt bei einem Vertrag zur Erbringung von Dienstleistungen vorzeitig, wenn wir die Dienstleistung vollständig erbracht haben und mit der Ausführung der Dienstleistung erst begonnen haben, nachdem Sie dazu Ihre ausdrückliche Zustimmung gegeben haben und gleichzeitig Ihre Kenntnis davon bestätigt haben, dass Sie Ihr Widerrufsrecht bei vollständiger Vertragserfüllung durch uns verlieren.
Grundriss
Grundriss EG
>
>
Grundriss OG
>
>
Adresse
26810 Westoverledingen
Interessante Orte
Preis- und Lageinformationen
Preistrend für Bestandsimmobilien in Westoverledingen