Objektnr: 1067313
Dieses charmante Einfamilienhaus in Gifhorn vereint ruhiges Wohnen in einer Nebenstraße mit moderner Technik und hohem Komfort. Das im Jahr 1979 erbaute Objekt wurde stets gepflegt und im Jahr 2025 umfassend modernisiert, wobei eine hoch effiziente Wärmepumpe sowie eine Photovoltaikanlage installiert wurden. Damit ist das Haus nahezu autark und überzeugt durch einen hervorragenden energetischen Zustand – ideal für umweltbewusste Käufer, die Wert auf niedrige Energiekosten legen.
Die ca. 155 m² große Wohnfläche verteilt sich auf 5 Zimmer, darunter 4 Schlafzimmer, was das Haus sowohl für Paare als auch für kleine Familien perfekt macht. Der Grundriss umfasst zudem 2 Badezimmer mit Dusche und Badewanne sowie ein Gäste-WC, sodass Komfort und Funktionalität gewährleistet sind. Die hochwertige Ausstattung beinhaltet eine Alarmanlage, eine moderne Einbauküche sowie Jalousien, die den Wohnkomfort zusätzlich erhöhen.
Der Außenbereich lädt zum Entspannen ein: Ein Balkon, ein großzügiges Grundstück von ca. 628 m², ein Garten mit Gartenhaus und Terrasse bieten viel Raum für Erholung und private Momente. Das Grundstück ist nach außen hin gut geschützt, sodass Sie hier ungestört Ihre Freizeit genießen können.
Für das Parken stehen eine Garage sowie zwei Freistellplätze zur Verfügung. Das Haus besticht durch seine gepflegte Erscheinung, seine moderne Technik und die ruhige Lage – eine ideale Immobilie für alle, die ein gemütliches Zuhause mit nachhaltiger Energieversorgung suchen.
Attraktive Immobilie in Gifhorn mit Energieklasse A
38518 Gifhorn
Die vollständige Adresse der Immobilie erhalten Sie vom Anbieter.
Auf Karte anzeigen
Die vollständige Adresse der Immobilie erhalten Sie vom Anbieter.
Finanzierungszertifikat
In nur zwei Minuten zu Ihrem persönlichen Finanzierungszertifkat.
Infos
| Haustyp | Einfamilienhaus |
|---|---|
| Etagenzahl | 2 |
| Wohnfläche ca. | 155 m2 |
| Grundstücksfläche | 628,15 m2 |
| Bezugsfrei ab | nach Absprache |
| Zimmer | 5 |
| Schlafzimmer | 4 |
| Badezimmer | 2 |
| Garage/Stellplatz | Garage |
| Anzahl Garage/Stellplatz | 1 |
Kosten
| Kaufpreis |
399.000 € |
|---|---|
| Provision |
3,57 % Die Provision i.H.v. 3,57 % inkl. MwSt. ist mit Kaufvertragsbeurkundung fällig, sofern der Verkaufspreis über 83.000,00 € liegt. Liegt der Verkaufspreis dagegen bei/unter 83.000,00 €, ist die fest vereinbarte Mindestprovision i.H.v. mind. 5.950,00 € inkl. MwSt. mit Kaufvertragsbeurkundung fällig. Die Mindestprovision fällt insg. nur einmal an, wodurch Verkäufer und Käufer die Mindestprovision dann jeweils mit 2.975,00 € inkl. MwSt. tragen. |
Finanzierungsrechner:
Kaufpreis:
600.000 €
Eigenkapital:
600.000 €
Monatliche Rate
0 €
Effektiver Jahreszins
0 %
Sollzinsbindung
10 Jahre
Bausubstanz & Energieausweis
| Baujahr | 1979 |
|---|---|
| Letzte Sanierung | 2025 |
| Bauphase | Haus fertig gestellt |
| Objektzustand | Gepflegt |
| Qualität der Austattung | Gehoben |
| Heizungsart | Zentralheizung |
| Wesentliche Energieträger | Strom |
| Energieausweis | liegt vor |
| Energieausweistyp | Bedarfsausweis |
| Energieverbrauchskennwert | 49,1 kWh/(m²*a) |
| Energieeffizienzklasse | A |
49,1
kWh/(m²*a)
Energieeffizienzklasse A
- A+
- A
- B
- C
- D
- E
- F
- G
- H
- 0
- 25
- 50
- 75
- 100
- 125
- 150
- 175
- 200
- 225
- >250
Beschreibung des Objekts
Ausstattung
+ In familienfreundlicher Umgebung von Gifhorn, beschaulich und sicher in einer Nebenstraße, ideal als Ihr neues Eigenheim
+ Der uneinsehbare Süd-Garten inkl. Teich auf ca. 628 m² Grund lädt zum Verweilen ein - eine Terrasse und ein Balkon bereichern das Erlebnis
+ Die Immobilie präsentiert sich in einem gepflegten Zustand - die letzten Modernisierungsmaßnahmen erfolgten im Jahr 2025
+ Hochwertige Ausstattung des Hauses inkl. einer Alarmanlage, einer Einbauküche sowie Jalousien
+ Das Objekt bietet Platz für Pkw dank einer Garage und 2 Freistellplätze
Lage
Lage: Attraktive Lage in Gifhorn mit guten Voraussetzungen für Selbstnutzer
Bildung und Betreuung: Top-Lage: Schule und Kindergarten in max. 800 m Entfernung
Nahversorgung: Anlaufstellen schnell erreicht: Supermarkt und Apotheke in max. ca. 800 m
Anbindung: Nächste Bushaltestelle, nächster Bahnhof und nächste Autobahn komfortabel erreichbar
Sonstige Angaben
Vereinbaren Sie noch heute einen Besichtigungstermin!
_____________________________________________________
Alle Angaben sind ohne Gewähr und basieren ausschließlich auf Informationen, die uns von unserem Auftraggeber zur Verfügung gestellt wurden. Wir übernehmen keine Gewähr für die Vollständigkeit, Richtigkeit und Aktualität der Angaben.
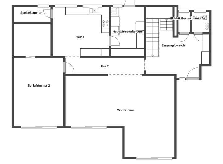
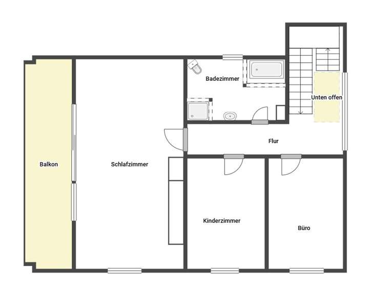
Grundriss
Grundriss Skizze EG
>
>
Grundriss Skizze 1. OG
>
>
Adresse
38518 Gifhorn
Interessante Orte
Preis- und Lageinformationen
Preistrend für Bestandsimmobilien in Gifhorn