Dieses großzügige, freistehende Einfamilienhaus aus dem Jahr 1963 bietet mit einer Wohnfläche von circa 180 m² und einem großzügigen Grundstück reichlich Platz und Gestaltungsmöglichkeiten für individuelle Wohnträume. Das Haus umfasst insgesamt fünf Zimmer über zwei Etagen, welche sich optimal für eine Familie oder für großzügige Wohnkonzepte eignen. Die Raumaufteilung ist klassisch gehalten, wodurch jedes Zimmer separat zugänglich ist. Dies ermöglicht eine flexible Nutzung als Wohn-, Schlaf- oder Arbeitsräume. Die Sanierungsmaßnahmen in den letzten Jahren haben jedoch bereits grundlegende Neuerungen gebracht: Im Jahr 2000 wurde das Dach erneuert, 2010 folgten moderne Dreifachglasfenster im gesamten Haus, die für eine exzellente Dämmung sorgen. Darüber hinaus wurde 2020 eine neue Heizung installiert, die auf Fernwärme basiert, was energieeffizientes Heizen gewährleistet. Im selben Jahr wurde außerdem der komplette Keller umfassend saniert, wodurch ein Kellerraum nun als hochwertiger Nutz- oder Hobbyraum vielfältig verwendbar ist. Auch das weitläufige Grundstück bietet vielfältige Möglichkeiten der Gestaltung. Ob als großes Spielfeld für Kinder, als Garten für Hobbygärtner oder als Rückzugsort – die Nutzungsmöglichkeiten sind nahezu unbegrenzt. Besonders hervorzuheben ist die großzügige Grundstücksfläche von circa 1.300 m², die auch weiteren Ausbauoptionen offen gegenübersteht, sei es in Form eines Anbaus oder in der Gestalt weiterer Nutzflächen im Freien. Die Immobilie liegt in einer ruhigen Wohnlage mit zugleich guter Anbindung an die umliegende Infrastruktur. Schulen, Einkaufsmöglichkeiten sowie öffentliche Verkehrsmittel befinden sich in unmittelbarer Nähe – ein idealer Standort, besonders für Familien. Insgesamt stellt diese Immobilie eine interessante Gelegenheit für Investoren oder handwerklich begabte Käufer dar, die das Potenzial erkennen. Die bereits durchgeführten Modernisierungen bieten eine solide Basis für weitere Maßnahmen, um das Haus zukunftsfähig und den Ansprüchen moderner Wohnbedürfnisse entsprechend zu gestalten.
Freistehendes Einfamilienhaus mit großem Garten in gefragter Lage
60439 Frankfurt am Main
Die vollständige Adresse der Immobilie erhalten Sie vom Anbieter.
Auf Karte anzeigen
Die vollständige Adresse der Immobilie erhalten Sie vom Anbieter.

Finanzierungszertifikat
In nur zwei Minuten zu Ihrem persönlichen Finanzierungszertifkat.
Infos
Haustyp | Einfamilienhaus |
---|---|
Etagenzahl | 2 |
Wohnfläche ca. | 182 m2 |
Nutzfläche | 89,4 m2 |
Grundstücksfläche | 1.362 m2 |
Zimmer | 5 |
Schlafzimmer | 4 |
Badezimmer | 1 |
Garage/Stellplatz | Außenstellplatz |
Anzahl Garage/Stellplatz | 2 |
Kosten
Kaufpreis |
1.050.000 € |
---|---|
Provision |
Käuferprovision beträgt 3,57 % (inkl. MwSt.) des beurkundeten Kaufpreises |
Finanzierungsrechner:
Kaufpreis:
600.000 €
Eigenkapital:
600.000 €
Monatliche Rate
0 €
Effektiver Jahreszins
0 %
Sollzinsbindung
10 Jahre
Bausubstanz & Energieausweis
Baujahr | 1963 |
---|---|
Bauphase | Haus fertig gestellt |
Objektzustand | Renovierungsbedürftig |
Qualität der Austattung | Normal |
Heizungsart | Fernwärme |
Wesentliche Energieträger | KWK fossil |
Energieausweis | liegt vor |
Energieausweistyp | Bedarfsausweis |
Energieverbrauchskennwert | 187,9 kWh/(m²*a) |
Energieeffizienzklasse | F |
187,9
kWh/(m²*a)
Energieeffizienzklasse F
- A+
- A
- B
- C
- D
- E
- F
- G
- H
- 0
- 25
- 50
- 75
- 100
- 125
- 150
- 175
- 200
- 225
- >250
Beschreibung des Objekts
Ausstattung
- Einbauküche - Parkettboden - Kamin - Balkon - Zwei Terrassen - Großer Garten - Garage - Zwei Freiplätze
Lage
Niederursel liegt im Nordwesten Frankfurts und grenzt im Norden und Westen an die Gemarkung von Oberursel und Steinbach. Dieser Stadtteil wird in der noch immer genutzten Ackerbaufläche im Norden vom Abschnitt Frankfurt-Kassel der Bundesautobahn fünf durchquert. Die Europäische Schule sowie zwei Grundschulen, eine gymnasiale Oberstufe und eine Gesamtschule liegen in dem Stadtteil. Die Station im Nordwestzentrum liegt an der Grenze des Stadtteils zu Heddernheim und ist über die Linien U1 und U9 der Frankfurter U-Bahn an den öffentlichen Nahverkehr angebunden. Zusätzlich verbinden zahlreiche Buslinien in Niederursel den Stadtteil mit der Innenstadt sowie mit der Station "Hauptwache". Von dort bestehen direkte und schnelle Verbindungen zum Frankfurter Hauptbahnhof und zum Flughafen über S-Bahn- und U-Bahnlinien.
Sonstige Angaben
GELDWÄSCHE: Als Immobilienmaklerunternehmen ist die von Poll Immobilien GmbH nach § 2 Abs. 1 Nr. 14 und § 11 Abs. 1, 2 Geldwäschegesetz (GwG) dazu verpflichtet, bei der Begründung einer Geschäftsbeziehung die Identität des Vertragspartners festzustellen und zu überprüfen, bzw. sobald ein ernsthaftes Interesse an der Durchführung des Immobilienkaufvertrages besteht. Hierzu ist es erforderlich, dass wir nach § 11 Abs. 4 GwG die relevanten Daten Ihres Personalausweises festhalten (wenn Sie als natürliche Person handeln) – beispielsweise mittels einer Kopie. Bei einer juristischen Person benötigen wir eine Kopie des Handelsregisterauszugs, aus welchem der wirtschaftlich Berechtigte hervorgeht. Das Geldwäschegesetz sieht vor, dass der Makler die Kopien bzw. Unterlagen fünf Jahre aufbewahren muss. Als unser Vertragspartner haben Sie auch eine Mitwirkungspflicht nach § 11 Abs. 6 GwG. HAFTUNG: Wir weisen darauf hin, dass die von uns weitergegebenen Objektinformationen, Unterlagen, Pläne etc. vom Verkäufer bzw. Vermieter stammen. Eine Haftung für die Richtigkeit oder Vollständigkeit der Angaben übernehmen wir daher nicht. Es obliegt daher unseren Kunden, die darin enthaltenen Objektinformationen und Angaben auf ihre Richtigkeit hin zu überprüfen. Alle Immobilienangebote sind freibleibend und vorbehaltlich Irrtümer, Zwischenverkauf- und Vermietung oder sonstiger Zwischenverwertung. UNSER SERVICE FÜR SIE ALS EIGENTÜMER: Planen Sie den Verkauf oder die Vermietung Ihrer Immobilie, so ist es für Sie wichtig, deren Marktwert zu kennen. Lassen Sie kostenfrei und unverbindlich den aktuellen Wert Ihrer Immobilie professionell durch einen unserer Immobilienspezialisten einschätzen. Unser bundesweites und internationales Netzwerk ermöglicht es uns, Verkäufer bzw. Vermieter und Interessenten bestmöglich zusammenzuführen.
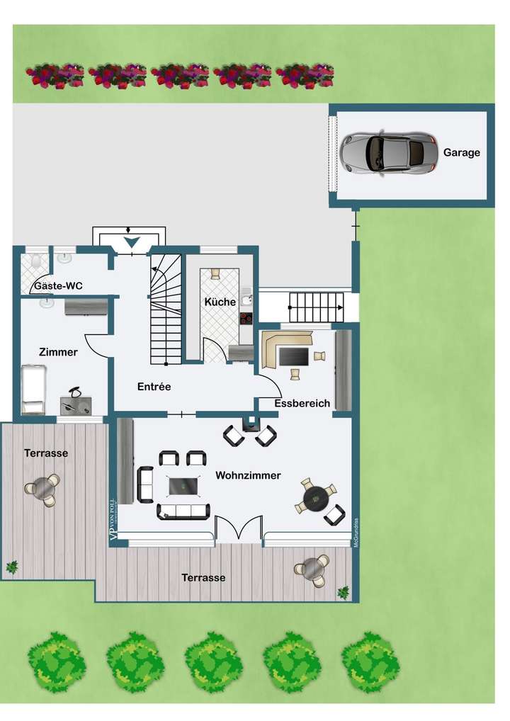
Grundriss
Erdgeschoss
>

Obergeschoss
>

Untergeschoss
>

Adresse
60439 Frankfurt am Main
Interessante Orte
Preis- und Lageinformationen
Preistrend für Bestandsimmobilien in Praunheim