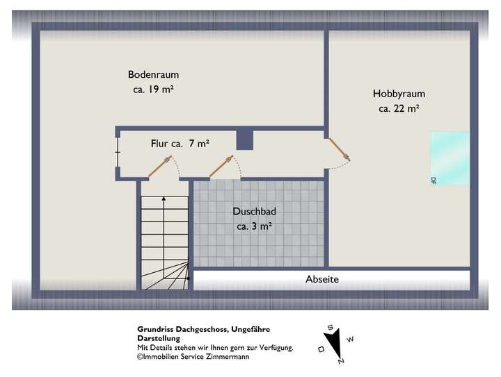
Das Haus wurde 1967 als Walmdach mit solider Rotklinkerfassade errichtet. Später wurde das Dachgeschoss teils wohnlich ausgebaut. Hier bietet sich ein kleines Badezimmer und ein zusätzlicher Raum als ergänzender Entfaltungsspielraum. Verhelfen Sie dem Haus mit einer Sanierung zu neuem Glanz.
Sonniges Westgrundstück Blick in die Natur genießen - Einkaufen und U-Bahn fußläufig
22359 Hamburg
Die vollständige Adresse der Immobilie erhalten Sie vom Anbieter.
Auf Karte anzeigen
Die vollständige Adresse der Immobilie erhalten Sie vom Anbieter.
Finanzierungszertifikat
In nur zwei Minuten zu Ihrem persönlichen Finanzierungszertifkat.
Infos
| Haustyp | Einfamilienhaus |
|---|---|
| Etagenzahl | 1 |
| Wohnfläche ca. | 137 m2 |
| Grundstücksfläche | 1.004 m2 |
| Zimmer | 4 |
| Schlafzimmer | 2 |
| Badezimmer | 1 |
| Garage/Stellplatz | Garage |
| Anzahl Garage/Stellplatz | 1 |
Kosten
| Kaufpreis |
550.000 € |
|---|---|
| Provision |
3,5 % des Kaufpreises inkl. Mehrwertsteuer |
Finanzierungsrechner:
Kaufpreis:
600.000 €
Eigenkapital:
600.000 €
Monatliche Rate
0 €
Effektiver Jahreszins
0 %
Sollzinsbindung
10 Jahre
Bausubstanz & Energieausweis
| Baujahr | 1967 |
|---|---|
| Heizungsart | Nachtspeicherofen |
| Wesentliche Energieträger | Strom |
| Energieausweis | liegt vor |
| Energieausweistyp | Bedarfsausweis |
| Energieverbrauchskennwert | 193,1 kWh/(m²*a) |
| Energieeffizienzklasse | F |
193,1
kWh/(m²*a)
Energieeffizienzklasse F
- A+
- A
- B
- C
- D
- E
- F
- G
- H
- 0
- 25
- 50
- 75
- 100
- 125
- 150
- 175
- 200
- 225
- >250
Beschreibung des Objekts
Ausstattung
-großzügiges, grünes Grundstück
-Garage und Freistellplatz
-geräumiges Wohnzimmer
-Ausbaupotential im Dachgeschoss
Im Erdgeschoss befinden sich 3 Zimmer. Der Essbereich könnte durch eine einfache Trennung als separates halbes Zimmer genutzt werden. Das teilweise wohnlich ausgebaute Dachgeschoss ergänzt das Raumangebot.
Lage
Das Einfamilienhaus befindet sich in einer ruhigen Wohnstraße in der grünen und begehrten Lage von Volksdorf. Die Umgebung besticht durch ihre naturnahe Atmosphäre und gleichzeitig durch eine hervorragende Infrastruktur. Dank der U-Bahn-Station Hoisbüttel (U1) sowie verschiedener Buslinien ist eine sehr gute Anbindung gegeben. Zudem stehen zahlreiche Einkaufsmöglichkeiten, Ärzte, Apotheken und weitere Dienstleistungen in unmittelbarer Nähe zur Verfügung. Für Freizeit und Erholung sorgen vielfältige Angebote wie Reiten, Tennis. Für entspannte Spaziergänge müssen Sie nicht weit gehen zum Heidkoppelmoor. Der weitläufige Ohlendorffs Park sowie das Naturschutzgebiet laden zu erholsamen Ausflügen ein. Auch Familien finden hier ideale Bedingungen: Kindergärten und Schulen liegen im direkten Umfeld, die Grundschule und das Gymnasium Buckhorn sind innerhalb von nur fünf Minuten bequem mit dem Rad erreichbar.
Sonstige Angaben
Übergabe:
Sie können die Immobilie nach Vereinbarung frei übernehmen.
Besichtigung:
Überzeugen Sie sich selbst durch eine Besichtigung vor Ort. Hierfür bitten die Eigentümer und wir Sie, einen Termin mit unserem Büro zu vereinbaren. Wir freuen uns auf Ihren Anruf!
Kaufpreis: € 550.000,--
zuzüglich Grunderwerbsteuer (5,5%) sowie Notar- und Gerichtsgebühren.
Grundriss
Erdgeschoss
>
>
Dachgeschoss
>
>
Adresse
22359 Hamburg
Interessante Orte
Preis- und Lageinformationen
Preistrend für Bestandsimmobilien in Volksdorf