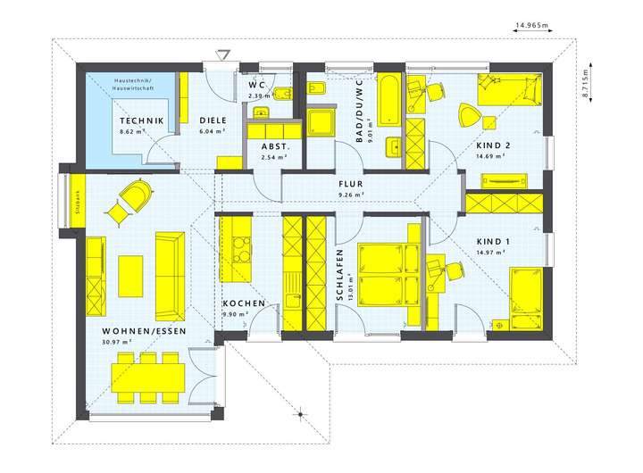
Willkommen in deinem neuen, individuell gestalteten Bungalow von LivingHaus, das mit seinem an den Bauhausstil erinnernden Design und einem modernen Flachdach überzeugt. Auf einer Wohnfläche von 110 m² bietet dieses Haus mit drei Zimmern und zwei Schlafzimmern alles, was du dir für dein neues Zuhause wünschst. Der großzügige Übereck-Panoramaerker eröffnet ein beeindruckendes Raumgefühl im Wohn- und Essbereich und lässt viel natürliches Licht herein. Besonders durchdacht ist die Außenarchitektur: Die nahtlose Verbindung zwischen der überdachten Eingangspartie und dem Carport sorgt dafür, dass du bei jedem Wetter trocken ins Haus gelangst. Ein besonderes Highlight bei LivingHaus ist die Vielzahl an zusätzlichen Leistungen, die dir den Weg zum Eigenheim erleichtern. Beginne mit der individuell für dich geplanten Traumküche, die mit modernster Technik und cleveren Stauraumlösungen ausgestattet ist. Ergänzt wird dies durch das Living Haus Bau-Cockpit, eine innovative App, die dir jederzeit Kontrolle über dein Projekt ermöglicht. I-KON Intelligentes Bauen steht für Nachhaltigkeit gepaart mit moderner Technologie. Dein Haus wird als I-KON Effizienzhaus 55 gebaut, was bedeutet, dass es nur 55 % der Energie eines Standardhauses benötigt - dank hervorragender Dämmung und intelligenter Heiztechnik. Mit dem Zuhause-Darlehen profitierst du von exklusiven Konditionen zur Finanzierung deines Hauses und kannst auf staatliche Förderprogramme zugreifen. Das Zuhause-Paket bietet dir eine hochwertige Grundausstattung inklusive edler Böden und stilvoller Sanitäranlagen. Wenn du selbst Hand anlegen möchtest, unterstützt dich das DIY-Ausbau-Coaching dabei, deinen Innenausbau eigenständig zu meistern - eine Erfahrung, die dich zum Profi in deinem eigenen Zuhause macht.
So wird dein 110 m² Bungalow zum echten Traumhaus
61169 Friedberg (Hessen)
Die vollständige Adresse der Immobilie erhalten Sie vom Anbieter.
Auf Karte anzeigen
Die vollständige Adresse der Immobilie erhalten Sie vom Anbieter.

Finanzierungszertifikat
In nur zwei Minuten zu Ihrem persönlichen Finanzierungszertifkat.
Infos
Haustyp | Bungalow |
---|---|
Etagenzahl | 1 |
Wohnfläche ca. | 110 m2 |
Grundstücksfläche | 700 m2 |
Bezugsfrei ab | 2025 |
Zimmer | 3 |
Schlafzimmer | 2 |
Kosten
Kaufpreis |
755.881 € |
---|
Finanzierungsrechner:
Kaufpreis:
600.000 €
Eigenkapital:
600.000 €
Monatliche Rate
0 €
Effektiver Jahreszins
0 %
Sollzinsbindung
10 Jahre
Bausubstanz & Energieausweis
Baujahr | 2025 |
---|---|
Bauphase | Haus in Planung (projektiert) |
Heizungsart | Wärmepumpe |
Energieausweis | liegt vor |
Energieausweistyp | Bedarfsausweis |
Energieverbrauchskennwert | 18,0 kWh/(m²*a) |
Energieeffizienzklasse | A+ |
18,0
kWh/(m²*a)
Energieeffizienzklasse A+
- A+
- A
- B
- C
- D
- E
- F
- G
- H
- 0
- 25
- 50
- 75
- 100
- 125
- 150
- 175
- 200
- 225
- >250
Beschreibung des Objekts
Ausstattung
Dein neues Zuhause kommt mit einer Fülle an hochwertigen Ausstattungsmerkmalen. Ab dem Moment deiner Auftragsbestätigung bietet dir LivingHaus eine 18-monatige Festpreisgarantie sowie essenzielle Bauversicherungen wie Bauherrenhaftpflicht und Bauleistungsversicherung. Für deine Finanzierung steht das exklusive Zuhause-Darlehen zur Verfügung, häufig zu Zinsen unter dem Marktniveau. Dank des Living Haus Bau-Cockpits hast du jederzeit Zugang zu allen wichtigen Informationen rund um dein Bauprojekt. Höchste Qualitätsstandards sind durch die DGNB-Serienzertifizierung in Gold gewährleistet. Die Grundkonstruktion des Gebäudes ist durch eine 30-jährige Garantie abgesichert. Zwei Tage Ausstattungsberatung helfen dir dabei, genau die Materialien auszuwählen, die zu deinem Stil passen - sei es für edle Türen oder moderne Böden. Eine vorkonfigurierte I-KON-Lösung mit PV-Anlage ermöglicht es dir, einen Großteil deines Strombedarfs selbst zu decken. Die Wärmepumpentechnik sorgt für effizientes Heizen und trägt zusammen mit Rollläden zum sommerlichen Hitzeschutz bei. Alle Innenausbaumaterialien sind im Zuhause-Paket enthalten, inklusive Fliesen für das gesamte Erdgeschoss und bodengleicher Duschen mit Echtglasabtrennung. Eine individuell geplante Küche komplettiert das Angebot ohne versteckte Kosten oder unverbindliche Gutscheine. Dein »Wie ich es will Fertighaus«. Die Abbildungen zeigen individuelle Ausstattungen, die dein Zuhause noch besonderer machen - einige davon sind optional und nicht im Preis enthalten.
Lage
Friedberg (61169) ist eine Kreisstadt im Wetteraukreis in Hessen, Deutschland, und liegt etwa 30 Kilometer nördlich von Frankfurt am Main. Geographische Lage: Koordinaten: Ca. 50°20' N, 8°45' O Höhe: Etwa 140 bis 230 Meter über dem Meeresspiegel Umgebung: Nördlich: Wölfersheim und Reichelsheim Östlich: Wöllstadt und Niddatal Südlich: Bad Nauheim Westlich: Rosbach vor der Höhe und Karben Landschaft und Natur: Natur: Friedberg liegt in der fruchtbaren Wetterau, einer flachen, landwirtschaftlich geprägten Region, umgeben von Feldern, Wiesen und kleinen Wäldern. Gewässer: Die Usa, ein kleiner Fluss, fließt durch Friedberg und mündet in die Nidda. Verkehrsanbindung: Straßen: Friedberg ist gut angebunden über die Bundesstraßen B3 und B455 sowie die Autobahn A5, die eine schnelle Verbindung nach Frankfurt am Main und Gießen bietet. Öffentlicher Nahverkehr: Der Bahnhof Friedberg ist ein wichtiger Knotenpunkt mit regelmäßigen Zugverbindungen nach Frankfurt, Gießen und Hanau. Es gibt auch Busverbindungen in die umliegenden Städte und Gemeinden. Wirtschaft und Infrastruktur: Wirtschaft: Friedberg ist ein wirtschaftliches Zentrum der Region mit einer Mischung aus Industrie, Handel und Dienstleistungen. Der Einzelhandel in der Innenstadt ist gut entwickelt. Bildung: Die Stadt bietet ein breites Spektrum an Bildungseinrichtungen, darunter Grundschulen, weiterführende Schulen, Berufsschulen und das Burggymnasium. Freizeit: Friedberg hat eine Vielzahl von Freizeitmöglichkeiten, darunter Sportvereine, ein Hallenbad, kulturelle Veranstaltungen und historische Sehenswürdigkeiten wie die Friedberger Burg, die größte Burganlage Deutschlands, und die gotische Stadtkirche. Friedberg bietet eine Kombination aus historischer Architektur, modernen Annehmlichkeiten und guter Anbindung an das Rhein-Main-Gebiet. Die Stadt ist ein attraktiver Wohnort für Pendler und Familien, die das Leben in einer historisch geprägten, aber modernen Stadt schätzen.
Adresse
61169 Friedberg (Hessen)
Interessante Orte
Preis- und Lageinformationen
Preistrend für Bestandsimmobilien in Friedberg (Hessen)