Willkommen in Ihrer individuellen Stadtvilla, die ganz nach Ihren Wünschen projektiert wird. Dieses Traumhaus bietet Ihnen mit 5 Zimmern und einer großzügigen Wohnfläche von 171,75 m² ausreichend Platz für Ihre Familie. Auf einem weitläufigen Grundstück von 826 m² können Sie die Vorzüge des Lebens in Langen (Hessen) genießen. Der durchdachte Grundriss ermöglicht nicht nur ein modernes Wohnen, sondern auch eine flexible Raumgestaltung, die sich an Ihren Bedürfnissen orientiert. Sie haben die Möglichkeit, verschiedene Stile zu wählen, ob mit Keller, Flachdach oder Walmdach - alles ist möglich! Ihre persönliche STREIF-Bauberatung wird Ihnen die zahlreichen Optionen aufzeigen und Ihre Wünsche in die Planung integrieren. Ob Sie eine Dachterrasse wünschen oder Ihre Räume anpassen möchten, bei STREIF sind Ihre Vorstellungen in besten Händen.
Traumhafte Neubau-Villa in Langen mit Premium-Ausstattung
63225 Langen (Hessen)
Die vollständige Adresse der Immobilie erhalten Sie vom Anbieter.
Auf Karte anzeigen
Die vollständige Adresse der Immobilie erhalten Sie vom Anbieter.
Finanzierungszertifikat
In nur zwei Minuten zu Ihrem persönlichen Finanzierungszertifkat.
Infos
| Wohnfläche ca. | 171 m2 |
|---|---|
| Grundstücksfläche | 826 m2 |
| Zimmer | 5 |
| Schlafzimmer | 3 |
| Badezimmer | 3 |
| Garage/Stellplatz | Carport |
| Anzahl Garage/Stellplatz | 1 |
Kosten
| Kaufpreis |
1.374.602 € |
|---|
Finanzierungsrechner:
Kaufpreis:
600.000 €
Eigenkapital:
600.000 €
Monatliche Rate
0 €
Effektiver Jahreszins
0 %
Sollzinsbindung
10 Jahre
Bausubstanz & Energieausweis
| Baujahr | 2026 |
|---|---|
| Bauphase | Haus in Planung (projektiert) |
| Qualität der Austattung | Gehoben |
| Heizungsart | Wärmepumpe |
| Energieausweis | liegt zur Besichtigung vor |
Beschreibung des Objekts
Ausstattung
Die Ausstattung Ihrer Stadtvilla ist gehoben und bietet höchsten Wohnkomfort. Genießen Sie die Vorteile von hochwertigen Bodenbelägen, wie Fliesen, Laminat oder Parkett, die nicht nur stilvoll sind, sondern auch pflegeleicht und langlebig. Sie können zwischen verschiedenen Designs wählen, die sich harmonisch in Ihr individuelles Wohnkonzept einfügen. Ihre Stadtvilla wird mit einer modernen Wärmepumpe beheizt, die nicht nur umweltfreundlich ist, sondern auch für niedrige Energiekosten sorgt. Der Niedrigenergie-Standard gewährleistet Ihnen ein angenehmes Raumklima und eine nachhaltige Energieversorgung. Das Badezimmer ist ein echtes Highlight mit Dusche, Wanne und Fenster sowie einem zusätzlichen Gäste-WC - ideal für eine Familie.
Lage
Die Stadtvilla befindet sich in Langen (Hessen), einer Stadt, die für ihre hervorragende Infrastruktur bekannt ist. In unmittelbarer Nähe finden Sie alles, was Sie für den täglichen Bedarf benötigen: eine Apotheke, einen Bahnhof, Busverbindungen, ein Einkaufscenter und zahlreiche Freizeitmöglichkeiten wie Fitnessstudios und Parks. Auch die Bildungsangebote überzeugen mit einer Grundschule und einem Kindergarten in der Nähe. Die gute Anbindung an die öffentlichen Verkehrsmittel ermöglicht Ihnen ein stressfreies Pendeln in die umliegenden Städte.
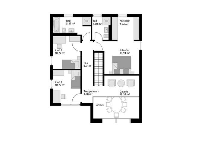
Grundriss
EG
>
>
DG
>
>
Adresse
63225 Langen (Hessen)
Interessante Orte
Preis- und Lageinformationen
Preistrend für Bestandsimmobilien in Langen (Hessen)