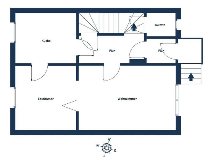
Schon beim Betreten der ruhigen Wohnstraße entfaltet sich der besondere Charme dieses Reihenmittelhauses. Das freundlich in Blau gestrichene Reihenmittelhaus empfängt Sie mit einem gepflegten Vorgarten und einer charmanten Eingangstreppe – ein Zuhause, das Sie vom ersten Moment an willkommen heißt. Im Inneren erwartet Sie ein durchdacht geschnittener Grundriss mit ca. 81,8 Quadratmetern Wohnfläche, verteilt auf vier Zimmer. Der Wohnbereich im Hochparterre überzeugt mit klassischen Raumproportionen und einem direkten Übergang ins angrenzende Esszimmer – ideal für gemeinsame Mahlzeiten oder gemütliche Abende. Die praktisch geschnittene Küche bietet Platz für einen Frühstückstisch und gewährt einen idyllischen Blick ins Grüne. Ein Gäste-WC rundet das Raumangebot im Erdgeschoss funktional ab. Über die Treppe gelangen Sie in das Obergeschoss. Hier erwarten Sie ein geräumiges Schlafzimmer sowie zwei weitere Zimmer, die sich ideal als Kinder- oder Arbeitszimmer eignen. Das helle Tageslichtbad ist mit einer Dusche und einem Handtuchwärmer ausgestattet. Das ca. 433 m² große Hauptgrundstück ist sonnig gelegen und pflegeleicht angelegt. Das voll unterkellerte Haus bietet neben einer Waschküche auch vielseitig nutzbare Räume – ideal als Hobbyraum, Werkstatt oder Lagerfläche. Von hier aus gelangen Sie direkt in den grünen Garten, der mit einer Terrasse zum Entspannen im Freien einlädt – ein echtes Highlight der Immobilie. Im Laufe der Jahre wurden wichtige Modernisierungen durchgeführt: So wurden Dach und Fenster bereits im Jahr 1997 umfassend saniert. Die Heizungsanlage wurde 2021 erneuert und versorgt das Haus über Flachheizkörper mit Wärme. Genauere Angaben zum Energiebedarf entnehmen Sie bitte dem beiliegenden Energieausweis. Gartenfreude auf zwei Grundstücken: Am Ende der Straße, ca. 100 Meter entfernt, befindet sich ein weiteres Highlight für Gartenfreunde. Als zusätzliches Plus wird ein separates Grundstück (Erholungsfläche) mit ca. 325 Quadratmetern angeboten. Darauf steht ein massives Gartenhaus mit rund 32 Quadratmetern Nutzfläche, aufgeteilt in zwei separate Räume – einen Bereich mit Garagentor sowie einen großzügigen Freizeitraum. Zur Ausstattung gehören ein Stromanschluss (220 V), ein gepflasterter Boden, eine stabile Dachkonstruktion mit gesandeter Dachpappe, ein kleiner Geräteschuppen aus Blech sowie eine Zisterne mit 2.000 Litern Fassungsvermögen. Die Zuwegung erfolgt über ein gemeinschaftlich genutztes Grundstück mit Wegerecht – ideal für Gartenfreunde, Hobbybastler oder ruhebedürftige Gäste. Beide Häuser werden vom 15.07. bis zum 17.07.2025 beräumt und stehen anschließend für eine kurzfristige Übergabe zur Verfügung.
Deutzen: Reihenhaus mit Keller, Garten, Terrasse & separatem Grundstück mit Gartenhaus
04575 Deutzen
Die vollständige Adresse der Immobilie erhalten Sie vom Anbieter.
Auf Karte anzeigen
Die vollständige Adresse der Immobilie erhalten Sie vom Anbieter.

Finanzierungszertifikat
In nur zwei Minuten zu Ihrem persönlichen Finanzierungszertifkat.
Infos
Haustyp | Reihenmittelhaus |
---|---|
Etagenzahl | 3 |
Wohnfläche ca. | 81 m2 |
Grundstücksfläche | 758 m2 |
Zimmer | 4 |
Schlafzimmer | 2 |
Badezimmer | 1 |
Garage/Stellplatz | Außenstellplatz |
Anzahl Garage/Stellplatz | 1 |
Kosten
Kaufpreis |
142.046 € |
---|---|
Provision |
3,57% vom Kaufpreis inkl. MwSt., mindestens jedoch 3200,01€. Sofern der erzielte Kaufpreis unter 89636,13€ liegt, gilt eine fest vereinbarte Mindestprovision i.H.v. 3200,01€ inkl. MwSt. |
Finanzierungsrechner:
Kaufpreis:
600.000 €
Eigenkapital:
600.000 €
Monatliche Rate
0 €
Effektiver Jahreszins
0 %
Sollzinsbindung
10 Jahre
Bausubstanz & Energieausweis
Baujahr | 1956 |
---|---|
Letzte Sanierung | 1997 |
Objektzustand | Gepflegt |
Qualität der Austattung | Normal |
Heizungsart | Zentralheizung |
Wesentliche Energieträger | Gas |
Energieausweis | liegt vor |
Energieausweistyp | Bedarfsausweis |
Energieverbrauchskennwert | 119,8 kWh/(m²*a) |
Energieeffizienzklasse | D |
119,8
kWh/(m²*a)
Energieeffizienzklasse D
- A+
- A
- B
- C
- D
- E
- F
- G
- H
- 0
- 25
- 50
- 75
- 100
- 125
- 150
- 175
- 200
- 225
- >250
Ausstattung
Lage
Der Ortsteil Deutzen in der Gemeinde Neukieritzsch befindet sich im Herzen des Leipziger Neuseenlands und bietet eine ruhige, naturnahe Wohnlage mit gleichzeitig hervorragender Anbindung an die wirtschaftlich dynamische Region Leipzig. Die Umgebung ist geprägt von weitläufigen Grünflächen, sanierten Wohnsiedlungen sowie einer angenehmen Durchmischung aus Ein- und Mehrfamilienhäusern, was ein harmonisches Wohnumfeld für unterschiedlichste Zielgruppen schafft – von Familien über Berufspendler bis hin zu Senioren. Deutzen überzeugt mit einer gut ausgebauten Infrastruktur. Im Ort selbst befinden sich eine Kindertagesstätte, eine Grundschule sowie kleinere Einkaufsmöglichkeiten für den täglichen Bedarf. Weitere umfassende Versorgungsangebote sind in den benachbarten Ortsteilen der Gemeinde Neukieritzsch sowie in den nahegelegenen Städten Borna und Regis-Breitingen vorhanden. Dort finden sich größere Supermärkte, Apotheken, Fachärzte, gastronomische Einrichtungen und Bildungseinrichtungen aller Schulformen. Für Berufspendler ist die Lage äußerst attraktiv: Der Bahnhof Deutzen ist fußläufig erreichbar und bietet regelmäßige Zugverbindungen in Richtung Leipzig, Altenburg und Zwickau. Auch der benachbarte Bahnhof Neukieritzsch sorgt für direkte Anbindungen an das S-Bahn-Netz der Metropolregion Leipzig-Halle. Über die Bundesstraße B176 und die Autobahnen A72 sowie A38 ist Deutzen auch per PKW verkehrsgünstig angebunden. Ein besonderes Highlight ist die unmittelbare Nähe zu den Naherholungsgebieten des Leipziger Neuseenlands. Der Hainer See, die Pleiße-Auenlandschaft sowie zahlreiche Rad- und Wanderwege laden zu vielfältigen Freizeitaktivitäten im Grünen ein. Naturverbundene Bewohner und Aktivurlauber profitieren hier von einem außergewöhnlichen Erholungswert direkt vor der Haustür. Nicht zuletzt sorgt das intakte Gemeindeleben mit kulturellen Veranstaltungen, Vereinen und einem regen sozialen Miteinander für eine hohe Wohn- und Lebensqualität. Die ruhige, familienfreundliche Umgebung gepaart mit der Nähe zur Großstadt Leipzig macht diesen Standort sowohl für Eigennutzer als auch für Kapitalanleger äußerst attraktiv. Mit ÖPNV besteht folgende Anbindung: Bus | Deutzen Markt (circa 450 Meter) Bahnhof | Deutzen (circa 750 Meter)
Sonstige Angaben
Unsere Makler beraten Sie gerne persönlich per Telefon oder Videokonferenz. Schicken Sie uns einfach eine Anfrage über ImmoScout24 und registrieren Sie sich auf unserer Kundenplattform myHomeday. Einen Link zu myHomeday erhalten Sie automatisch nach Ihrer Anfrage per E-Mail. Dort können Sie die Adresse und Dokumente der Immobilie freischalten sowie direkt einen Beratungstermin buchen.
Adresse
04575 Deutzen
Interessante Orte
Preis- und Lageinformationen
Preistrend für Bestandsimmobilien in Deutzen