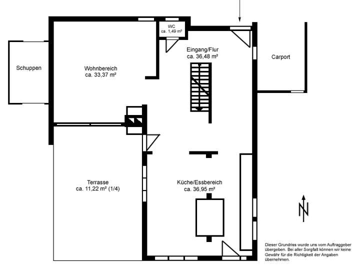
Dieses solide, im Jahr 1972 erbaute Einfamilienhaus bietet ausreichend Platz und ist daher ein wahrer Familientraum. Stein auf Stein mit einem Walmdach errichtet, bietet Ihnen die Architektur über Eck eine nach Süden gerichtete, geschützte Terrasse, die von dem Wohn- und dem Esszimmer zu begehen ist.
Im Jahr 2021 wurde das Haus in vielen Bereichen renoviert. So wurde die Elektrik grunderneuert (innen wie außen) sowie die Wasserleitungen zum Teil erneuert. Nahezu alle Fenster wurden durch dreifach verglaste Kunststofffenster ersetzt, welche innen weiß und außen grau gehalten sind. Einige der Fenster bieten eine Verdunklungsmöglichkeit. Von außen wurde das Haus gestrichen und der Dachunterstand erneuert. Die Ölheizung aus dem Jahr 1991 der Firma Vissmann besitzt einen ca. 6000 l fassenden Tank und eine im Jahr 2021 neu eingebaute Pumpe. Das Grundstück ist zur Straße hin mit einem elektrisch betriebenen Tor eingezäunt. Ein Carport und ein Außenstellplatz sind im vorderen Bereich des Grundstückes vorhanden. Auf der rechten Seite des Hauses befindet sich ein Schuppen für Gartengeräte und weitere Unterstellmöglichkeiten. Dadurch ist der nach Süden gerichtete Gartenbereich sicher abgetrennt und uneinsehbar zum vorderen Straßenbereich.
Modern und hochwertig renoviertes Einfamilienhaus
22549 Hamburg
Die vollständige Adresse der Immobilie erhalten Sie vom Anbieter.
Auf Karte anzeigen
Die vollständige Adresse der Immobilie erhalten Sie vom Anbieter.
Finanzierungszertifikat
In nur zwei Minuten zu Ihrem persönlichen Finanzierungszertifkat.
Infos
| Haustyp | Einfamilienhaus |
|---|---|
| Etagenzahl | 2 |
| Wohnfläche ca. | 190 m2 |
| Nutzfläche | 77 m2 |
| Grundstücksfläche | 981 m2 |
| Zimmer | 5 |
| Schlafzimmer | 3 |
| Badezimmer | 1 |
| Garage/Stellplatz | Carport |
| Anzahl Garage/Stellplatz | 2 |
Kosten
| Kaufpreis |
1.420.000 € |
|---|---|
| Provision |
2,5 % inkl. MwSt. bezogen auf den Kaufpreis 2,5 % Käuferprovision inkl. der gesetzl. MwSt., bezogen auf den Kaufpreis. Die Firma Homes Hamburg Immobilien hat einen provisionspflichtigen Maklervertrag mit dem Verkäufer in gleicher Höhe abgeschlossen. Siehe Hinweis unter „Sonstiges“. |
Finanzierungsrechner:
Kaufpreis:
600.000 €
Eigenkapital:
600.000 €
Monatliche Rate
0 €
Effektiver Jahreszins
0 %
Sollzinsbindung
10 Jahre
Bausubstanz & Energieausweis
| Baujahr | 1972 |
|---|---|
| Letzte Sanierung | 2021 |
| Objektzustand | Modernisiert |
| Qualität der Austattung | Gehoben |
| Heizungsart | Öl-Heizung |
| Wesentliche Energieträger | Öl |
| Energieausweis | liegt vor |
| Energieausweistyp | Bedarfsausweis |
| Energieverbrauchskennwert | 219,2 kWh/(m²*a) |
| Energieeffizienzklasse | G |
219,2
kWh/(m²*a)
Energieeffizienzklasse G
- A+
- A
- B
- C
- D
- E
- F
- G
- H
- 0
- 25
- 50
- 75
- 100
- 125
- 150
- 175
- 200
- 225
- >250
Beschreibung des Objekts
Ausstattung
Im Innenbereich erhielt das Haus eine dekorative Grundrenovierung. Weiterhin wurde die Architektur geändert und ein offener Ess- und Küchenbereich geschaffen, der nahtlos an den Eingangsbereich grenzt. Die im dunklen Grau gehaltene Küche der Marke Schüller ist ausgestattet mit elektrischen Geräten der Marken Miele und Bosch (Backofen, Mikrowelle, Kühlschrank) und einem Mittelblock mit Induktionskochfeld und Bora Dunstabzug. Optisch sehr passend wurde die Küche mit einer Arbeitsplatte aus Granit versehen. Im gesamten Haus wurde ein hochwertiges, sehr ansprechendes Eichenparkett verlegt. Das Erdgeschoss wird über eine Fußbodenheizung erwärmt. Im Oberschoss befinden sich Radiatoren und eine Fußbodenerwärmung in einem Teilbereich des Badezimmers. Das Wohnzimmer bietet Ihnen neben der großzügigen Glasschiebetür mit Blick in den schönen Garten einen modernen Kamin mit 12,5 kW. Weiterhin befindet sich im Erdgeschoss das Gäste-WC.
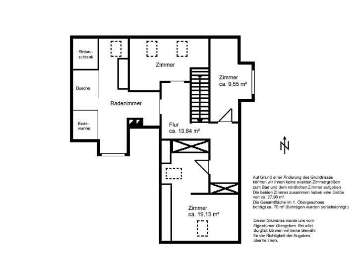
Das Obergeschoss ist aufgeteilt in drei Schlafzimmer und ein großzügiges, modernes Vollbad. Dieses lässt keine Wünsche offen. So finden Sie hier einen großen Doppelwaschtisch mit Unterschränken, eine offene, großzügige Dusche mit Rainshower und einer Glasabtrennung sowie eine in ein Podest eingelassene Badewanne. Die Downlights und die warmen Farbtöne des Bades sorgen für eine besonders behagliche Atmosphäre. Im gesamten Haus wurden maßangefertigte, hochwertige Holzschränke in Weiß eingebaut und somit die Schrägen im Obergeschoss optimal ausgenutzt.
Der Dachboden ist über eine Monarchtreppe zu erreichen und bietet die üblichen Abstellmöglichkeiten. Weiteren Stauraum finden Sie im Teilkeller des Hauses. Neben der Heizung und der Waschküche stehen Ihnen zwei weitere Abstellräume zur Verfügung. Im Zuge der Renovierung wurde ebenfalls eine Klimaanlage in fast allen Räumen eingebaut.
Die Beleuchtung im Haus ist in allen Räumen dimmbar. Eine Außenbeleuchtung inkl. Panikbeleuchtung ist ebenfalls vorhanden. Hierfür gibt es zwei Schalter, jeweils einen im Erd- sowie im Obergeschoss. Dies sowie die erwähnte Abgrenzung des Gartens durch das Carport und den Schuppen bietet Ihnen ein hohes Maß an Sicherheit.
Dieses Haus besticht durch die klare und optisch sehr ansprechende Ausstattung.
Wir freuen uns darauf, Ihnen die Immobilie vor Ort präsentieren zu dürfen!
Lage
Dieses geräumige Einfamilienhaus liegt im besonders bei Familien beliebten Stadtteil Osdorf. Vielfältige Einkaufsmöglichkeiten befinden sich im Elbe – Einkaufszentrum sowie im ursprünglichen Ortskern Alt-Osdorf. Ebenfalls gut zu erreichen ist der Groß – Flottbeker Wochenmarkt.
Die Grundschule Wesperloh und das Lise-Meitner-Gymnasium sind nur einen Steinwurf entfernt und die Gymnasien Christianeum, Hochrad und Othmarschen sowie die Internationale Schule befinden sich in gut erreichbarer Nähe. Die Innenstadt ist durch die Anbindung der Bus und der S-Bahn - Verbindungen gut zu erreichen. Die A7 ist ca. zehn Autominuten entfernt.
Sonstige Angaben
Mit diesem Angebot bieten wir Ihnen unsere Dienstleistung an. Der Maklervertrag mit der Firma Homes Hamburg Immobilien kommt durch die Bestätigung der Inanspruchnahme unserer Maklertätigkeit zustande. Diese Vertragserklärungen von Makler und Kunde bedürfen seit Inkrafttreten der neuen Regelungen zur Maklerprovision am 23.12.2020 der Textform (§ 656 a BGB).
Bei Abschluss eines notariellen Kaufvertrages ist die Nachweis- und/oder Vermittlungsprovision in Höhe von 2,5 % inkl. der gesetzl. MwSt., bezogen auf den Kaufpreis, verdient und fällig und vom Käufer an die Firma Homes Hamburg Immobilien zu zahlen, die hierdurch einen unmittelbaren Zahlungsanspruch gegenüber dem Käufer erhält.
Die Firma Homes Hamburg Immobilien hat einen provisionspflichtigen Maklervertrag mit dem Verkäufer in gleicher Höhe abgeschlossen.
Grunderwerbsteuer, Notar- und Grundbuchkosten sind vom Käufer zu tragen. Alle Angaben über diese Immobilie beruhen auf Auskünften des Eigentümers. Für Richtigkeit, Aktualität und Vollständigkeit dieser Angaben übernehmen wir keine Gewähr. Irrtum und Zwischenverkauf vorbehalten. Die Geschäftsgelegenheit gilt als unbekannt, sofern kein Widerspruch mit entsprechendem Nachweis baldmöglichst schriftlich erfolgt. Die Weitergabe unserer Angebote an Dritte ohne unsere Zustimmung führt gegebenenfalls zu Courtage- bzw. Schadensersatzansprüchen. Wir behalten uns ausdrücklich vor, auch für den jeweils anderen Vertragspartner der Geschäftsgelegenheit provisionspflichtig tätig zu sein. Unsere Datenschutzverordnung finden Sie unter www.homes-hamburg.de/datenschutzerklaerung/.
Grundriss
Grundriss EG gez.
>
>
Grundriss OG gez.
>
>
Grundriss Keller gez.
>
>
Adresse
22549 Hamburg
Interessante Orte
Preis- und Lageinformationen
Preistrend für Bestandsimmobilien in Osdorf