Bist du bereit? Lass uns loslegen!
Warum warten, wenn dein eigenes Zuhause nur eine Entscheidung entfernt ist?
Unsere Wegbegleiter holen dich dort ab, wo du gerade stehst, und ebnen deinen persönlichen Weg zum Wohneigentum.
Fehlt dir noch das passende Grundstück? Wir helfen dir, es zu finden.
Hast du Fragen zur Finanzierung? Wir haben die Lösung.
Bist du unsicher, welches Haus das richtige für dich ist? Unsere Experten unterstützen dich dabei.
Es gibt nie den perfekten Moment, aber es gibt den richtigen Schritt.
Dein Zuhause beginnt heute mit White&Black.
Build Your Way – Entscheide selbst, wie du bauen willst.
56412 Nentershausen
Die vollständige Adresse der Immobilie erhalten Sie vom Anbieter.
Auf Karte anzeigen
Die vollständige Adresse der Immobilie erhalten Sie vom Anbieter.
Finanzierungszertifikat
In nur zwei Minuten zu Ihrem persönlichen Finanzierungszertifkat.
Infos
| Haustyp | Einfamilienhaus |
|---|---|
| Wohnfläche ca. | 150 m2 |
| Nutzfläche | 0 m2 |
| Grundstücksfläche | 638 m2 |
| Zimmer | 4 |
| Schlafzimmer | 3 |
| Badezimmer | 1 |
| Anzahl Garage/Stellplatz | 0 |
Kosten
| Kaufpreis |
325.400 € |
|---|---|
| Provision | Nein |
Finanzierungsrechner:
Kaufpreis:
600.000 €
Eigenkapital:
600.000 €
Monatliche Rate
0 €
Effektiver Jahreszins
0 %
Sollzinsbindung
10 Jahre
Bausubstanz & Energieausweis
| Baujahr | 2026 |
|---|---|
| Bauphase | Haus in Planung (projektiert) |
| Qualität der Austattung | Gehoben |
| Heizungsart | Wärmepumpe |
Beschreibung des Objekts
Ausstattung
THINK WHITE – Do it yourself.
- Fertige Gebäudehülle – du entscheidest über den Innenausbau
- Maximale Individualität – für kreative Köpfe & Macher
- Ideal für Eigenleistung – handwerkliches Geschick spart bares Geld
- Optimierte Grundrisse – smarte Wohnkonzepte für flexible Gestaltung
- Hochwertige Bauweise – modern, nachhaltig & energieeffizient
- Zugang zu staatlichen Förderprogrammen – clever finanzieren & sparen
Für alle, die ihr Zuhause selbst gestalten wollen!
Lage
Der Grundstückspreis ist im Angebot enthalten zzgl. der Baunebenkosten, die abhängig sind von der Lage, der Größe und kann daher variieren.
Das Grundstücksangebot (Verkauf/Vermittlung) erfolgt über einen kooperierenden Makler gem. §34cGewO.
Mit Ihrer Anfrage stimmen Sie zu, dass der Makler sowohl telefonisch als auch schriftlich mit Ihnen in Kontakt treten darf. Dies ermöglicht uns, Ihnen den bestmöglichen Service zu bieten und Ihre Anliegen effizient zu bearbeiten.
Mit Ihrer Anfrage stimmen Sie zu, dass der Makler sowohl telefonisch als auch schriftlich mit Ihnen in Kontakt treten darf. Dies ermöglicht uns, Ihnen den bestmöglichen Service zu bieten und Ihre Anliegen effizient zu bearbeiten.
Sie suchen für Ihr Traumhaus noch Ihr Wunschgrundstück?
Durch unsere Kooperationspartner bekommen auch Sie sicherlich für Ihr Bauvorhaben das passende Grundstück.
Sprechen Sie uns an.
Die von uns gemachten Informationen beruhen auf Angaben des Verkäufers bzw. der Verkäuferin. Für die Richtigkeit und Vollständigkeit der Angaben kann keine Gewähr bzw. Haftung übernommen werden. Ein Zwischenverkauf und Irrtümer sind vorbehalten.
Sonstige Angaben
Vereinbare einen persönlichen Beratungstermin, um über Deinen Haustraum und das angebotene Objekt zu sprechen.
Bitte beachte, dass die dargestellten Bilder und Grundrisse nur beispielhaft sind und unter Umständen Sonderbauteile enthalten, die nicht im angegebenen Preis enthalten sind.
Hab außerdem bitte Verständnis dafür, dass weitere Details zum angebotenen Grundstück erst nach einem persönlichen Gespräch bekanntgegeben werden und nur vollständige Anfragen bearbeitet werden können.
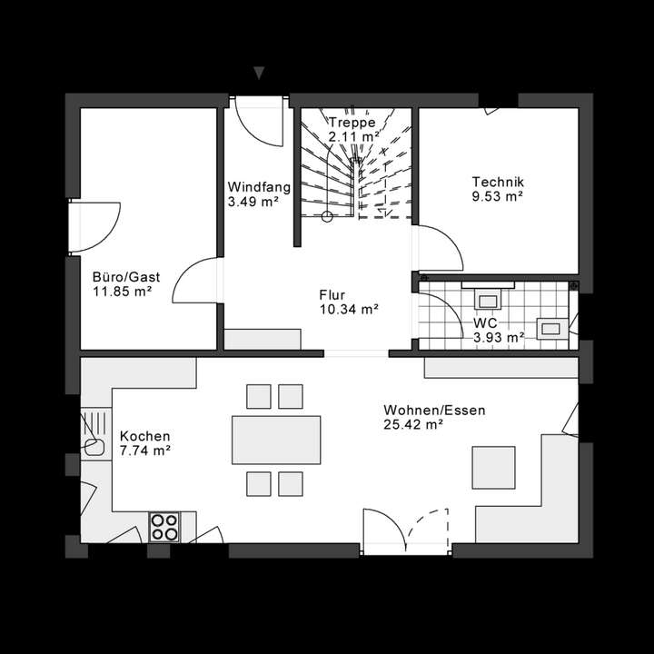
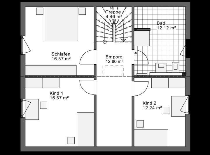
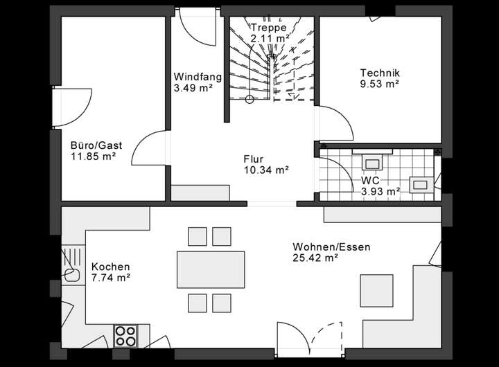
Grundriss
Grundriss EG
>
>
Grundriss OG
>
>
Adresse
56412 Nentershausen
Interessante Orte
Preis- und Lageinformationen
Preistrend für Bestandsimmobilien in Nentershausen