Willkommen in Ihrem neuen Zuhause welches Komfort und ein Wohngefühl für Ihre Familie vereint! Dieses exquisite 2-stöckige Haus besticht durch ein wunderschön gelegenes Eckgrundstück mit nur einem Nachbar.
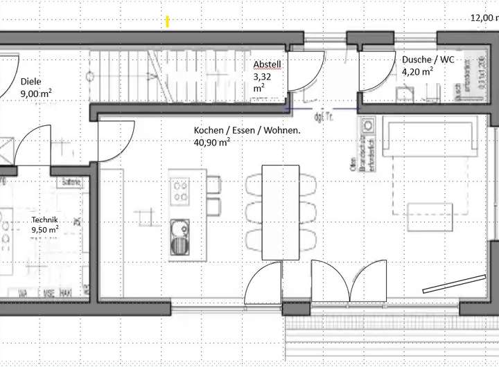
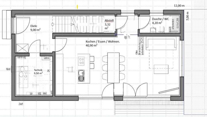
Im Erdgeschoss erwartet Sie ein großzügiger Wohnbereich mit eleganten Böden, bodentiefen Fenstern, die viel Tageslicht hereinlassen und einen herrlichen Blick auf Ihren Garten und die Natur bieten. Ein geräumiges Esszimmer lädt zu geselligen Abenden ein.
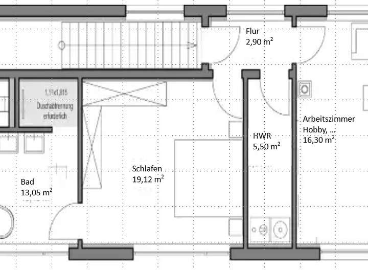
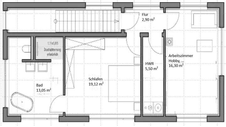
Über die elegante Holztreppe gelangen Sie ins Obergeschoss, wo sich die Schlafzimmer befinden. Die Master-Suite verwöhnt mit einem eigenen Badezimmer und einem begehbaren Kleiderschrank. Die weiteren Schlafzimmer bieten ausreichend Platz für die Kinder und Gäste.
Der großzügige Gartenbereich ist ein wahres Paradies für Naturliebhaber und bietet viel Raum zum Spielen, Gärtnern und Entspannen. Hier können Sie auf der Terrasse unter freiem Himmel speisen und sich von der Sonne verwöhnen lassen.
Sonniges Eckgrundstück für ein Lieblingshaus
67590 Monsheim
Die vollständige Adresse der Immobilie erhalten Sie vom Anbieter.
Auf Karte anzeigen
Die vollständige Adresse der Immobilie erhalten Sie vom Anbieter.
Finanzierungszertifikat
In nur zwei Minuten zu Ihrem persönlichen Finanzierungszertifkat.
Infos
| Haustyp | Einfamilienhaus |
|---|---|
| Etagenzahl | 2 |
| Wohnfläche ca. | 140 m2 |
| Nutzfläche | 100 m2 |
| Grundstücksfläche | 450 m2 |
| Zimmer | 6 |
| Schlafzimmer | 2 |
| Badezimmer | 2 |
| Garage/Stellplatz | Garage |
| Anzahl Garage/Stellplatz | 2 |
Kosten
| Kaufpreis |
762.500 € |
|---|---|
| Provision | Nein |
Finanzierungsrechner:
Kaufpreis:
600.000 €
Eigenkapital:
600.000 €
Monatliche Rate
0 €
Effektiver Jahreszins
0 %
Sollzinsbindung
10 Jahre
Bausubstanz & Energieausweis
| Baujahr | 2026 |
|---|---|
| Bauphase | Haus in Planung (projektiert) |
| Objektzustand | Erstbezug |
| Qualität der Austattung | Gehoben |
| Heizungsart | Wärmepumpe |
| Wesentliche Energieträger | Strom |
Beschreibung des Objekts
Ausstattung
Die Ausstattung ist bis dato frei wählbar, weil Sie das Haus mit uns konzipieren, mitgestalten und nach Belieben und Ihrem Geschmack ausstatten können. Von Anfang an Ihr Lieblingshaus, Ihr LUXHAUS.
Lage
Monsheim ist eine idyllische Ortsgemeinde im südlichen Rheinland-Pfalz, rund 10 Kilometer südwestlich von Worms gelegen. Die Gemeinde gehört zur Verbandsgemeinde Monsheim im Landkreis Alzey-Worms und liegt inmitten der malerischen Weinbauregion Rheinhessen – dem größten Weinanbaugebiet Deutschlands.
Der Ort ist geprägt von einer harmonischen Mischung aus ländlicher Beschaulichkeit und moderner Infrastruktur. In Monsheim findet man liebevoll restaurierte Winzerhöfe, gemütliche Gassen und zahlreiche Weinberge, die das Bild der Region prägen. Besonders im Spätsommer, zur Zeit der Weinlese, zeigt sich Monsheim von seiner lebendigsten Seite: Weinfeste, Straußwirtschaften und regionale Spezialitäten laden Besucher zum Verweilen ein.
Ein architektonisches Highlight ist das historische Schloss Monsheim mit seiner weitläufigen Parkanlage, das heute unter anderem als Sitz von Verwaltungsstellen dient. Auch die evangelische Kirche im Ortskern sowie verschiedene Brunnen und Denkmäler erzählen von der langen Geschichte des Dorfes, die bis in die Römerzeit zurückreicht.
Verkehrstechnisch ist Monsheim gut angebunden: Der Bahnhof bietet direkte Zugverbindungen unter anderem nach Worms, Alzey und Mainz. Durch die Lage an der Bundesstraße B271 sowie die Nähe zur A61 ist auch die Anbindung mit dem Auto hervorragend.
Neben dem Weinbau spielt das Gemeinschaftsleben eine zentrale Rolle. Verschiedene Vereine – vom Musikverein bis zum Turnverein – prägen das kulturelle und soziale Miteinander. Auch Schulen, Kindergärten und Einkaufsmöglichkeiten sind vorhanden und machen Monsheim zu einem attraktiven Wohnort für Familien und Berufspendler gleichermaßen.
Sonstige Angaben
Exklusiver Partner und Handelsvertretung der LUXHAUS Vertrieb GmbH & Co. KG
Wir entwickeln und projektieren individuell und nach Ihren Anforderungen und Wünschen ihr ganz persönliches Wohlfühlambiente!
Wir betreuen Sie vom Erstkontakt bis zur Schlüsselübergabe und sind ihr kompetenter Ansprechpartner rund um ihr gesamtes Neubauprojekt!
Ihre Vorteile durch die LUXHAUS Climatic-Wand-Technologie
− Energiesparend durch Dämmung der Spitzenklasse, U-Wert: 0,12 W/m²K (U-Wert im Gefach 0,10 W/m²K),
Gesamtwandstärke ca. 38,5 cm
− Perfekter sommerlicher Hitzeschutz durch Phasenverschiebung dank Holzfaserdämmplatten als Bestandteil des Wärmedämmverbundsystems
− Wohngesundheit durch ökologischen Aufbau der Wandkonstruktion, ausgezeichnet von dem Institut für Baubiologie in Rosenheim
− Sicherheit durch Feuerwiderstandsdauer von mindestens 90 Minuten bei Brandbeanspruchung von außen (REI 90)
− Beitrag zum Klimaschutz durch nachwachsenden Rohstoff Holz
− Exzellentes Raumklima durch diffusionsoffenen Wandaufbau, entwickelt mit dem Fraunhofer Institut für Bauphysik
− Fest und extrem belastbar durch unsere einzigartige Massiv - Verleimung und eine 200 mm starke
Holzrahmenkonstruktion
- 30 Jahre Garantie auf tragende Konstruktion
- 5 Jahre Gewährleistung auf alles
- 2 Tage Ausstattungsberatung in unserer Bemusterungsboutique
- 15 Monate Festpreisgarantie
- Grundstücksservice: Suche und Begleitung bis zum Notartermin
- eigener Finanzierungsservice
- KfW-Förderung
- QNG-förderfähig
- Architektenleistungen
- Technikberatung
- Bodengutachten
- Baustelleneinrichtung
- modernste Haustechnik
- u. v. a. m.
Im Angebot enthalten sind keine individuellen Kosten wie bspw. Baunebenkosten. In der Bedarfsanalyse gehen wir transparent auf alle Kosten ein, um Überraschungen vorzubeugen.
Bitte beachten Sie, dass die dargestellten Bilder und Grundrisse beispielhaft sind und unter Umständen Sonderbauteile enthalten, die nicht im angegebenen Preis beinhaltet sein können.
Weitere Dokumente
AufgeschlüsseltLUXHAUS Finanzierungsservice
LUXHAUS Hausexperte
LUXHAUS Mehrwertebroschüre
So bauen wir Ihr persönliches
Grundriss
Grundriss SD 140 EG
>
>
Grundriss SD 140 OG
>
>
Adresse
67590 Monsheim
Interessante Orte
Preis- und Lageinformationen
Preistrend für Bestandsimmobilien in Monsheim