Diese Stadtvilla mit ca. 175 m² Netto-Grundfläche (nach DIN277) spricht mit seinem mediterranen, aber doch modernem Flair einfach für sich!
Die Luft-Wasser-Wärmepumpe mit der Belüftungsanlage sorgt für angenehmes Raumklima und den Strom hierfür erzeugen Sie zum Teil mit der Photovoltaikanlage selbst.
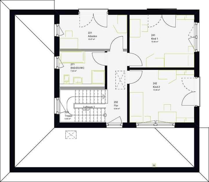
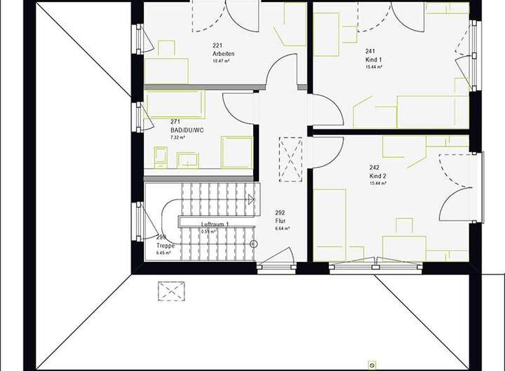
Das Elternschlafzimmer im EG, mit seinem eigenen Duschbad hat seinen besonderen Charm. Das Dachgeschoss können Sie dann Ihren Kindern überlassen.
Gerne passen wir den Grundriss, aber auch die Hausgröße Ihren Bedürfnissen an. Anbauteile wie Erker, Balkone, Zwerchgiebel, Wintergärten, Garagen usw. sind natürlich auch möglich, um Ihrem Haus noch mehr Flair zu geben. Sprechen Sie mich hierzu an!
Die überdachte Terrasse bietet an Sonnentagen Schatten, und bei Regen Schutz.
Noch mehr Platz bekommen Sie, wenn wir Ihnen auch einen Keller anbieten. Ihre Grundfläche vergrößern Sie dann entsprechend.
Bei unserer Raumhöhe von 2,75 m empfinden Sie das Wohnen ganz anders. Diese Raumhöhe ermöglicht nicht nur eine wunderbare Behaglichkeit, sondern macht es auch möglich, dass unsere Terrassentüren und Fenster höher ausgeführt werden können. Der zusätzliche Lichteinfall begeistert all unsere Kunden!
Das Effizienzhaus 55 ist bei uns Standard. Das Effizienzhaus 40 und 40 Plus sind natürlich auch möglich!
Die Stadtvilla mit dem besonderen Flair in Mainz-Finthen auf einem Abrissgrundstück.
55126 Mainz
Die vollständige Adresse der Immobilie erhalten Sie vom Anbieter.
Auf Karte anzeigen
Die vollständige Adresse der Immobilie erhalten Sie vom Anbieter.
Finanzierungszertifikat
In nur zwei Minuten zu Ihrem persönlichen Finanzierungszertifkat.
Infos
| Haustyp | Einfamilienhaus |
|---|---|
| Etagenzahl | 2 |
| Wohnfläche ca. | 175 m2 |
| Grundstücksfläche | 530 m2 |
| Zimmer | 5 |
| Schlafzimmer | 4 |
| Badezimmer | 2 |
Kosten
| Kaufpreis |
1.059.000 € |
|---|---|
| Provision | Nein |
Finanzierungsrechner:
Kaufpreis:
600.000 €
Eigenkapital:
600.000 €
Monatliche Rate
0 €
Effektiver Jahreszins
0 %
Sollzinsbindung
10 Jahre
Bausubstanz & Energieausweis
| Baujahr | unbekannt |
|---|---|
| Bauphase | Haus in Planung (projektiert) |
| Objektzustand | Erstbezug |
| Qualität der Austattung | Normal |
Beschreibung des Objekts
Ausstattung
Ausstattung und im Preis enthalten:
- Grundstück
- Projektiertes Ausbauhaus mit Klima-Plus-Wand
- massa Freiraum = Wohnraumhöhe 2,75 m im EG und DG serienmäßig
- KfW Effizienzhaus 55 mit hochwertigen 3-fach-verglasten Wärmeschutzfenster
- inklusive Architekten- und Ingenieurleistungen (Genehmigungsplanung, Bauantrag,
Statik, Wärmebedarfsberechnungen usw.)
- massa Bodenplatte
Ein Keller ist gegen Aufpreis möglich!
- Bodengutachten für die Untersuchung des Baugrundes
- Luft-Wasser-Wärmepumpe (deutscher Markenhersteller)
- Fußbodenheizung
- Photovoltaikanlage mit Stromspeicher
- Kontrollierte Be- und Entlüftungsanlage für perfektes Wohlfühlklima inkl.
Wärmerückgewinnung
- umfangreiche Elektroausstattung inkl. Installation
- Materiallieferung Dämm- und Beplankungsmaterial
- Sanitär-Rohinstallation für alle Bäder und Küche
- Moderne Buchenholztreppe in verschiedenen Farben inkl. Edelstahl-Geländerstäbe
- Alu-Rollläden für alle Fenster und moderne Haustüre zur Auswahl
- Dachrinne und Fallrohre aus Zink
- 5-fach-Versicherungsschutz (Bauleistung-, Bauherren-Haftpflicht-, Feuerrohbau- und Wohngebäudeversicherung, Einkommensschutzversicherung)
- 15 Monate Festpreisgarantie
- Bezahlung des Hauses erst nach Baufortschritt (Abnahme der Leistungen)
Der genannte Preis versteht sich zuzüglich Bemusterungspaket (komplette Innenausstattung wie z.B. Fliesen, Türen, Sanitärobjekte, Bodenbeläge, usw.), Lohnkosten für den Innenausbau, Baunebenkosten (Erdarbeiten, Hausanschluss, Baustelleneinrichtung usw.), Grunderwerbsteuer und Notarkosten.
Da es sich um ein Abrissgrundstück handelt, kommen auch noch die Abrisskosten hinzu.
Dieses hochwertige Haus in modernster Bauweise schafft bleibende Werte. Unser Standard entspricht dem "KfW Effizienzhaus 55"! Das Effizienzhaus 40 und 40 Plus ist auch möglich!
Unsere zertifizierte Qualität:
- RAL-Gütezeichen von der Bundes-Gütegemeinschaft Montagebau und Fertighäuser e.V.
-Creditreform Bonitätszertifikat "Ausgezeichnete Bonität"
-DGNB Zertifikat für nachhaltiges Bauen (Deutsche Gesellschaft für nachhaltiges
Bauen)
- Urkunde der Qualitätsgemeinschaft Deutscher Fertigbau (QDF) für die Einhaltung der geforderten Gesamtqualitätsrichtlinien
- TÜV Rheinland Zertifikat für gesünderes Bauen mit dem Zertifikat für schadstoffgeprüfte Wohnhäuser
Außerdem bieten wir Ihnen auch andere Ausbaustufen an. Zum Beispiel die "fast-fertig-Option". Hierbei übernehmen wir für Sie die Koordination und die Durchführung des Ausbaus.
Nutzen Sie auch unseren Grundstücks- und Finanzierungsservice!
Rufen Sie mich an, ich helfe Ihnen gerne.
Lage
Das Grundstück befindet sich in einer Sackgasse, wodurch Sie die Ruhe besonders genießen können.
Weitere Dokumente
TÜV-Zertifikat_massa haus gültQDF_2022_massa gültig bis 12-2
DGNB Zertifikat
Creditreform Bonitätszertifika
2022_2023_RAL-Urkunde massa gü
Urkunde_ImmoScout24_Partner
Grundriss
Erdgeschoss
>
>
Obergeschoss
>
>
Adresse
55126 Mainz
Interessante Orte
Preis- und Lageinformationen
Preistrend für Bestandsimmobilien in Finthen