Das im Jahr 2002 erbaute Reihenendhaus bietet auf ca. 132 m² Wohnfläche einen durchdachten Grundriss mit insgesamt vier Zimmern. Es eignet sich besonders für Familien oder alle mit mehr Platzbedarf, die Wert auf eine ruhige Lage und eine gepflegte Immobilie legen.
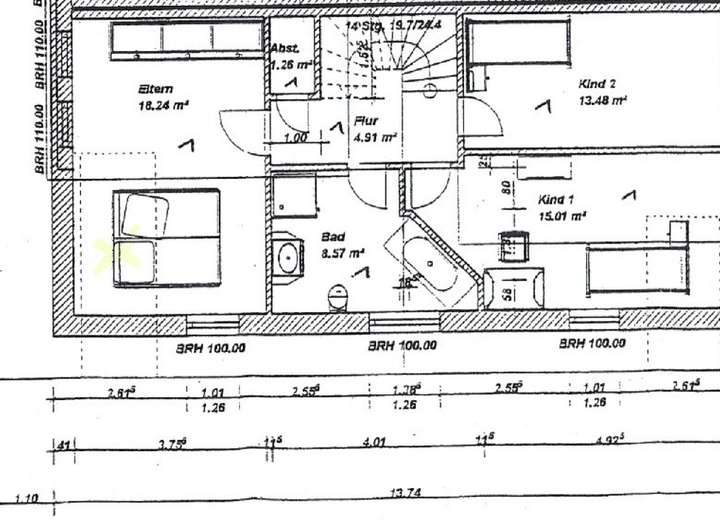
Das Erdgeschoss umfasst einen großzügigen Wohn- und Essbereich mit Zugang zur Terrasse und dem kleinen Garten, eine separate Küche, zwei Hauswirtschaftsräume sowie ein Gäste-WC. Im Obergeschoss befinden sich drei Schlafzimmer (ein Elternschlafzimmer und zwei Kinderzimmer) sowie ein Tageslichtbad mit Dusche und Badewanne.
Der Spitzboden mit ca. 18 m² Grundfläche dient aktuell als Abstellraum und kann bei Bedarf zu einem Spiel- oder Arbeitszimmer ausgebaut werden.
Das Haus wurde folgendermaßen renoviert:
    • neue Brennwerttherme (2023)
    • neue Terrassenpflasterung (2023)
    • neuer Gartenzaun (2021)
    • neue Bodenbeläge (2020)
    • Überarbeitung der Elektrik mit Verlegung von Netzwerkkabeln in alle Zimmer (2020)
Zur Immobilie gehören ein PKW-Stellplatz, eine Ladestation für Elektrofahrzeuge (11 kW) sowie eine Fahrradgarage.
Das Haus ist insgesamt sehr gepflegt, bietet ein modernes Wohnumfeld und ist ohne Renovierungsaufwand bezugsfertig.
            
        Top gepflegtes Reihenendhaus (2002) mit vielen Renovierungen in Spielstraße (provisionsfrei)
                     27751 Delmenhorst                            
Die vollständige Adresse der Immobilie erhalten Sie vom Anbieter.
        
            
            Auf Karte anzeigen
        
        
    Die vollständige Adresse der Immobilie erhalten Sie vom Anbieter.
    Finanzierungszertifikat
In nur zwei Minuten zu Ihrem persönlichen Finanzierungszertifkat.
Infos
| Haustyp | Reiheneckhaus | 
|---|---|
| Etagenzahl | 2 | 
| Wohnfläche ca. | 132 m2 | 
| Grundstücksfläche | 235 m2 | 
| Bezugsfrei ab | nach Absprache | 
| Zimmer | 4 | 
| Schlafzimmer | 3 | 
| Badezimmer | 1 | 
| Garage/Stellplatz | Außenstellplatz | 
| Anzahl Garage/Stellplatz | 1 | 
Kosten
| Kaufpreis | 
                347.000 € | 
        
|---|---|
| Provision | Nein | 
Finanzierungsrechner:
                    
                     Kaufpreis:
                        
                            600.000 €
                        
                    
                    
                    
                
            
                        
                            Eigenkapital:
                            
                                 600.000 €
                            
                        
                    
                
            
                        Monatliche Rate
                        0 €
                    
                    
                        
                            Effektiver Jahreszins
                        
                        0 %
                    
                    
                        Sollzinsbindung
                        10 Jahre
                    
                Bausubstanz & Energieausweis
| Baujahr | 2002 | 
|---|---|
| Bauphase | Haus fertig gestellt | 
| Objektzustand | Vollständig Renoviert | 
| Heizungsart | Zentralheizung | 
| Wesentliche Energieträger | Gas | 
| Energieausweis | liegt vor | 
| Energieausweistyp | Verbrauchsausweis | 
| Energieverbrauchskennwert | 60,2 kWh/(m²*a) | 
| Energieeffizienzklasse | B | 
                                                    60,2
                                kWh/(m²*a)
                                                
                    Energieeffizienzklasse B
- A+
 - A
 - B
 - C
 - D
 - E
 - F
 - G
 - H
 
- 0
 - 25
 - 50
 - 75
 - 100
 - 125
 - 150
 - 175
 - 200
 - 225
 - >250
 
Beschreibung des Objekts
Ausstattung
                Terrasse, Garten, Vollbad, Duschbad, Einbauküche, Gäste-WC, Fliesen, Sonstiges (s. Text)
Bemerkungen:
Das Reihenendhaus überzeugt durch eine gepflegte und moderne Ausstattung, die in den vergangenen Jahren regelmäßig aufgewertet wurde. Viele Details machen das Wohnen komfortabel und familiengerecht.
Wohn- und Schlafräume
    • Heller, offener Wohn-/Essbereich mit hochwertigem Vinylboden
    • Im Obergeschoss liegen Schlafzimmer und Kinderzimmer mit langlebigem Korkboden der Marke Wicanders - angenehm fußwarm und pflegeleicht
    • Wände überwiegend mit modernem Malervlies gestaltet
      
Küche
    • Moderne Einbauküche mit Marken-Elektrogeräten
    • Viel Stauraum und praktische Arbeitsflächen mit pflegeleichtem Fliesenboden 
    • Küche ist im Kaufpreis enthalten
Bäder
    • gefliestes Tageslichtbad mit Dusche und Badewanne
    • gefliestes Gäste-WC im Erdgeschoss
    • Beide Räume sind noch im Originalzustand
Technik & Energie
    • Neue Brennwerttherme (2023) mit effizientem Heizsystem über Heizkörper (Energieeffizienzklasse B)
    • Doppelt verglaste Fenster im gesamten Haus, einige mit fest verbautem Insektenschutz, Rollläden an allen Fenstern
    • Netzwerkverkabelung in allen Zimmern  - ideal für Homeoffice oder Gaming
    • Internet mit Gigabit-Geschwindigkeit möglich - sowohl Glasfaser (FTTH) als auch TV-Kabel verfügbar
    • TV-Empfang über Kabel, DVB-T oder Internet
Außenbereich
    • Sonnige Terrasse mit neuer Pflasterung (2023)
    • Pflegeleichter kleiner Garten, ideal zum Entspannen oder Spielen
    • Neuer Gartenzaun (2021) für Privatsphäre
    • Fahrradgarage mit Platz für bis zu 4 Fahrräder
    • PKW-Stellplatz direkt am Haus
Zusammenfassung
Dieses Haus bietet eine rundum solide und moderne Ausstattung. Die Immobilie befindet sich in einem sofort bezugsfertigen Zustand. Durch die Kombination aus hochwertiger Innenausstattung, modernen technischen Standards und einem pflegeleichten Außenbereich eignet sich das Haus z.B. gut für junge Familien oder alle mit mehr Platzbedarf die Wert auf Komfort, Effizienz und ein angenehmes Wohnumfeld legen.
               
        Lage
                Das Objekt befindet sich in 27751 Delmenhorst, in einer verkehrsberuhigten Zone, die besonders familienfreundlich und ruhig ist (Sackgassenlage).
Verkehrsanbindung:
    • Gute Anbindung an das Stadtgebiet: Öffentliche Buslinien erschließen die Umgebung, so dass man Wege in die Innenstadt von Delmenhorst bequem ohne Auto zurücklegen kann.
    • Der Bahnhof Delmenhorst bietet regelmäßige Zugverbindungen nach Bremen und Oldenburg. 
    • Mit dem Auto sind die Autobahnen A1 und A28 und die B75 gut erreichbar
Infrastruktur & Nahversorgung:
    • Schulen und Kindergärten sind im Stadtgebiet Delmenhorst gut verteilt; Grundschulen sind wohnortnah vorhanden.
    • Für Einkaufsgelegenheiten, Supermärkte sowie Ärzte gibt es nahegelegene Angebote
Freizeit & Umfeld:
    • Die Umgebung bietet Grünflächen und ruhige Wohnstraßen - ideal für Spaziergänge, Kinder, Fahrradfahrten.
    • Gute Anbindungen auch für Radfahrer: Radwegenetz und Fahrradfreundlichkeit
    • Der nächste Spielplatz ist nur 150 m entfernt.
Diese Lage verbindet also Ruhe und familiengerechte Umgebung mit guter Erreichbarkeit von Arbeitsstätten, Schulen, Einkaufsmöglichkeiten und Freizeitangeboten.
Infrastruktur (im Umkreis von 5 km):
Apotheke, Lebensmittel-Discount, Allgemeinmediziner, Kindergarten, Grundschule, Hauptschule, Realschule, Gymnasium, Gesamtschule, Öffentliche Verkehrsmittel
                
        Sonstige Angaben
                Heizungsart: Zentralheizung
Energieträger: Gas
Wir verkaufen unser Familienheim ohne Makler von privat, da wir durch zusätzlichen Nachwuchs und Home-Office mehr Platz benötigen.
Makleranfragen nicht erwünscht. Nach § 7 UWG sind unaufgeforderte Kontaktaufnahmen durch Makler ohne ausdrückliche Einwilligung des Empfängers verboten!
ohne-makler (OM) ist weder Anbieter noch Vermittler der Immobilie. OM betreibt eine Plattform für Immobilieneigentümer, die unter anderem die gleichzeitige Veröffentlichung einzelner Inserate auf mehreren Immobilienportalen ermöglicht. Die Inhalte dieser Inserate werden ausschließlich von Dritten verantwortet. Für die Richtigkeit, Vollständigkeit oder Rechtmäßigkeit der Angaben übernimmt OM keine Haftung. Hinweise auf mögliche Rechtsverstöße können jederzeit gemeldet werden und werden nach Prüfung umgehend bearbeitet.
           
        Grundriss
                                    Grundriss Erdgeschoss
                                                                            
                                        >
                                                                    
                                                                                                                
                                        >
                                                                    
                                    Grundriss Obergeschoss
                                                                            
                                        >
                                                                    
                                                                        
                                        >
                                                                    Adresse
27751 Delmenhorst
Interessante Orte
Preis- und Lageinformationen
                Preistrend für Bestandsimmobilien in Iprump/Stickgras