Das Zweifamilienhaus hat einen sehr gut durchdachten Grundriss. Es besteht aus zwei separaten Wohneinheiten und eignet sich damit hervorragend für große Familien, Mehr-generationswohnen oder zur Vermietung. Der Garten ist parkähnlich mit Rosen und vielen unterschiedlichen Baumsorten angelegt.
Das Dachgeschoss hat ein sehr großes nach Süden orientiertes Wohnzimmer, welches wegen seiner lichtdurchfluteten Atmosphäre zum Verweilen einlädt. Des Weiteren gibt es eine helle, freundliche Küche, ein modernes Badezimmer und ein ruhiges Schlafzimmer sowie einen kleinen Abstellraum. Durch die Kniestöcke besteht im Dachgeschoss noch weiterer, trockener Stauraum.
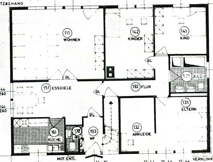
Das Erdgeschoss hat ein nach Westen orientiertes Wohnzimmer mit einem großen Pa-noramafenster und direktem Zugang zum Garten. So können Sie die Nachmittagssonne herrlich genießen. Das Schlafzimmer auf dieser Etage ist ausgesprochen geräumig und besticht durch einen begehbaren Kleiderschrank. Außerdem gibt es eine Küche, zwei Kinderzimmer, ein großes Bad und ein Gäste-WC im Erdgeschoss. In diesem Geschoss müssen die Bodenbeläge teilweise ausgetauscht werden.
Helles, ruhiges und großzügiges Wohnen auf einem parkähnlichen Grundstück in Emmerstedt
38350 Helmstedt
Die vollständige Adresse der Immobilie erhalten Sie vom Anbieter.
Auf Karte anzeigen
Die vollständige Adresse der Immobilie erhalten Sie vom Anbieter.
Finanzierungszertifikat
In nur zwei Minuten zu Ihrem persönlichen Finanzierungszertifkat.
Infos
| Haustyp | Einfamilienhaus |
|---|---|
| Etagenzahl | 2 |
| Wohnfläche ca. | 194 m2 |
| Nutzfläche | 110 m2 |
| Grundstücksfläche | 1.072 m2 |
| Zimmer | 6 |
| Schlafzimmer | 6 |
| Badezimmer | 2 |
| Garage/Stellplatz | Garage |
| Anzahl Garage/Stellplatz | 3 |
Kosten
| Kaufpreis |
275.000 € |
|---|
Finanzierungsrechner:
Kaufpreis:
600.000 €
Eigenkapital:
600.000 €
Monatliche Rate
0 €
Effektiver Jahreszins
0 %
Sollzinsbindung
10 Jahre
Bausubstanz & Energieausweis
| Baujahr | 1980 |
|---|---|
| Letzte Sanierung | 2012 |
| Heizungsart | Zentralheizung |
| Wesentliche Energieträger | Erdgas leicht |
| Energieausweis | liegt vor |
| Energieausweistyp | Verbrauchsausweis |
| Energieverbrauchskennwert | 89,6 kWh/(m²*a) |
| Energieeffizienzklasse | C |
89,6
kWh/(m²*a)
Energieeffizienzklasse C
- A+
- A
- B
- C
- D
- E
- F
- G
- H
- 0
- 25
- 50
- 75
- 100
- 125
- 150
- 175
- 200
- 225
- >250
Beschreibung des Objekts
Ausstattung
Highlights:
- Der hochwertige Kamin der Marke Hark wurde 2023 eingebaut und entspricht neuesten Emissionsvorschriften. Somit ist er auch mit Braunkohle-Briketts beheizbar, was kostengünstiges Heizen ermöglicht.
- Das Grundstück bietet sehr viele Stellplätze für Fahrzeuge. In der Garage können bis zu vier Kleinwagen untergebracht werden. In der langen Auffahrt stehen Parkplätze für Besucher bereit und der Carport in der Nähe des Eingangs ist praktisch.
- Die große Terrasse ist windgeschützt, ruhig und kann nicht von Nachbarn eingesehen werden.
- Leckere Süßkirschen können Ende Juni geerntet werden.
- Ein voll ausgebauter, schallisolierter Hobbyraum sowie ein Vorratsraum befinden sich im Keller.
- Der Keller ist massiv mit Kalksandstein gebaut und zeichnet sich durch seine Trockenheit aus. Dadurch könnten hier weitere Hobbyräume geschaffen werden.
- Lichtdurchflutete Gaube
- Isolierung des Dachgeschosses mit Fermacell-Platten für ein raumgesundes Wohnklima
Lage
Helmstedt, Ortsteil Emmerstedt
Sonstige Angaben
Photovoltaik-Anlage von 2019, die separat verkauft wird.
Grundriss
img518
>
>
img519
>
>
img520
>
>
Adresse
38350 Helmstedt
Interessante Orte
Preis- und Lageinformationen
Preistrend für Bestandsimmobilien in Helmstedt