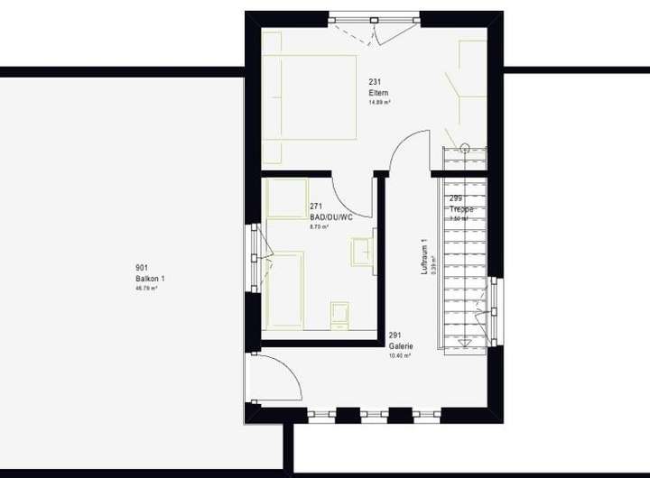
Dieses moderne Haus bietet Platz und Wohlbehagen. Genießen Sie Ihre Abende auf der großen Dachterrasse mit 46 m². Diese Immobilie mit ca. 194 m² Netto-Grundfläche (nach DIN277) bildet mit dem Modernen Grundriss und der Haustechnik die perfekte Einheit für die junge Familie. Ergänzt wird das smarte Haus mit dem Hausautomationssystem myGEKKO 4.0. Eine Besonderheit bieten wir auch bei diesem Flachdach. Eine Sensorfolie ermöglicht eine permanente Dichtheitsüberwachung. Mit dem Elternbad und eine mögliche Ankleide beim Schlafzimmer haben Sie Ihren eigenen Bereich. Gerne passen wir den Grundriss, aber auch die Hausgröße Ihren Bedürfnissen an, um Ihrem Haus noch mehr Flair zu geben. Sprechen Sie mich hierzu an! Noch mehr Platz bekommen Sie, wenn wir Ihnen auch einen Keller anbieten. Ihre Grundfläche vergrößern Sie dann entsprechend. Bei unserer Raumhöhe von 2,75 m empfinden Sie das Wohnen ganz anders. Diese Raumhöhe ermöglicht nicht nur eine wunderbare Behaglichkeit, sondern macht es auch möglich, dass unsere Terrassentüren und Fenster höher ausgeführt werden können. Der zusätzliche Lichteinfall begeistert all unsere Kunden! Das Effizienzhaus 55 ist bei uns Standard. Das Effizienzhaus 40 und 40 Plus sind natürlich auch möglich!
Modernes Wohnen Hauspreis ohne Grundstück!
65527 Niedernhausen
Die vollständige Adresse der Immobilie erhalten Sie vom Anbieter.
Auf Karte anzeigen
Die vollständige Adresse der Immobilie erhalten Sie vom Anbieter.

Finanzierungszertifikat
In nur zwei Minuten zu Ihrem persönlichen Finanzierungszertifkat.
Infos
Haustyp | Einfamilienhaus |
---|---|
Etagenzahl | 2 |
Wohnfläche ca. | 194 m2 |
Grundstücksfläche | 480 m2 |
Zimmer | 4 |
Kosten
Kaufpreis |
715.000 € |
---|
Finanzierungsrechner:
Kaufpreis:
600.000 €
Eigenkapital:
600.000 €
Monatliche Rate
0 €
Effektiver Jahreszins
0 %
Sollzinsbindung
10 Jahre
Bausubstanz & Energieausweis
Baujahr | unbekannt |
---|
Beschreibung des Objekts
Ausstattung
Ausstattung und im Preis enthalten: - Grundstück - Projektiertes Ausbauhaus mit Klima-Plus-Wand - massa Freiraum = Wohnraumhöhe 2,75 m im EG und DG serienmäßig - KfW Effizienzhaus 55 mit hochwertigen 3-fach-verglasten Wärmeschutzfenster - inklusive Architekten- und Ingenieurleistungen (Genehmigungsplanung, Bauantrag, Statik, Wärmebedarfsberechnungen usw.) - massa Bodenplatte Ein Keller ist gegen Aufpreis möglich! - Bodengutachten für die Untersuchung des Baugrundes - Luft-Wasser-Wärmepumpe (deutscher Markenhersteller) - Fußbodenheizung - Kontrollierte Be- und Entlüftungsanlage für perfektes Wohlfühlklima inkl. Wärmerückgewinnung - umfangreiche Elektroausstattung inkl. Installation - Moderne Holztreppe in verschiedenen Farben inkl. Edelstahl-Geländerstäbe - Alu-Rollläden für alle Fenster und moderne Haustüre zur Auswahl - 5-fach-Versicherungsschutz (Bauleistung-, Bauherren-Haftpflicht-, Feuerrohbau- und Wohngebäudeversicherung, Einkommensschutzversicherung) - 15 Monate Festpreisgarantie - Bezahlung des Hauses erst nach Baufortschritt (Abnahme der Leistungen) Der genannte Preis versteht sich zuzüglich Bemusterungspaket (komplette Innenausstattung wie z.B. Fliesen, Türen, Sanitärobjekte, Bodenbeläge, usw.), Lohnkosten für den Innenausbau, Baunebenkosten (Erdarbeiten, Hausanschluss, Baustelleneinrichtung usw.), Grunderwerbsteuer und Notarkosten.
Lage
Niedernhausen ist eine kleine bis mittelgroße Gemeinde im Hochtaunuskreis, Hessen, Deutschland. Sie liegt nordwestlich von Frankfurt am Main, eingebettet in eine grüne Mittelgebirgslandschaft des Taunus und bietet eine ruhige, familienfreundliche Wohnlage mit guter Anbindung an größere Städte. Lage und Verkehr: Niedernhausen liegt verkehrsgünstig an der Autobahn A3 und der Bahnstrecke, was schnelle Verbindungen nach Frankfurt, Wiesbaden und Limburg ermöglicht. Der Ort ist über die Autobahnausfahrten gut erreichbar und verfügt über Busverbindungen in die umliegenden Gemeinden. Historischer Charme: Der Ort hat einen typischen Taunuscharakter mit gepflegten Wohngebieten, kleinem Ortskern und historischen Gebäuden. In der Umgebung finden sich Wälder, Felder und sanfte Hügel, ideal für Spaziergänge und Outdoor-Aktivitäten. Natur und Freizeit: Nähere Umgebung ist geprägt von Wald- und Grünflächen, die zu Wanderungen, Radfahren und Nordic Walking einladen. In der Region gibt es zudem einige Aussichtspunkte und kleine Naherholungsgebiete. Infrastruktur: Niedernhausen bietet Grundversorgung mit Supermärkten, Apotheke, Arztpraxen, Schulen und Kindertagesstätten. Für größere Einkäufe oder kulturelle Angebote fahren Einwohner oft in umliegende Städte.
Grundriss
224545-10611-1-g
>

224544-10611-2-g
>

Adresse
65527 Niedernhausen
Interessante Orte
Preis- und Lageinformationen
Preistrend für Bestandsimmobilien in Niedernhausen