Entdecken Sie die Möglichkeit, Ihre Traum-Doppelhaushälfte in Harxheim zu verwirklichen! Diese projektierten 4.0 Zimmer bieten Ihnen mit einer großzügigen Wohnfläche von 199,95 m² genügend Raum für Ihre individuellen Vorstellungen und Wünsche. Auf einem 400 m² großen Grundstück erstreckt sich das Haus über drei Etagen, in denen vier Schlafzimmer und ein modernes Badezimmer untergebracht sind. Hier genießen Sie ein hohes Maß an Komfort und Lebensqualität.
Die großzügigen Räumlichkeiten bieten Platz für die ganze Familie und sind flexibel gestaltbar. Mit der gehobenen Ausstattung, die hochwertige Bodenbeläge wie Fliesen, Laminat, nach Wunsch PVC und Teppichboden umfasst, können Sie Ihren persönlichen Stil einbringen. Die unterschiedlichen Bodenbeläge ermöglichen es Ihnen, die geeignete Atmosphäre für jeden Raum zu schaffen. Während Fliesen und Laminat pflegeleicht und modern sind, bieten Teppichböden ein gemütliches Raumgefühl.
Die innovative Wärmepumpe sorgt für eine umweltfreundliche und effiziente Beheizung Ihrer neuen Doppelhaushälfte. Diese Befeuerungsart ermöglicht es Ihnen, nachhaltig zu wohnen und gleichzeitig Ihre Energiekosten zu senken. Zudem entspricht das Gebäude dem KFW55 Standard, was Ihnen auch in Zukunft Energieeinsparungen garantiert.
Ihr individuelles Zuhause in Harxheim - Doppelhaushälfte nach Ihren Wünschen!
55296 Harxheim
Die vollständige Adresse der Immobilie erhalten Sie vom Anbieter.
Auf Karte anzeigen
Die vollständige Adresse der Immobilie erhalten Sie vom Anbieter.
Finanzierungszertifikat
In nur zwei Minuten zu Ihrem persönlichen Finanzierungszertifkat.
Infos
| Haustyp | Doppelhaushaelfte |
|---|---|
| Etagenzahl | 3 |
| Wohnfläche ca. | 199 m2 |
| Grundstücksfläche | 400 m2 |
| Zimmer | 4 |
| Schlafzimmer | 4 |
| Badezimmer | 1 |
| Garage/Stellplatz | Garage |
| Anzahl Garage/Stellplatz | 1 |
Kosten
| Kaufpreis |
640.290 € |
|---|---|
| Preis für Garage/Stellplatz | 8.000 € |
Finanzierungsrechner:
Kaufpreis:
600.000 €
Eigenkapital:
600.000 €
Monatliche Rate
0 €
Effektiver Jahreszins
0 %
Sollzinsbindung
10 Jahre
Bausubstanz & Energieausweis
| Baujahr | 2025 |
|---|---|
| Bauphase | Haus in Planung (projektiert) |
| Qualität der Austattung | Gehoben |
| Heizungsart | Wärmepumpe |
Beschreibung des Objekts
Ausstattung
Bereits im Grundpreis ist eine hochwertige und zukunftsorientierte Ausstattung enthalten, die Wohngesundheit, Komfort und Energieeffizienz miteinander verbindet:
Energieeffizienz nach KfW-55-Standard - auf Wunsch auch als KfW-40+ realisierbar
Nachhaltige Luft-Wasser-Wärmepumpe mit komfortabler Fußbodenheizung
Kontrollierte Wohnraumlüftung mit Wärmerückgewinnung - für frische Luft und geringere Energiekosten
Photovoltaik-Vorbereitung nach aktueller Bauleistungsbeschreibung - bereit für die eigene Stromproduktion
3-fach verglaste Markenfenster mit langlebigen Aluminium-Rollläden
Großzügige Raumhöhe von 2,75 m mit extrahohen Fenstern und Türen für ein lichtdurchflutetes Wohnambiente
Hochwertige Echtholztreppe - stilvoll und langlebig
Bodenplatte inklusive - sicheres Fundament für Ihr Zuhause
15 Monate Festpreisgarantie - für maximale Planungssicherheit
Made in Germany - geprüfte Markenqualität
TOXPROOF-Zertifizierung des TÜV Rheinland - für wohngesundes Bauen ohne Schadstoffe
Darüber hinaus profitieren Sie von der allkauf-Bauabsicherung: umfassende Versicherungsleistungen, eine verlässliche
Festpreisgarantie und das Just-in-Time-Lieferkonzept, das Ihre Bauzeit planbar macht.
Ausbaustufe Active Time
In der Ausbaustufe Active Time genießen Sie das perfekte Zusammenspiel aus Eigenleistung und fachgerechter Ausführung.
Zwei umfangreiche Materialpakete (Technik, Trockenbau, Böden, Türen, Fliesen u. v. m.) sind bereits enthalten - kombiniert mit der
professionellen Ausführung von Elektro, Heizung/Sanitär und Estrich durch allkauf.
So entsteht ein Zuhause, das nicht nur technisch überzeugt, sondern auch in Qualität, Sicherheit und Wohnkomfort Maßstäbe setzt.
Auf Wunsch ist selbstverständlich auch eine schlüsselfertige Übergabe möglich - individuell auf Ihre Bedürfnisse zugeschnitten.
Lage
Dieses Haus wird für ein vorhandenes oder geplantes Grundstück vorgesehen.
-Der Grundstückskauf erfolgt direkt über den Eigentümer
-Exakte Grundstücksdaten erhalten Sie im persönlichen Beratungsgespräch
-Gerne bauen wir auch auf einem Grundstück Ihrer Wahl
Auf Wunsch unterstützen wir Sie aktiv bei der Grundstückssuche.
So bleiben Sie flexibel: Ob Sie bereits ein Baugrundstück besitzen, sich für eines unserer vermittelten Angebote interessieren oder noch auf der Suche sind - wir begleiten Sie Schritt für Schritt zu Ihrem Traumhaus.
Gerne berate ich Sie unverbindlich in einem unserer Musterhäuser zu Ihrem geplanten Bauvorhaben, um den Traum vom Eigenheim zu verwirklichen.
Nico Reichart
Mobil: 015735614955
nico.reichart@allkauf.de
Sonstige Angaben
Mit allkauf profitieren Sie von individueller Planung mit maximaler Gestaltungsfreiheit, energieeffizientem Bauen nach neuesten Standards sowie innovativer Haustechnik und hochwertiger Ausstattung bereits im Grundpreis. Kurze Bau- und Montagezeiten, über 40 Jahre Erfahrung im Hausbau und geprüfte Markenqualität "Made in Germany" geben Ihnen die nötige Sicherheit. Dazu kommen eine verlässliche Festpreisgarantie, persönliche Beratung auch in Finanzierungsfragen sowie aktive Unterstützung bei der Beantragung von Fördermitteln - für ein rundum sorgenfreies Bauerlebnis
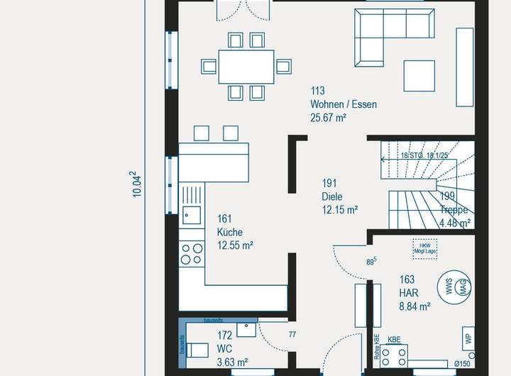
Grundriss
Grundriss
>
>
Grundriss
>
>
Grundriss
>
>
Adresse
55296 Harxheim
Interessante Orte
Preis- und Lageinformationen
Preistrend für Bestandsimmobilien in Harxheim