Willkommen in Ihrer neuen Doppelhaushälfte in Schwabenheim an der Selz, die nach Ihren persönlichen Wünschen und Vorstellungen projektiert wird. Dieses durchdachte Zuhause bietet Ihnen auf 124 m² Wohnfläche in zwei Etagen ausreichend Platz für die ganze Familie. Mit 4 Zimmern, darunter 3 Schlafzimmer und einem Badezimmer, ist es ideal für modernes Wohnen. Der großzügige Garten mit 422 m² Grundstücksfläche lädt zum Entspannen ein und bietet Ihnen die Möglichkeit, Ihre grüne Oase zu gestalten.
Das innovative Baukonzept orientiert sich an den neuesten Standards und verbindet Komfort mit Energieeffizienz. Es erfüllt den KFW55 Standard und kommt mit einer modernen Wärmepumpe daher, die für eine effiziente und umweltfreundliche Heizart sorgt.
Die Gestaltung und Ausstattung Ihrer Doppelhaushälfte können Sie individuell gestalten, um sicherzustellen, dass Ihr Zuhause ganz Ihre Handschrift trägt.
Ihr individuelles Zuhause in Schwabenheim an der Selz - Doppelhaushälfte nach Ihren Wünschen!
55270 Schwabenheim an der Selz
Die vollständige Adresse der Immobilie erhalten Sie vom Anbieter.
Auf Karte anzeigen
Die vollständige Adresse der Immobilie erhalten Sie vom Anbieter.
Finanzierungszertifikat
In nur zwei Minuten zu Ihrem persönlichen Finanzierungszertifkat.
Infos
| Haustyp | Doppelhaushaelfte |
|---|---|
| Etagenzahl | 2 |
| Wohnfläche ca. | 124 m2 |
| Grundstücksfläche | 422 m2 |
| Zimmer | 4 |
| Schlafzimmer | 3 |
| Badezimmer | 1 |
| Garage/Stellplatz | Garage |
| Anzahl Garage/Stellplatz | 1 |
Kosten
| Kaufpreis |
431.447 € |
|---|---|
| Preis für Garage/Stellplatz | 8.000 € |
Finanzierungsrechner:
Kaufpreis:
600.000 €
Eigenkapital:
600.000 €
Monatliche Rate
0 €
Effektiver Jahreszins
0 %
Sollzinsbindung
10 Jahre
Bausubstanz & Energieausweis
| Baujahr | 2025 |
|---|---|
| Bauphase | Haus in Planung (projektiert) |
| Qualität der Austattung | Gehoben |
| Heizungsart | Wärmepumpe |
Beschreibung des Objekts
Ausstattung
Bereits im Grundpreis ist eine hochwertige und zukunftsorientierte Ausstattung enthalten, die Wohngesundheit, Komfort und Energieeffizienz miteinander verbindet:
Energieeffizienz nach KfW-55-Standard - auf Wunsch auch als KfW-40+ realisierbar
Nachhaltige Luft-Wasser-Wärmepumpe mit komfortabler Fußbodenheizung
Kontrollierte Wohnraumlüftung mit Wärmerückgewinnung - für frische Luft und geringere Energiekosten
Photovoltaik-Vorbereitung nach aktueller Bauleistungsbeschreibung - bereit für die eigene Stromproduktion
3-fach verglaste Markenfenster mit langlebigen Aluminium-Rollläden
Großzügige Raumhöhe von 2,75 m mit extrahohen Fenstern und Türen für ein lichtdurchflutetes Wohnambiente
Hochwertige Echtholztreppe - stilvoll und langlebig
Bodenplatte inklusive - sicheres Fundament für Ihr Zuhause
15 Monate Festpreisgarantie - für maximale Planungssicherheit
Made in Germany - geprüfte Markenqualität
TOXPROOF-Zertifizierung des TÜV Rheinland - für wohngesundes Bauen ohne Schadstoffe
Darüber hinaus profitieren Sie von der allkauf-Bauabsicherung: umfassende Versicherungsleistungen, eine verlässliche
Festpreisgarantie und das Just-in-Time-Lieferkonzept, das Ihre Bauzeit planbar macht.
Ausbaustufe Active Time
In der Ausbaustufe Active Time genießen Sie das perfekte Zusammenspiel aus Eigenleistung und fachgerechter Ausführung.
Zwei umfangreiche Materialpakete (Technik, Trockenbau, Böden, Türen, Fliesen u. v. m.) sind bereits enthalten - kombiniert mit der
professionellen Ausführung von Elektro, Heizung/Sanitär und Estrich durch allkauf.
So entsteht ein Zuhause, das nicht nur technisch überzeugt, sondern auch in Qualität, Sicherheit und Wohnkomfort Maßstäbe setzt.
Auf Wunsch ist selbstverständlich auch eine schlüsselfertige Übergabe möglich - individuell auf Ihre Bedürfnisse zugeschnitten.
Lage
Dieses Haus wird für ein vorhandenes oder geplantes Grundstück vorgesehen.
-Der Grundstückskauf erfolgt direkt über den Eigentümer
-Exakte Grundstücksdaten erhalten Sie im persönlichen Beratungsgespräch
-Gerne bauen wir auch auf einem Grundstück Ihrer Wahl
Auf Wunsch unterstützen wir Sie aktiv bei der Grundstückssuche.
So bleiben Sie flexibel: Ob Sie bereits ein Baugrundstück besitzen, sich für eines unserer vermittelten Angebote interessieren oder noch auf der Suche sind - wir begleiten Sie Schritt für Schritt zu Ihrem Traumhaus.
Gerne berate ich Sie unverbindlich in einem unserer Musterhäuser zu Ihrem geplanten Bauvorhaben, um den Traum vom Eigenheim zu verwirklichen.
Nico Reichart
Mobil: 015735614955
nico.reichart@allkauf.de
Sonstige Angaben
Mit allkauf profitieren Sie von individueller Planung mit maximaler Gestaltungsfreiheit, energieeffizientem Bauen nach neuesten Standards sowie innovativer Haustechnik und hochwertiger Ausstattung bereits im Grundpreis. Kurze Bau- und Montagezeiten, über 40 Jahre Erfahrung im Hausbau und geprüfte Markenqualität "Made in Germany" geben Ihnen die nötige Sicherheit. Dazu kommen eine verlässliche Festpreisgarantie, persönliche Beratung auch in Finanzierungsfragen sowie aktive Unterstützung bei der Beantragung von Fördermitteln - für ein rundum sorgenfreies Bauerlebnis
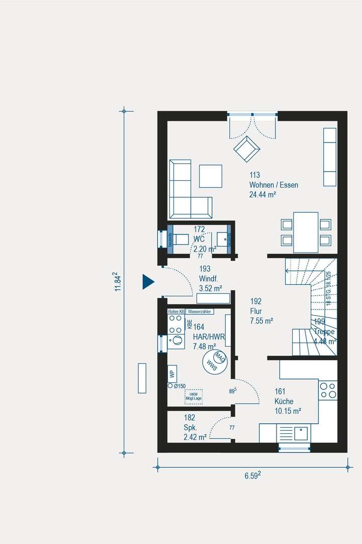
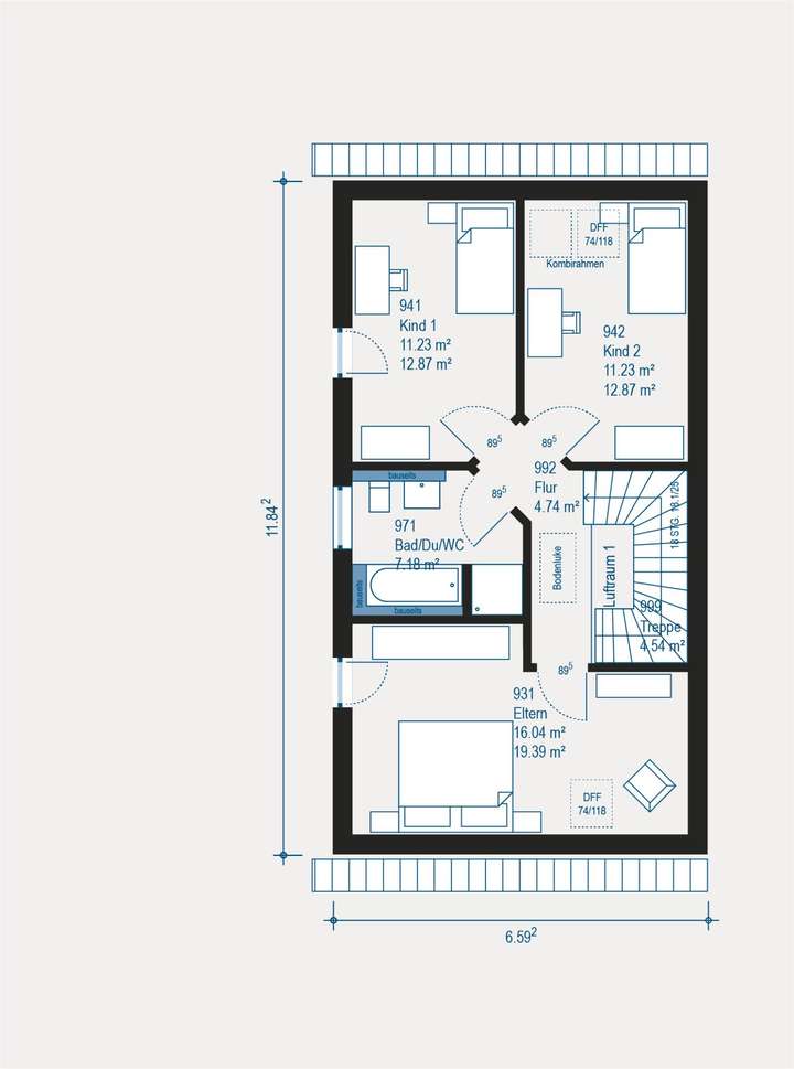
Grundriss
Grundriss
>
>
Grundriss
>
>
Grundriss
>
>
Adresse
55270 Schwabenheim an der Selz
Interessante Orte
Preis- und Lageinformationen
Preistrend für Bestandsimmobilien in Schwabenheim an der Selz