Dieses kernsanierte Mehrfamilienhaus vereint zeitgemäße Wohnqualität mit attraktiven Nutzungsmöglichkeiten. Das Gebäude wurde in den 1960er Jahren errichtet und im Jahr 2025 umfassend modernisiert. Im Zuge der Kernsanierung wurden eine moderne Wärmepumpe mit Gasunterstützung, neue Kunststofffenster mit elektrischen Rollläden, Fußbodenheizung, moderne Bäder, weiße Innentüren, neue Elektroleitungen sowie hochwertige Boden- und Wandbeläge eingebaut. Damit präsentiert sich die Immobilie heute in einem sehr guten und gepflegten Zustand.
Die Gesamtwohnfläche von rund 222 m² verteilt sich auf drei moderne Wohneinheiten:
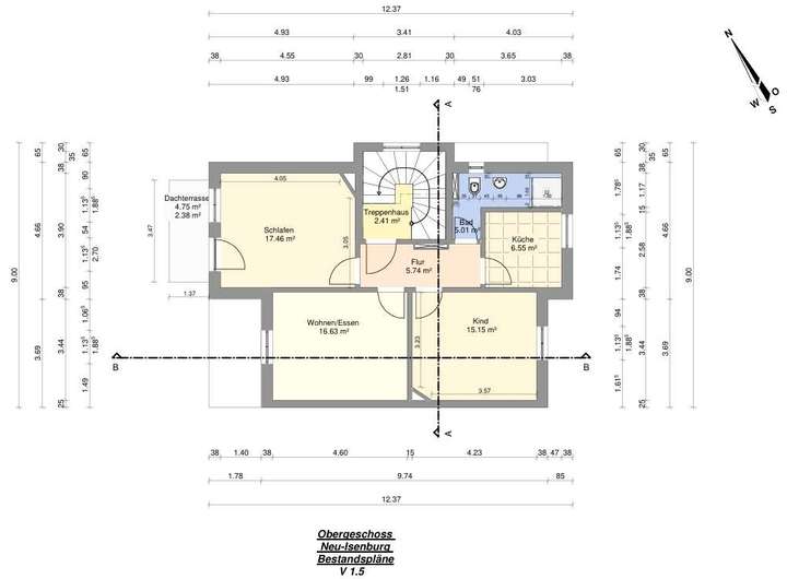
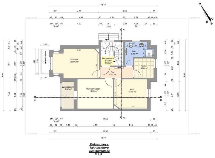
Die Erdgeschosswohnung bietet ca. 82 m² mit drei Zimmern, darunter ein großzügiges Schlafzimmer, ein Kinderzimmer, ein heller Wohn-/Essbereich mit angrenzendem Wintergarten, eine Küche sowie ein modernes Tageslichtbad. Das Obergeschoss umfasst ca. 75 m² und überzeugt mit einem Schlafzimmer mit Zugang zur kleinen Dachterrasse, einem Kinderzimmer, einem Wohn-/Essbereich, Küche und Bad. Die Dachgeschosswohnung verfügt über ca. 65 m² Wohnfläche mit drei Zimmern, Küche und modernem Bad. Während Erd- und Obergeschoss bereits langfristig über Staffelmietverträge vermietet sind, bietet die freie Dachgeschosswohnung Potenzial zur Eigennutzung oder zur zusätzlichen Vermietung.
Die Ausstattung der Wohnungen ist hochwertig und durchdacht: Die Wände sind mit Malerflies versehen, die Wohnbereiche mit pflegeleichtem Vinylboden ausgestattet, während in Bädern und Fluren stilvolle, anthrazitfarbene Fliesen verlegt wurden. Für eine zuverlässige digitale Anbindung sorgt Highspeed-Internet über Glasfaser im gesamten Haus.
Zu jeder Wohneinheit gehören zwei großzügige, neu gepflasterte Außenstellplätze, für je 15.000 € die, bei Bedarf mit Carports überdacht werden können. Damit stehen insgesamt sechs Stellplätze zur Verfügung. Ergänzt wird das Angebot durch den großzügigen Gemeinschaftsgarten mit direkten Zugang zum angrenzenden Stadtwald – ein besonderes Highlight für Familien, Naturfreunde und Hundebesitzer.
Auf einem Grundstück von 551 m² bietet diese Immobilie somit nicht nur sofortige Mieteinnahmen, sondern auch vielseitige Perspektiven für Eigennutzer oder Investoren
Wirtschaftliche Kennzahlen
as Mehrfamilienhaus generiert derzeit jährliche IST-Mieteinnahmen von 34.320 € aus den bereits vermieteten Wohneinheiten. Bei vollständiger Vermietung aller drei Wohnungen liegt der SOLL-Mietertrag bei 51.480 € jährlich.
Der Kaufpreis für das Mehrfamilienhaus beträgt 1.080.000 € ohne Stellplätze., plus die sechs Außenstellplätze zu je 15.000 €, sodass sich der Gesamtkaufpreis inklusive Stellplätzen auf 1.170.000 € beläuft.
Auf Basis der Soll-Mieteinnahmen entspricht dies einem 22,73-Fachen der Jahresmiete (inklusive Stellplätze). Durch die zusätzliche Vermietung der Stellplätze ergibt sich weiteres Ertragspotenzial, welches die Rendite nachhaltig steigert. Die umfassende Kernsanierung im Jahr 2025 gewährleistet zudem eine langfristige Wertstabilität und reduziert den Instandhaltungsaufwand für die kommenden Jahre erheblich.
Kernsaniertes Mehrfamilienhaus mit 3 Wohneinheiten, sofortige Mieteinnahmen & Eigennutzung möglich
63263 Neu-Isenburg
Die vollständige Adresse der Immobilie erhalten Sie vom Anbieter.
Auf Karte anzeigen
Die vollständige Adresse der Immobilie erhalten Sie vom Anbieter.
Finanzierungszertifikat
In nur zwei Minuten zu Ihrem persönlichen Finanzierungszertifkat.
Infos
| Haustyp | Mehrfamilienhaus |
|---|---|
| Etagenzahl | 3 |
| Wohnfläche ca. | 222 m2 |
| Grundstücksfläche | 551 m2 |
| Zimmer | 10 |
| Schlafzimmer | 7 |
| Badezimmer | 3 |
| Anzahl Garage/Stellplatz | 6 |
Kosten
| Kaufpreis |
1.080.000 € |
|---|---|
| Preis für Garage/Stellplatz | 15.000 € |
| Provision |
3,57 Käuferprovision beträgt 3,57% (inkl. MwSt.) des beurkundeten Kaufpreises. |
Finanzierungsrechner:
Kaufpreis:
600.000 €
Eigenkapital:
600.000 €
Monatliche Rate
0 €
Effektiver Jahreszins
0 %
Sollzinsbindung
10 Jahre
Bausubstanz & Energieausweis
| Baujahr | 1960 |
|---|---|
| Letzte Sanierung | 2025 |
| Bauphase | Haus fertig gestellt |
| Objektzustand | Saniert |
| Qualität der Austattung | Gehoben |
| Heizungsart | Wärmepumpe |
| Wesentliche Energieträger | Gas |
| Energieausweis | liegt vor |
| Energieausweistyp | Bedarfsausweis |
| Energieverbrauchskennwert | 30,3 kWh/(m²*a) |
| Energieeffizienzklasse | A |
30,3
kWh/(m²*a)
Energieeffizienzklasse A
- A+
- A
- B
- C
- D
- E
- F
- G
- H
- 0
- 25
- 50
- 75
- 100
- 125
- 150
- 175
- 200
- 225
- >250
Beschreibung des Objekts
Ausstattung
Allgemeine Sanierung (2024)
Komplette Kernsanierung des Hauses
Neue Elektroleitungen
Neue weiße Innentüren
Neue Boden- und Wandbeläge in allen Wohnungen
Neue, moderne Badezimmer
Heizung & Energie
Wärmepumpe mit Gasunterstützung
Fußbodenheizung in allen Wohnungen
Kunststofffenster mit 3-fach-Verglasung und elektrischen Rollläden
Technik & Komfort
Highspeed-Internet über Glasfaser im gesamten Haus
Staffelmietverträge für EG- und OG-Wohnung
Dachgeschosswohnung aktuell noch frei (zur Eigennutzung oder Vermietung)
Innenausstattung
Wände: hochwertiger Malerflies
Böden: Vinylboden in Wohnräumen
Flure und Bäder: anthrazitfarbene Bodenfliesen
Lage
Das Objekt befindet sich in sehr zentraler Lage, direkt angrenzend an den Neu-Isenburger Stadtwald. Neu-Isenburg bietet zahlreiche erstklassige Restaurants, vielfältige Einkaufsmöglichkeiten und exzellente öffentliche Verkehrsanbindungen. Die hervorragende Infrastruktur sorgt für schnelle Verbindungen zum Flughafen sowie zu mehreren Autobahnen. Die Lage verbindet die Vorzüge von Nahversorgung, Freizeitmöglichkeiten und ausgezeichneter Verkehrsanbindung perfekt. Darüber hinaus bietet Neu-Isenburg bequeme ÖPNV-Verbindungen mit Buslinien, S-Bahnen und Straßenbahnen in die Frankfurter Innenstadt und ist somit ein beliebter Wohnstandort.
Der Ort verfügt über ein gut strukturiertes Bildungsangebot mit drei Grundschulen und zwei weiterführenden Schulen. Zur persönlichen Weiterbildung bieten die lokale Musikschule und die Volkshochschule ausreichend Möglichkeiten. Neu-Isenburg ist eine junge, aktive Stadt. Das spiegelt sich auch in den zahlreichen Sporteinrichtungen wider, die in allen Stadtteilen geschaffen wurden: vom Sportpark über das Waldschwimmbad bis zum Radfernweg R4.
Adresse
63263 Neu-Isenburg
Interessante Orte
Preis- und Lageinformationen
Preistrend für Bestandsimmobilien in Neu-Isenburg