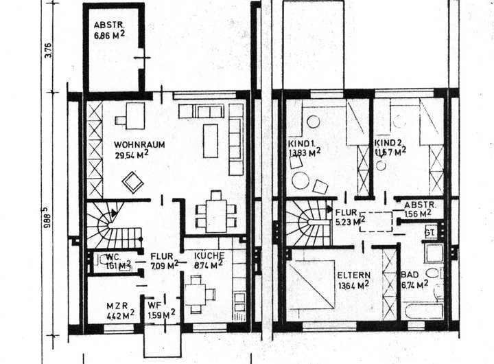
Willkommen in Ihrem neuen Zuhause! Dieses gepflegte Reihenhaus bietet die perfekte Kombination aus ruhiger Wohnlage in familienfreundlicher Umgebung. Auf ca. 143 m² Wohnfläche verteilen sich großzügige und helle Räume, ideal für Familien mit Kindern. Zusätzlich bieten 34 m² Nutzfläche reichlich Stauraum. Das Haus ist sehr gepflegt, die letzte Renovierung und Erneuerung der Heizung erfolgte in 2016. Highlights: • Ruhige Lage – ideal für Familien mit Kindern • 4 Zimmer + ausgebautes Dachstudio • Energieeffizienzklasse B • Effiziente Gasheizung aus 2016 • Süd-Terrasse mit gepflegtem Garten • Einbauküche vorhanden • Tageslichtbad mit Wanne und Dusche • Gäste-WC • Abstellkammer & Hauswirtschaftsraum • Großzügige Terrasse mit Markise • Gepflegter Garten mit Grundwasser Brunnen zur Bewässerung • Eigene Garage und weitere Parkmöglichkeiten an der Straße vorhanden Das Haus ist ab sofort bezugsfrei und ideal für Familien, die ein ruhiges und sicheres Zuhause suchen. Die Immobilie wurde bereits leer geräumt und der Großteil des auf den Bildern dargestellte Inventars entfernt (Küche und Bar sind noch vorhanden). Für weitere Informationen oder Vereinbarung eines Besichtigungstermin, freuen wir uns über Ihre Anfrage. Bitte keine Anfragen von Maklern.
Familienfreundliches Reihenhaus in ruhiger Lage – Ihr neues Zuhause wartet!
28279 Bremen
Die vollständige Adresse der Immobilie erhalten Sie vom Anbieter.
Auf Karte anzeigen
Die vollständige Adresse der Immobilie erhalten Sie vom Anbieter.

Finanzierungszertifikat
In nur zwei Minuten zu Ihrem persönlichen Finanzierungszertifkat.
Infos
Haustyp | Reiheneckhaus |
---|---|
Etagenzahl | 3 |
Wohnfläche ca. | 143 m2 |
Nutzfläche | 34 m2 |
Grundstücksfläche | 239 m2 |
Bezugsfrei ab | 6.10.2025 |
Zimmer | 5 |
Schlafzimmer | 4 |
Badezimmer | 2 |
Garage/Stellplatz | Garage |
Anzahl Garage/Stellplatz | 1 |
Kosten
Kaufpreis |
335.000 € |
---|---|
Provision | Nein |
Finanzierungsrechner:
Kaufpreis:
600.000 €
Eigenkapital:
600.000 €
Monatliche Rate
0 €
Effektiver Jahreszins
0 %
Sollzinsbindung
10 Jahre
Bausubstanz & Energieausweis
Baujahr | 1981 |
---|---|
Letzte Sanierung | 2016 |
Bauphase | Haus fertig gestellt |
Qualität der Austattung | Normal |
Energieausweis | liegt vor |
Energieausweistyp | Verbrauchsausweis |
Energieverbrauchskennwert | 65,4 kWh/(m²*a) |
Beschreibung des Objekts
Lage
Das Haus befindet sich in einem ruhigen Wohngebiet ohne Durchgangsverkehr. Schulen, Kindergärten, Spielplätze und Einkaufsmöglichkeiten sind fußläufig erreichbar. Öffentliche Verkehrsmittel (Bus & Straßenbahn) sowie Autobahnanschluss sind ebenfalls schnell erreichbar – perfekt für Pendler!
Adresse
28279 Bremen
Interessante Orte
Preis- und Lageinformationen
Preistrend für Bestandsimmobilien in Arsten