Zum Verkauf steht ein gepflegtes Einfamilienhaus mit Einliegerwohnung aus dem Jahr 1968, gelegen in ruhiger und naturnaher Umgebung von Bad Ems. Das großzügige Grundstück umfasst ca. 811 m² und beherbergt eine Gesamtwohnfläche von rund 173 m² – verteilt auf das Haupthaus und die separate Einliegerwohnung.
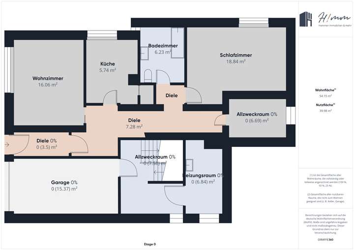
Das Haupthaus erstreckt sich über eine Ebene mit ca. 119,67 m² Wohnfläche. Das lichtdurchflutete Wohn- und Esszimmer öffnet sich zum Balkon mit herrlichem Blick über die Kurstadt Bad Ems. Die angrenzende Küche bietet viel Platz für kulinarische Entfaltung. Ein weiteres Zimmer kann flexibel als Büro oder Gästezimmer genutzt werden. Das Hauptschlafzimmer sowie zwei Kinderzimmer – derzeit zu einer Einheit verbunden – bieten Raum für individuelle Gestaltung. Ein Badezimmer mit separater Toilette, beidseitig begehbar, rundet das Raumangebot ab.
Das Dachgeschoss bietet zusätzliche ca. 100 m² Nutzfläche, die sich hervorragend zum Verstauen von Gegenständen oder als flexible Ausbaureserve eignen. Durch die großzügige Fläche lassen sich Abstellräume, Hobbybereiche oder weitere Wohnflächen realisieren.
Die Einliegerwohnung im Untergeschoss bietet ca. 52,8 m² Wohnfläche und besteht aus zwei Zimmern: einem gemütlichen Wohnbereich, einem Schlafzimmer, einer Küche sowie einem Badezimmer. Eine eigene Terrasse lädt zum Verweilen ein. Dank des separaten Eingangs eignet sich die Einheit ideal für Gäste, als Homeoffice oder zur Vermietung. Zusätzlich befinden sich auf dieser Ebene praktische Kellerräume, ein Hauswirtschaftsraum sowie eine Garage.
Dieses liebevoll gepflegte Haus überzeugt durch seine durchdachte Raumaufteilung und die vielseitige Nutzung der Einliegerwohnung. Es eignet sich hervorragend für Familien, Mehrgenerationenwohnen oder als Kombination aus Wohnen und Arbeiten unter einem Dach.
Entdecken Sie die besonderen Merkmale dieser Immobilie bei einem individuellen Besichtigungstermin! Wir freuen uns auf Ihre Anfrage!
Charmantes Einfamilienhaus mit Einliegerwohnung in bevorzugter Lage von Bad Ems!
56130 Bad Ems
Die vollständige Adresse der Immobilie erhalten Sie vom Anbieter.
Auf Karte anzeigen
Die vollständige Adresse der Immobilie erhalten Sie vom Anbieter.
Finanzierungszertifikat
In nur zwei Minuten zu Ihrem persönlichen Finanzierungszertifkat.
Infos
| Haustyp | Einfamilienhaus |
|---|---|
| Etagenzahl | 2 |
| Wohnfläche ca. | 173 m2 |
| Nutzfläche | 200 m2 |
| Grundstücksfläche | 811 m2 |
| Bezugsfrei ab | ab sofort |
| Zimmer | 7 |
| Schlafzimmer | 5 |
| Badezimmer | 2 |
| Garage/Stellplatz | Garage |
| Anzahl Garage/Stellplatz | 3 |
Kosten
| Kaufpreis |
385.000 € |
|---|---|
| Provision |
3,57% inkl. MwSt. |
Finanzierungsrechner:
Kaufpreis:
600.000 €
Eigenkapital:
600.000 €
Monatliche Rate
0 €
Effektiver Jahreszins
0 %
Sollzinsbindung
10 Jahre
Bausubstanz & Energieausweis
| Baujahr | 1968 |
|---|---|
| Objektzustand | Renovierungsbedürftig |
| Heizungsart | Zentralheizung |
| Wesentliche Energieträger | Öl |
| Energieausweis | liegt vor |
| Energieausweistyp | Verbrauchsausweis |
| Energieverbrauchskennwert | 294,9 kWh/(m²*a) |
| Energieeffizienzklasse | H |
294,9
kWh/(m²*a)
Energieeffizienzklasse H
- A+
- A
- B
- C
- D
- E
- F
- G
- H
- 0
- 25
- 50
- 75
- 100
- 125
- 150
- 175
- 200
- 225
- >250
Beschreibung des Objekts
Ausstattung
++ Einfamilienhaus mit Einliegerwohnung -Ideal für Familien oder Mehrgenerationenwohnen
+ Grundstücksgröße: ca. 811 m²
+ Gesamtwohnfläche: ca. 173 m²
+ Baujahr: 1968
++ Haupthaus: ca. 119,67 m² auf einer Etage
- Großzügiges Wohn- und Esszimmer mit Zugang zum Balkon
- Balkon mit Weitblick über Bad Ems
- Geräumige Küche mit viel Platz
- Büro-/Gästezimmer
- Hauptschlafzimmer
- Zwei Kinderzimmer (aktuell zusammengelegt)
- Badezimmer mit separater Toilette, beidseitig begehbar
+ Großzügige Dachgeschossfläche
++Einliegerwohnung: ca. 52,8 m² mit separatem Eingang
- 2 Zimmer: Wohnbereich & Schlafzimmer
- Küche und Badezimmer
- Eigene Terrasse
- Ideal für Gäste, Büro oder Vermietung
++ Zusätzliche Räume:
+ Hauswirtschaftsraum
+ Kellerräume
+ 3 Garagen
Lage
Bad Ems ist eine charmante Kur- und Kreisstadt, die das einstige Kaiserbad-Flair bewahrt hat und gleichzeitig alles bietet, was man von einer Stadt mit hoher Lebensqualität erwartet. Die Sehenswürdigkeiten erstrecken sich entlang der malerischen Lahn wie Perlen an einer Kette.
Mit knapp 10.000 Einwohnern verfügt die Stadt über eine Vielzahl von Kitas, Grundschulen, eine Realschule plus und ein Gymnasium. Zudem gibt es eine Rehaklinik, Altenheime, Sportanlagen, Freizeitmöglichkeiten, eine attraktive Therme und ein vielfältiges Kulturangebot. Die regionale Wirtschaft ist geprägt von Tourismus, Dienstleistungen und Medizintechnik. Der Hauptbahnhof ist in wenigen Gehminuten erreichbar. Die Großstädte Koblenz und Lahnstein liegen direkt vor der Haustür und sind sowohl mit dem Auto als auch mit öffentlichen Verkehrsmitteln schnell erreichbar. Die nahe Autobahn A3 und der ICE-Bahnhof ermöglichen zudem eine gute Anbindung an Frankfurt und andere Metropolen.
Sonstige Angaben
Sämtliche Bilder in diesem Exposé sind urheberrechtlich geschützt und dürfen nicht durch Dritte verwendet bzw. weitergegeben werden. Dieses Exposé wurde mit Sorgfalt zusammengestellt. Alle darin enthaltenen Angaben über das Objekt beruhen auf Informationen vom Eigentümer. Eine Haftung für deren Richtigkeit und Vollständigkeit können wir nicht übernehmen.
Grundriss
Grundriss EG
>
>
Grundriss UG_Einliegerwohnung
>
>
Grundriss KG
>
>
Adresse
56130 Bad Ems
Interessante Orte
Preis- und Lageinformationen
Preistrend für Bestandsimmobilien in Bad Ems