Diese im Jahr 1997 errichtete Doppelhaushälfte überzeugt durch ein durchdachtes Raumkonzept, hochwertige Ausstattungsmerkmale und ein parkähnlich angelegtes Grundstück mit einer Größe von ca. 1.189 m². Die Wohnfläche von ca. 213 m² verteilt sich auf vier großzügige Zimmer und bietet ein modernes sowie gleichzeitig gemütliches Wohnambiente.
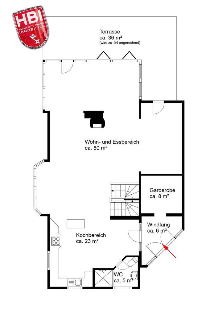
Das Erdgeschoss ist geprägt von einem offenen Grundriss. Vom Windfang mit angrenzender Garderobe öffnet sich der Zugang zum weitläufigen Wohn-, Ess- und Kochbereich. Ein stilvoller Kamin sorgt für eine besondere Atmosphäre. Ein modernes Gäste-WC mit Duschkabine ergänzt das Raumangebot auf dieser Ebene.
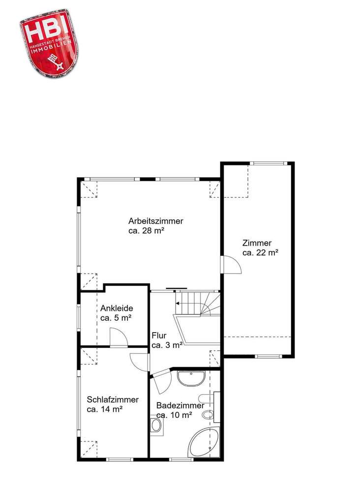
Im Dachgeschoss befindet sich eine helle Galerie. Darüber hinaus stehen ein Schlafzimmer mit direktem Zugang zur Ankleide, ein weiteres Schlafzimmer, ein Tageslichtbad mit Badewanne und Duschkabine sowie ein Arbeitszimmer mit Blick in den Garten zur Verfügung.
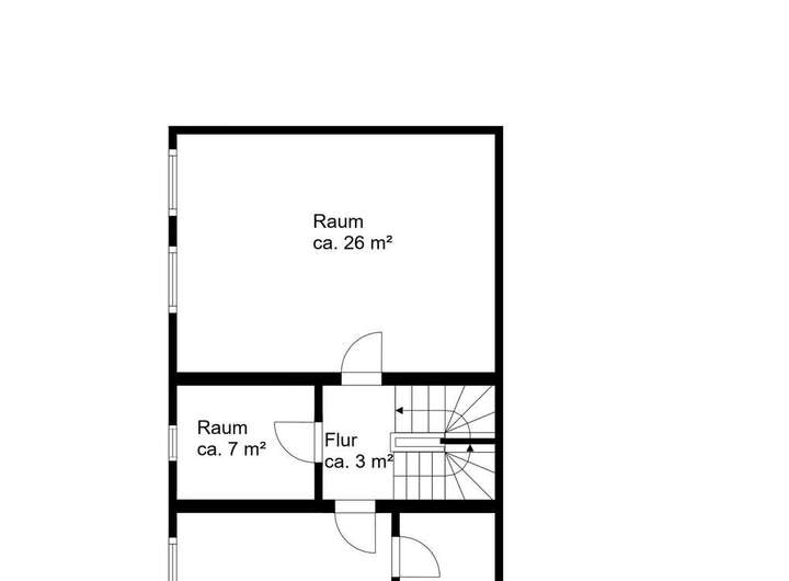
Der Vollkeller ist dank der hohen Decken vielseitig nutzbar.
Der Außenbereich wurde mit viel Liebe zum Detail gestaltet: Eine großzügige Terrasse bietet einen weiten Blick in den gepflegten Garten, der durch einen stilvoll angelegten Koikarpfenteich ergänzt wird.
            
        Schönebeck / Traumhafte Doppelhaushälfte mit Parkgarten in ruhiger Lage
                     28757 Bremen                            
Die vollständige Adresse der Immobilie erhalten Sie vom Anbieter.
        
            
            Auf Karte anzeigen
        
        
    Die vollständige Adresse der Immobilie erhalten Sie vom Anbieter.
    Finanzierungszertifikat
In nur zwei Minuten zu Ihrem persönlichen Finanzierungszertifkat.
Infos
| Haustyp | Sonstige | 
|---|---|
| Wohnfläche ca. | 213 m2 | 
| Nutzfläche | 72 m2 | 
| Grundstücksfläche | 1.189 m2 | 
| Zimmer | 4 | 
| Garage/Stellplatz | Carport | 
| Anzahl Garage/Stellplatz | 2 | 
Kosten
| Kaufpreis | 
                599.000 € | 
        
|---|---|
| Provision | 
                            3,57 % inkl. 19 % MwSt.  | 
    
Finanzierungsrechner:
                    
                     Kaufpreis:
                        
                            600.000 €
                        
                    
                    
                    
                
            
                        
                            Eigenkapital:
                            
                                 600.000 €
                            
                        
                    
                
            
                        Monatliche Rate
                        0 €
                    
                    
                        
                            Effektiver Jahreszins
                        
                        0 %
                    
                    
                        Sollzinsbindung
                        10 Jahre
                    
                Bausubstanz & Energieausweis
| Baujahr | 1997 | 
|---|---|
| Objektzustand | Neuwertig | 
Beschreibung des Objekts
Ausstattung
                - Fußbodenheizung 
- Gäste-WC mit Duschkabine
- Ausgebauter Spitzboden
- Terrasse
- Parkgarten
- Gartenhaus
- Kamin
- Doppelcarport
               
        Lage
                Schönebeck zählt zu den begehrten Wohnlagen Bremens und zeichnet sich durch seine naturnahe Umgebung aus. In wenigen Gehminuten sind sowohl das Schloss Schönebeck als auch das Naturschutzgebiet „Schönebecker Aue“ erreichbar. Der weitläufige Knoops Park an der Lesum befindet sich ebenfalls in der Umgebung, ist jedoch nicht fußläufig zu erreichen.
Das Haus liegt in einer ruhigen Seitenstraße und bietet damit ein angenehmes, ungestörtes Wohnumfeld.
Dank der guten Anbindung an den öffentlichen Nahverkehr sind die Bremer Innenstadt in ca. 20 Minuten und Bremen-Vegesack in ca. 10 Minuten erreichbar.
Schulen, Kindergärten und Einkaufsmöglichkeiten für den täglichen Bedarf befinden sich in unmittelbarer Nähe.
                
        Grundriss
                                    Erdgeschoss
                                                                            
                                        >
                                                                    
                                                                                                                
                                        >
                                                                    
                                    Dachgeschoss
                                                                            
                                        >
                                                                    
                                                                                                                
                                        >
                                                                    
                                    Kellergeschoss
                                                                            
                                        >
                                                                    
                                                                        
                                        >
                                                                    Adresse
28757 Bremen
Interessante Orte
Preis- und Lageinformationen
                Preistrend für Bestandsimmobilien in Schönebeck