Diese hier angebotene Immobilie wurde im Jahre 1981 in Massivbauweise als Rotklinker Doppelhaus errichtet. Es befindet sich am Ende eines Privatweges (Sackgasse), in eingewachsener Umgebung, weit entfernt von der Straße. Die Doppelhäuser stehen versetzt zueinander, so dass sich lediglich im Eingangsbereich, dem Treppenhaus und GWC Berührungspunkte ergeben (siehe Grundriss). Das Haus befindet sich in einem sehr gepflegten Zustand. Der Eingangsflur verfügt über einen Rotklinkerbodenbelag. Im Uhrzeigersinn gehen vom Flur zunächst die Küche mit EBK (Siematic), kleinem Essplatz und Zugang zum Hauswirtschaftsraum ab. Weiter folgt das sehr großzügige Wohnzimmer mit großen bodentiefen Fensterfronten und einem Fenster im Essbereich. Der Raum ist mit hellem hochwertigem Parkett ausgestattet. Ein gemauerter Kamin verspricht angenehme Stunden (nicht nur) zur kalten Jahreszeit. Vom Wohnzimmer gelangt man auf die ideal nach Süd-Westen ausgerichtete Sonnenterrasse mit angrenzendem kleinen Garten. Abschließend befindet sich selbstverständlich auch ein GWC im Eingangsbereich. Im Obergeschoss, welches sich über eine attraktive Vollholztreppe erschließt, gehen alle Räume von dem zentralen Flur ab. Hier befinden sich 3 ungleich große Schlafzimmer und ein renoviertes Tageslicht Vollbad. Ein Spitzboden bietet ausreichend Staufläche und ersetzt den fehlenden Keller
Hochwertige Doppelhaushälfte in ruhiger Anwohnerstraße mit Garage und PKW-Stellplatz
28359 Bremen
Die vollständige Adresse der Immobilie erhalten Sie vom Anbieter.
Auf Karte anzeigen
Die vollständige Adresse der Immobilie erhalten Sie vom Anbieter.

Finanzierungszertifikat
In nur zwei Minuten zu Ihrem persönlichen Finanzierungszertifkat.
Infos
Haustyp | Doppelhaushaelfte |
---|---|
Etagenzahl | 2 |
Wohnfläche ca. | 140 m2 |
Nutzfläche | 8 m2 |
Grundstücksfläche | 442 m2 |
Bezugsfrei ab | gemäß Vereinbarung |
Zimmer | 4 |
Schlafzimmer | 3 |
Badezimmer | 2 |
Garage/Stellplatz | Garage |
Anzahl Garage/Stellplatz | 1 |
Kosten
Kaufpreis |
495.000 € |
---|---|
Provision |
2,98% vom Kaufpreis (inkl. 19% MwSt) |
Finanzierungsrechner:
Kaufpreis:
600.000 €
Eigenkapital:
600.000 €
Monatliche Rate
0 €
Effektiver Jahreszins
0 %
Sollzinsbindung
10 Jahre
Bausubstanz & Energieausweis
Baujahr | 1981 |
---|---|
Objektzustand | Gepflegt |
Qualität der Austattung | Gehoben |
Heizungsart | Fußbodenheizung |
Wesentliche Energieträger | Gas |
Energieausweis | liegt vor |
Energieausweistyp | Verbrauchsausweis |
Energieverbrauchskennwert | 115,7 kWh/(m²*a) |
Energieeffizienzklasse | D |
115,7
kWh/(m²*a)
Energieeffizienzklasse D
- A+
- A
- B
- C
- D
- E
- F
- G
- H
- 0
- 25
- 50
- 75
- 100
- 125
- 150
- 175
- 200
- 225
- >250
Beschreibung des Objekts
Ausstattung
Exemplarisch möchten wir auf folgende Ausstattungsdetails hinweisen: -Ca. 54 m² Wohn-/Esszimmer -3 Schlafzimmer (ca. 12 m²/ 16 m² / 25 m²) -Wohnküche mit EBK (Simatic) -Fußbodenheizung im gesamten Haus -saniertes Tageslicht Badezimmer mit Wanne & Dusche (2010) -saniertes Gäste WC (2010) -Rollläden (z.T. m. Insektenschutz) im gesamten Haus -Hauswirtschaftsraum mit Zugang zur Küche & zum Garten -Gas Brennwerttherme mit Warmwasseraufbereitung (NEU 2023) -Massive Garage direkt am Haus -Separater PKW Stellplatz auf dem Gemeinschaftsparkplatz -Gartenhaus und Grundwasserbrunnen
Lage
Die Immobilie befindet sich im Grenzbereich Oberneuland/Horn. Das Straßenbild wird geprägt von gepflegter Einzelhausbebauung mit z.T. großen Grundstücken. Ursprüngliche Siedlungshäuser und exklusive Neubauten aus unterschiedlichen Baujahren schaffen ein abwechslungsreiches Straßenbild. Mehrfamilienhäuser mit geringer Höhe bilden die Ausnahme. Einkaufsmöglichkeiten, sowie sämtliche Schularten sind per Rad sehr gut und schnell erreichbar. Die Bremer City ist mit dem Bus (BSAG Linien 33/34/31) in ca. 20 Min. zu erreichen. Als ideal ist die Anbindung mit dem PKW an die A27 zu bezeichnen. Der Rhododendronpark, der Achterdiek Park und der Club zur Vahr befinden sich ebenfalls in der Nähe.
Sonstige Angaben
Die Fußbodenbeläge im OG (Flur und 2 Kinderzimmer) wurden in 2023 mit Laminat erneuert. Der Schornstein wurde ebenfalls 2023 saniert. Die Grundsteuer beträgt ca. € 639,00 p.a.
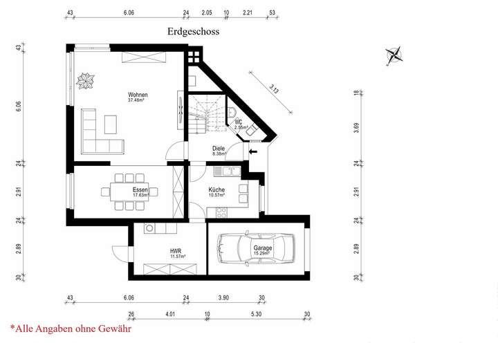
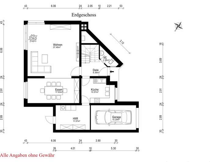
Grundriss
Grundriss EG
>

Grundriss DG
>

Adresse
28359 Bremen
Interessante Orte
Preis- und Lageinformationen
Preistrend für Bestandsimmobilien in Lehesterdeich