Sie träumen von einem Zuhause, das Sie nach Ihren eigenen Vorstellungen gestalten können – sei es als großzügiges Familiendomizil oder als charmantes Mehrgenerationenhaus? Dann lassen Sie sich von diesem Einfamilienhaus aus dem Jahr 1930 mit späterem Anbau begeistern.
Mit rund 180 m² Wohnfläche, 6–8 Zimmern, einem ca. 240 m² großen Grundstück, einem sonnigen Garten und einem gemütlichen Innenhof mit Werkstatt bietet es alles, was eine Familie zum Wohlfühlen braucht – und noch viel mehr Potenzial für kreative Ideen.
Das Haus wurde über die Jahre regelmäßig gepflegt und immer wieder modernisiert: 2013 wurde die Heizungsanlage erneuert, 2015 moderne 3-fach verglaste Kunststofffenster im Dachgeschoss eingebaut. Auch das große Tageslicht-Duschbad im Obergeschoss sowie das Gäste-WC im Erdgeschoss wurden bereits saniert.
Das Beste aber ist die Lage: Im Herzen von Mainz-Bretzenheim, einem lebendigen Stadtteil mit Schulen, Kindergärten, Einkaufsmöglichkeiten, Sportvereinen und hervorragender Anbindung an das Rhein-Main-Gebiet.
Ein Haus mit Geschichte, Charakter und unzähligen Möglichkeiten – ideal für alle, die ein Herzensprojekt suchen und ihr eigenes Traumhaus erschaffen möchten.
**PROVISIONSFREI** Mit etwas Fantasie und Geschick wird es ein Schmuckstück ...
55128 Mainz
Die vollständige Adresse der Immobilie erhalten Sie vom Anbieter.
Auf Karte anzeigen
Die vollständige Adresse der Immobilie erhalten Sie vom Anbieter.
Finanzierungszertifikat
In nur zwei Minuten zu Ihrem persönlichen Finanzierungszertifkat.
Infos
| Haustyp | Einfamilienhaus |
|---|---|
| Wohnfläche ca. | 180 m2 |
| Grundstücksfläche | 240 m2 |
| Zimmer | 8 |
| Schlafzimmer | 5 |
| Badezimmer | 2 |
| Garage/Stellplatz | Garage |
| Anzahl Garage/Stellplatz | 1 |
Kosten
| Kaufpreis |
625.000 € |
|---|---|
| Provision | Nein |
Finanzierungsrechner:
Kaufpreis:
600.000 €
Eigenkapital:
600.000 €
Monatliche Rate
0 €
Effektiver Jahreszins
0 %
Sollzinsbindung
10 Jahre
Bausubstanz & Energieausweis
| Baujahr | 1930 |
|---|---|
| Letzte Sanierung | 1990 |
| Objektzustand | Renovierungsbedürftig |
| Qualität der Austattung | Normal |
| Heizungsart | Zentralheizung |
| Wesentliche Energieträger | Gas |
| Energieausweis | liegt vor |
| Energieausweistyp | Bedarfsausweis |
| Energieverbrauchskennwert | 225,5 kWh/(m²*a) |
| Energieeffizienzklasse | G |
225,5
kWh/(m²*a)
Energieeffizienzklasse G
- A+
- A
- B
- C
- D
- E
- F
- G
- H
- 0
- 25
- 50
- 75
- 100
- 125
- 150
- 175
- 200
- 225
- >250
Beschreibung des Objekts
Ausstattung
++ Großes Einfamilienhaus aus dem Bj. ca. 1930. Bis vor wenigen Jahren immer wieder gewartet und modernisiert
++ Gut nutzbares Gebäudeensemble aus Wohnhaus mit Anbau, Hof, Werkstatt und kleinem Garten
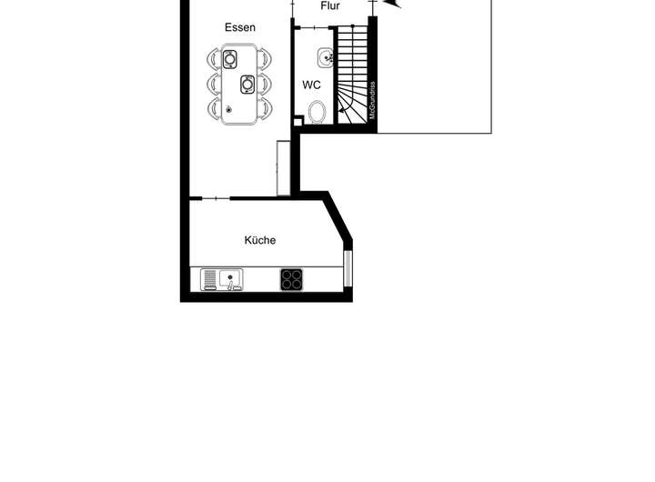
++ EG: Wohnzimmer mit angeschlossenem Essbereich, separater Küche, Flur und TL-WC
++ OG: Großes, helles Wohnzimmer, separate Küche, Flur, Treppenhaus, großes Schlafzimmer mit Ankleide, kleines Schlafzimmer und großes Duschbad
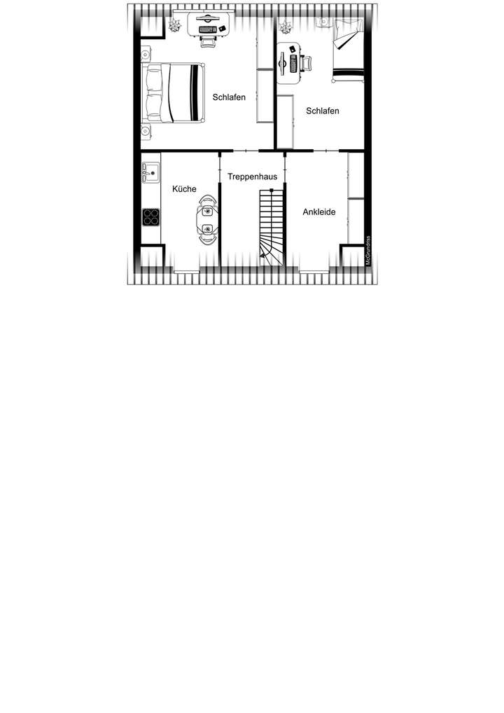
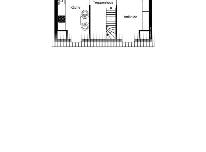
++ DG: Küche, 2 Zimmer, davon einmal mit Ankleide
++ DG Mit 3-fach verglasten Kst.-Fenstern von 2015, ansonsten Holzfenster von 1997 bzw. Alufenster von ca. 1976
++ Z. T. neuer Laminatbelag, teilw. älterer Teppichboden
++ Kleiner Innenhof zur Eingangsseite und gemütlicher Gartenhof zur Rückseite, Grundstück ca. 240 m² groß
++ Werkstattgebäude mit viel Platz für Ihr Hobby
++ Mögl. PKW-Stellplatz in der Hofeinfahrt
++ Das Haupthaus ist unterkellert
Energiebedarfsausweis von 2025: Gaszentralheizung 2013, 225,5 kWh/m²*a, Effizienz G
Ideal für die große Familie, Mehrgenerationenwohnen oder die Kombination von Wohnen und Arbeiten
Lage
Das Haus liegt in einer der gesuchtesten Wohnlagen von Mainz-Bretzenheim. Dieser Stadtteil hat fast 20.000 Einwohner, die hier alles finden, was man zum täglichen Leben braucht. Bretzenheim verfügt über Schulen, Kindergärten und Sportstätten, sowie selbstverständlich über Ärzte, Apotheken, Einkaufsmöglichkeiten und alle anderen Einrichtungen des täglichen Bedarfs. Dank eines regen Vereinslebens und großzügiger Freizeitangebote, bietet der Stadtteil eine sehr hohe Lebensqualität. Darüber hinaus ist der Ort mit eigenem Autobahnanschluss unmittelbar an das ausgezeichnete Verkehrssystem des Rhein-Main-Gebietes angeschlossen. Bretzenheim ist ein sehr beliebter Stadtteil und Immobilien sind hier sehr gefragt.
Sonstige Angaben
SENGER Immobilien - Kompetenz und Leidenschaft für Ihr Zuhause
Capital 10/2024: 5 Sterne und Top-Makler für Mainz und Umgebung
Bellevue Best Property Agent seit 2015
Für unsere Kunden suchen wir laufend Häuser und Wohnungen zum Kauf. Wir verfügen über ein eindrucksvolles, flächendeckendes Netz von Partnern. Regelmäßig erhalten wir über diese Büros Kaufgesuche von vorgeprüften Interessenten aus ganz Europa. Wenn Sie eine Immobilie zu verkaufen haben, dann sollten auch Sie diese Möglichkeit nutzen, um Ihre Liegenschaft ohne Probleme zu verkaufen.
Haben wir Ihr Interesse geweckt? Dann rufen Sie uns unter 06131. 329 52 45 an oder besuchen Sie uns in der Alten Mainzer Straße 3 in Mainz-Hechtsheim. Eine Tasse Kaffee steht immer für Sie bereit. Wir freuen uns auf Sie.
Grundriss
Grundriss EG
>
>
Grundriss OG
>
>
Grundriss DG
>
>
Grundriss KG
>
>
Adresse
55128 Mainz
Interessante Orte
Preis- und Lageinformationen
Preistrend für Bestandsimmobilien in Bretzenheim