In sowohl ruhiger als auch gut angebundener Lage von Aumund-Hammersbeck wartet diese attraktive Immobilie auf vorausschauende Kapitalanleger und erstreckt sich mit ca. 371 m² über das Erdgeschoss, zwei Etagen sowie ein Vollkeller mit ca. 50 m² Nutzfläche sowie zwei Garagen im Keller. 
Es handelt sich hierbei um ein freistehendes Mehrfamilienhaus mit insgesamt 6 getrennten Wohneinheiten. Angrenzend am Haus befinden sich noch zwei weitere Garagen sowie vier Kfz- Stellplätze auf dem Hintergrundstück. 
Das Objekt befindet sich dank konstanter Instandhaltungsmaßnahmen in einem gepflegten Allgemeinzustand und präsentiert sich als attraktive Investitionsgelegenheit. 
Straßen- und Rückseitig ist das Haus verkleinert und befindet sich in einem guten energetischen Zustand. Die Gas-Zentralheizung wurde von einem Jahr durch eine neue Gas-Brennwert-Therme erneuert.
Die 6 voll vermieteten, jeweils 2- und 3- Zimmer Wohnungen überzeugen durch freundliche sowie gut geschnittene Räumlichkeiten. Die beiden 2- Zimmer Wohnungen im Erdgeschoss, die ursprünglich zu gewerblichen Zwecken konzipiert und genutzt wurden sind 1995 bzw. 2017 zu Wohnungen umgebaut worden und befinden sich in einem modernen und zeitgemäßen Zustand.
Beide Wohnungen haben separaten Eingängen und verfügen über einen eigenen kleinen Gartenanteil.  Die Wohnungen im 1. und 2. Obergeschoss sind relativ einfach ausgestattet und verfügen darüber hinaus jeweils über Balkons oder Loggien. 
Vorteilhafte Wohnungsgrößen zwischen ca. 51 m² bis rund ca. 72 m² Wohnfläche versprechen auch zukünftig großes Vermietungspotenzial für alle vorhandenen Einheiten und ermöglichen die Vermietung an eine breite Zielgruppe.
Das Mehrfamilienhaus ist voll unterkellert, zu jeder Wohneinheit gehört je ein Kellerabteilt zu. 
Bei den derzeitigen Mieteinnahmen ergibt sich eine Jahresnettokaltmiete von 31.680 €. Darüber hinaus sind die vermieteten Wohnungen für den Stadtteil teilweise zu moderaten Mietpreisen vermietet, sodass hier zukünftig noch weiterer Mietsteigerungspotenzial besteht. 
Die Mieter erwiesen sich stets als zuverlässig und unkompliziert, sodass die Zahlungen fristgerecht erfolgen und keinerlei Mietrückstände vorliegen. Die Hausgemeinschaft zeichnet sich zudem durch gelebte Hilfsbereitschaft, gegenseitiges Entgegenkommen und ein harmonisches Miteinander aus.
            
        AUMUND- HAMMERSBECK | Solides Anlageobjekt mit Entwicklungspotential: 6 Parteienhaus in guter Lage
                     28755 Bremen                            
Die vollständige Adresse der Immobilie erhalten Sie vom Anbieter.
        
            
            Auf Karte anzeigen
        
        
    Die vollständige Adresse der Immobilie erhalten Sie vom Anbieter.
    Finanzierungszertifikat
In nur zwei Minuten zu Ihrem persönlichen Finanzierungszertifkat.
Infos
| Haustyp | Mehrfamilienhaus | 
|---|---|
| Etagenzahl | 3 | 
| Wohnfläche ca. | 371 m2 | 
| Nutzfläche | 50 m2 | 
| Grundstücksfläche | 675,5 m2 | 
| Zimmer | 12 | 
| Garage/Stellplatz | Garage | 
| Anzahl Garage/Stellplatz | 8 | 
Kosten
| Kaufpreis | 
                590.000 € | 
        
|---|---|
| Provision | 
                            3,57 % inkl. gesetzl. MwSt. Das vom Käufer der Immobilie zu zahlende Maklerhonorar beträgt 3,57% des beurkundeten Kaufpreises inkl. der gesetzl. MwSt. und ist mit Unterzeichnung des Kaufvertrages verdient und fällig.  | 
    
| Mieteinnahmen | 2.640 € | 
Finanzierungsrechner:
                    
                     Kaufpreis:
                        
                            600.000 €
                        
                    
                    
                    
                
            
                        
                            Eigenkapital:
                            
                                 600.000 €
                            
                        
                    
                
            
                        Monatliche Rate
                        0 €
                    
                    
                        
                            Effektiver Jahreszins
                        
                        0 %
                    
                    
                        Sollzinsbindung
                        10 Jahre
                    
                Bausubstanz & Energieausweis
| Baujahr | 1970 | 
|---|---|
| Letzte Sanierung | 2017 | 
| Objektzustand | Gepflegt | 
| Qualität der Austattung | Normal | 
| Heizungsart | Gas-Heizung | 
| Wesentliche Energieträger | Gas | 
| Energieausweis | liegt vor | 
| Energieausweistyp | Verbrauchsausweis | 
| Energieverbrauchskennwert | 187,0 kWh/(m²*a) | 
Beschreibung des Objekts
Lage
                Eingerahmt wird dieser Stadtteil von Bremen von Vegesack, Grohn, Schönebeck und Fähr-Lobbendorf. 
Aumund-Hammersbeck wird durch die A270 nach seinen beiden Namen aufgeteilt: Das südlich gelegene Aumund grenzt an das alte Vegesack, im Norden bildet Hammersbeck die Grenze zu Niedersachsen. Dieser Teil von Hammersbeck rund um den Bahnhof Aumund und das Becketal ist von Gewerbegebieten des Technologiezentrums Bremen-Nord geprägt, bindet auch Arbeitsplätze. In direkter Nachbarschaft zu Büros und Lagerhallen gibt es in Hammersbeck auch Natur pur. Das Aumunder Angelzentrum befindet sich in nächster Nähe. Das Naturschutzgebiet Hammersbecker Wiesen lädt zum Sparzierengehen und Sport treiben regelrecht ein. Auch Vereine, wer die Gemeinschaft beim Sport liebt, gibt es verschiedene. 
Sportarten wie Badminton, Fußball und Turnen werden hier für Groß und Klein angeboten. Dieser Stadtteil ist sehr sportbegeistert, zu Lande und zu Wasser.Außerdem wird dieser Stadtteil von Einfamilienhäusern geprägt. 
Aber auch kleine Siedlungshäuser mit wenigen Etagen sind vorhanden. 
Die Mieten sind moderat und erschwinglich. Die Kaufpreise von Einfamilienhäusern bewegen sich z. Zt. aber schon langsam weiter nach oben. Junge Familien verwirklichen hier immer mehr ihren Traum von einem Haus. 
Viele verschiedene Hausstile- und -formen findet man hier. Liebevoll und individuell zurechtgemachte Gärten, mit viel Grün zur Straßenseite und auch als Garten hinten, sind hier sozusagen Pflicht. 
Die Infrastruktur ist z. Zt. noch nicht optimal, wird aber, aufgrund des größeren Zuzuges von Familien, immer mehr ausgebaut. Ein Schulzentrum mit Grund-, Haupt-, Real- und Gymnasium hat man hier auch eingerichtet. Weitere, zumeist soziale Einrichtungen, sind stadtteilübergreifend vorhanden. Kein Mensch bleibt unversorgt. Hier achtet man noch aufeinander ohne neugierig oder aufdringlich zu wirken. Hier einen Pkw zu haben ist allerdings sehr hilfreich. Auch wenn in den Stadteilen das Meiste erhältlich ist, bleibt manchmal eine Fahrt nach Bremen unumgänglich. Hier sollte man dann schon etwas mehr Fahrtzeit einzukalkulieren.
                
        Sonstige Angaben
                Wir bitten um Verständnis dafür, dass wir detaillierte Informationen zu unserem Verkaufsobjekt nur erteilen, wenn Sie in Ihrer Mail-Anfrage Ihre vollständige Adresse und Ihre Telefonnummer, unter der wir Sie tagsüber erreichen können, angeben. Um unnötige Rückfragen zu vermeiden, füllen Sie das Kontaktformular bitte vollständig aus. Nur so können wir auf Ihre Anfrage schnell reagieren.
Alle in diesem Angebot enthalten Angaben, Abmessungen und Preisangaben beruhen auf Angaben des Eigentümers (oder eines Dritten). Irrtum sowie Zwischenverkauf vorbehalten.
FAIR IMMOBILIEN übernimmt hierfür keine Haftung. Dieses Objekt ist für den Käufer provisionspflichtig.
Bitte beachten Sie unseren Provisionshinweis.
Benötigen Sie ergänzende Informationen oder wünschen Sie einen unverbindlichen Besichtigungstermin, dann steht Ihnen Herr Evzi Jahja telefonisch unter den Rufnummern Büro: 0421 / 577 97 432 oder
Mobil: 0179 32 74 924 auch außerhalb der üblichen Geschäftszeiten gerne zur Verfügung.
----------------------------------------------------------------------------------
Weitere faire Kaufangebote finden Sie auf unserer Homepage
www.fair-immobilien24.de !
-----------------------------------------------------------------------------------
           
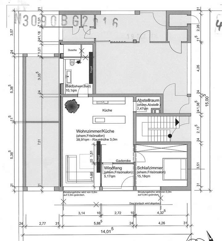
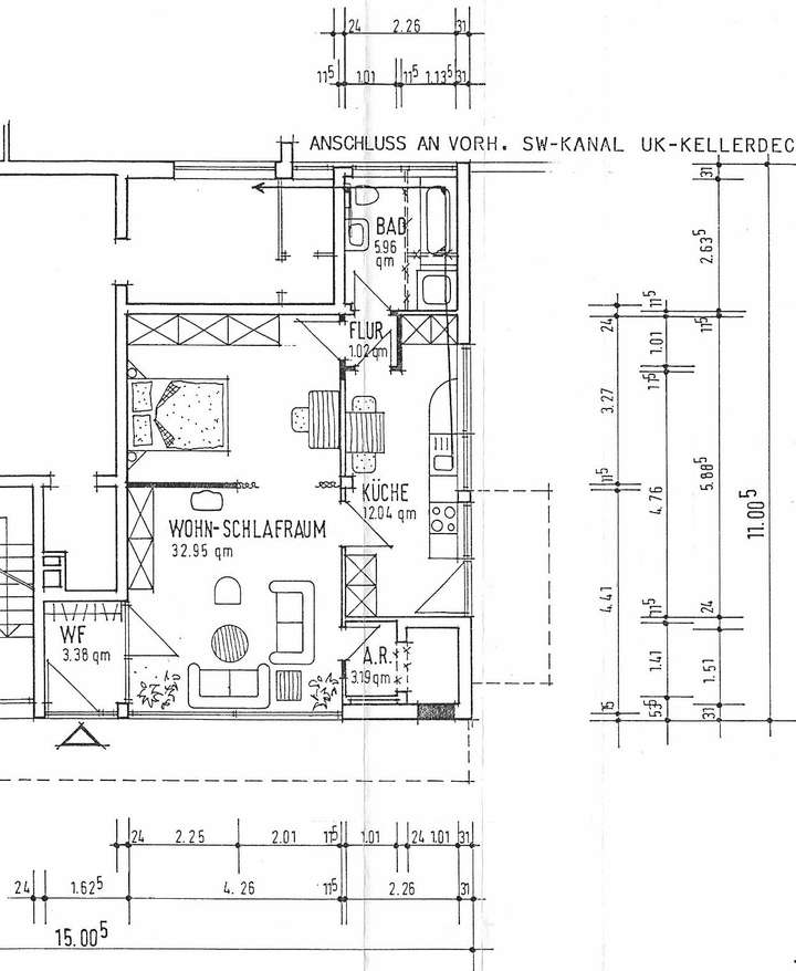
        Grundriss
                                    Grundriss EG links, Whg. 1
                                                                            
                                        >
                                                                    
                                                                                                                
                                        >
                                                                    
                                    Grundriss EG rechts, Whg. 2
                                                                            
                                        >
                                                                    
                                                                                                                
                                        >
                                                                    
                                    Grundriss 1 OG links, Whg. 3
                                                                            
                                        >
                                                                    
                                                                                                                
                                        >
                                                                    
                                    Grundriss 1 OG rechts, Whg. 4
                                                                            
                                        >
                                                                    
                                                                                                                
                                        >
                                                                    
                                    Grundriss 2 OG links, Whg. 5
                                                                            
                                        >
                                                                    
                                                                                                                
                                        >
                                                                    
                                    Grundriss 2 OG rechts, Whg. 6
                                                                            
                                        >
                                                                    
                                                                        
                                        >