Klar, offen, transparent: So präsentiert sich dieses moderne Einfamilienhaus seinen Betrachtern. Ganz im Sinne des Bauhausstils wurde der kubische Baukörper auf beiden Ebenen mit großzügigen Verglasungen ausgestattet, die im Innern ein luftiges Wohngefühl schaffen.
Moderner Neubau mit Ecken und Kanten aus dem Haus Bien Zenker inkl. Baugrundstück in TOP LAGE
55595 Hargesheim
Die vollständige Adresse der Immobilie erhalten Sie vom Anbieter.
Auf Karte anzeigen
Die vollständige Adresse der Immobilie erhalten Sie vom Anbieter.

Finanzierungszertifikat
In nur zwei Minuten zu Ihrem persönlichen Finanzierungszertifkat.
Infos
Wohnfläche ca. | 178 m2 |
---|---|
Grundstücksfläche | 526 m2 |
Zimmer | 5,5 |
Kosten
Kaufpreis |
738.977 € |
---|
Finanzierungsrechner:
Kaufpreis:
600.000 €
Eigenkapital:
600.000 €
Monatliche Rate
0 €
Effektiver Jahreszins
0 %
Sollzinsbindung
10 Jahre
Bausubstanz & Energieausweis
Baujahr | unbekannt |
---|
Beschreibung des Objekts
Ausstattung
Gerne planen wir mit Ihnen zusammen Ihr exklusives Traumhaus mit den Details, die für Sie wichtig sind.
Lage
Hargesheim ist eine Ortsgemeinde im Landkreis Bad Kreuznach in Rheinland-Pfalz. Sie gehört der Verbandsgemeinde Rüdesheim an und ist von den Einwohnern her gesehen deren größte Gemeinde
Sonstige Angaben
Im angegebenen Preis ist das Grundstück bereits enthalten. Gerne planen wir den Hausbau gemeinsam mit Ihnen auch auf Ihrem bereits vorhandenen Grundstück. In einem ausführlichen Beratungsgespräch ermitteln wir für Sie gerne eine detaillierte Gesamtkostenaufstellung. Das Angebot ist unverbindlich und freibleibend, exklusive der Baunebenkosten wie z.B. Hausanschlüsse, Außenanlagen... Abbildungen und Grundrisse zeigen Extras! Das Haus ist gerechnet " Zur Ausstattung fertig"
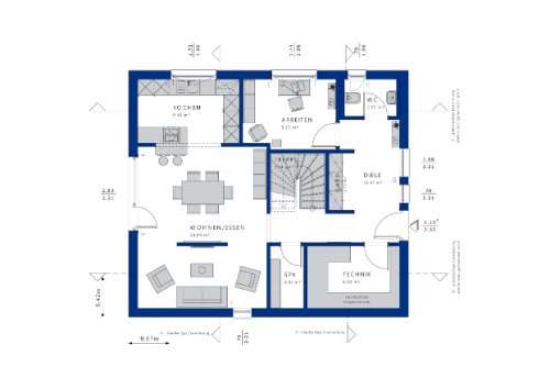
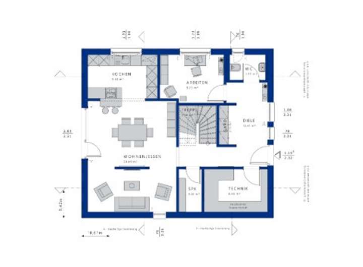
Grundriss
84165-6242-1-g
>

84160-6242-2-g
>

Adresse
55595 Hargesheim
Interessante Orte
Preis- und Lageinformationen
Preistrend für Bestandsimmobilien in Hargesheim