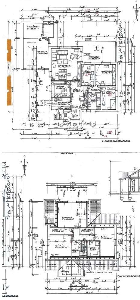
Dieses charmante EFH aus dem Jahr 2003 bietet eine großzügige Wohnfläche von 195 m² und befindet sich auf einem geschützten Grundstück von 675 m². Das Haus besticht durch seine solide und massive Bauweise und die durchdachte Raumaufteilung, die ein komfortables und modernes Wohnen ermöglicht.
Der Eingangsbereich führt in einen geräumigen Flur und bietet einen Zugang zu den verschiedenen Räumen und in das OG. Hier erwartet Sie ein großes Wohnzimmer mit integriertem Essbereich und einer Verbindung zum Garten, die Küche ein Bad und ein Gäste WC. Im hinteren Bereich liegen drei gut portionierte Schlafzimmer die ausreichend Platz und Komfort bieten. Darüber hinaus befindet sich im EG ein Wirtschafts- und Anschlussraum mit einem Zugang zur Hofeinfahrt.
Im DG bietet eine großzügige Ausbaureserve zusätzlichen Wohnraum und individuelle Gestaltungsmöglichkeiten. Hier befinden sich ein bereits ausgebautes Büro- oder Gästezimmer, zwei weitere ausbaufähige Schlafräume, ein Bad (Leitungen sind vorhanden), Abstellmöglichkeiten und der Heizungsraum.
Das liebevoll angelegte und geschützte Grundstück mit einer teilüberdachten Südterrasse und einem weiteren Außensitzbereich in Westausrichtung lädt an schönen Sommertagen zum Erholen und Verweilen ein. Direkt am Haus befindet sich eine großzügige Hofeinfahrt mit KFZ-Außenstellplätzen sowie einer Garage mit Geräteschuppe
Charmantes EFH mit komfortabler Raumaufteilung, Einliegerwohnung & sehr gepfl. Garten
38474 Tülau
Die vollständige Adresse der Immobilie erhalten Sie vom Anbieter.
Auf Karte anzeigen
Die vollständige Adresse der Immobilie erhalten Sie vom Anbieter.
Finanzierungszertifikat
In nur zwei Minuten zu Ihrem persönlichen Finanzierungszertifkat.
Infos
| Haustyp | Einfamilienhaus |
|---|---|
| Wohnfläche ca. | 195 m2 |
| Nutzfläche | 30 m2 |
| Grundstücksfläche | 675 m2 |
| Bezugsfrei ab | nach Vereinbarung |
| Zimmer | 8 |
| Schlafzimmer | 6 |
| Badezimmer | 1 |
| Garage/Stellplatz | Garage |
| Anzahl Garage/Stellplatz | 4 |
Kosten
| Kaufpreis |
299.000 € |
|---|---|
| Provision |
3,57% Käuferprovision: 3,57% v. KP, inkl. d. gesetzl. Mwst. 19%, fällig n. Unterz. eines notariellen KV, zahlbar v. Käufer! Verkäuferprovision: 3,57% v. KP, inkl. d. gesetzl. Mwst. 19%, fällig n. Unterz. eines notariellen KV, zahlbar v. Verkäufer! |
Finanzierungsrechner:
Kaufpreis:
600.000 €
Eigenkapital:
600.000 €
Monatliche Rate
0 €
Effektiver Jahreszins
0 %
Sollzinsbindung
10 Jahre
Bausubstanz & Energieausweis
| Baujahr | 2000 |
|---|---|
| Objektzustand | Gepflegt |
| Qualität der Austattung | Normal |
| Heizungsart | Zentralheizung |
| Wesentliche Energieträger | Gas |
| Energieausweis | liegt vor |
| Energieausweistyp | Verbrauchsausweis |
| Energieverbrauchskennwert | 88,3 kWh/(m²*a) |
Beschreibung des Objekts
Ausstattung
•Mauerwerk: Massiv
•Keller: nein
•Außenwände: Klinker
•Dach/Dämmung: Tonziegel, Dämmung, gem. Baujahr
•elektrische Anlage: gem. Baujahr
•Verrohrung Frisch- und Abwasser: gem. Baujahr
•Heizung: Gas Zentral
•Fenster: Kunststofffenster mit 2-fach Verglasung, gem. Baujahr
•Rollläden: manuell und im Wohnzimmer elektrisch
•Kamin: wäre möglich
•Bodenbeläge: Fliesen, Teppich
•Raumaufteilung: sehr gute Raumaufteilung, 8 Wohnräume
•Bad: Dusche, Badewanne, WC, Waschtisch, Fenster
•Gäste-WC: Waschbecken, WC, Fenster
•Glasfaser: Giffinet
•Terrasse: 1x Süd und 1x West mit Markise
•Sonstiges: Brunnenanschluss
Lage
Das Haus befindet sich in Tülau-Voitze, ca. 25 PKW-Fahrminuten von Wolfsburger Innenstadt entfernt. Eine Kita, eine Krippe und eine eine Grundschule sind vor Ort vorhanden und innerhalb weniger Minuten zu Fuß oder mit dem Rad erreichbar. Weitere Versorgungsmöglichkeiten, Ärzte, eine Apotheke, eine Tankstelle uvm. Erreichen Sie in 5 km Entfernung in Brome. Die Anbindung nach Gifhorn, in die Innenstadt von Wolfsburg, sowie in nahe Ortschaften wird durch öffentliche Verkehrsmittel sichergestellt.
Sonstige Angaben
Das Betreten des Grundstücks ist ohne vorherige Terminabsprache mit unserem Maklerbüro nicht gestattet!
Die Objektdaten wurden mit großer Sorgfalt zusammengestellt und basieren auf den Angaben der Verkäufer!
Für die Richtigkeit der im Exposé enthaltenen Angaben übernehmen wir keine Gewähr!
Von Grussendorf Immobilien & Finanzdienste werden keinerlei Zusicherungen über den baulichen Zustand einer Immobilie gemacht!
Besuchen Sie unsere Homepage unter: www.grussendorfimmobilien.de
Adresse
38474 Tülau
Interessante Orte
Preis- und Lageinformationen
Preistrend für Bestandsimmobilien in Tülau
>