Dieses freistehende Einfamilienhaus mit Doppel-Carport präsentiert sich in substanzstarker Qualität. Das Gebäude wurde 1992 in
Massivbauweise errichtet und der Vollkeller wurde in Wohnraum-
höhe ausgeführt.
Im Erdgeschoss erwartet Sie ein großes Wohnzimmer mit Kachelofen/Kamin, der für wohlige Wärme sorgt. Ebenso befindet sich auf dieser Ebene der Essbereich, die angrenzende Küche, ein
Gäste-Bad mit WC und Dusche, die großzügige Diele, sowie die
teilüberdachte Terrasse in Süd-West-Ausrichtung mit dem Zugang
zum Garten.
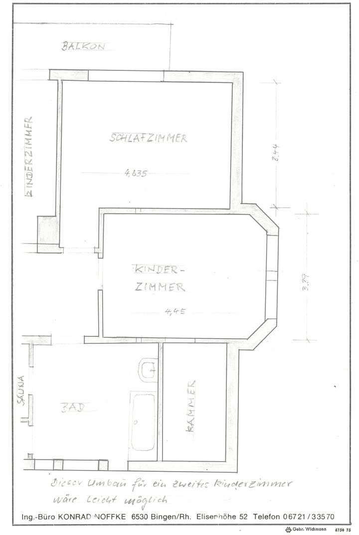
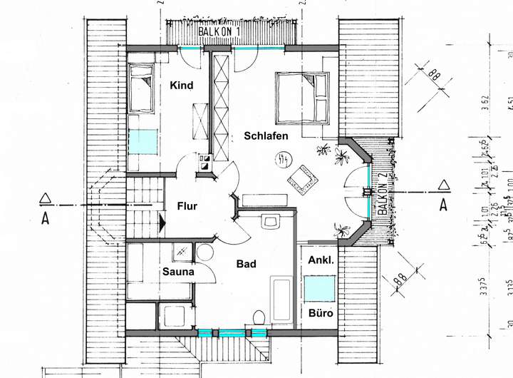
Das Obergeschoss verfügt über ein großes Eltern-Schlafzimmer mit
Zugang zu den zwei Balkonen und angrenzendem kleinen Büro oder Ankleidezimmer. Ebenso befindet sich hier ein weiteres Schlaf-
oder Kinderzimmer, ebenfalls mit Zugang zum Balkon, sowie das
große Badezimmer mit Wanne, Dusche und Sauna.
Im Kellergeschoss wurde ein großer, gut belichteter Bereich als Büro in Wohnraumqualität ausgebaut. Hier befinden sich auch weitere Kellerräume, sowie der Heiz- und Waschraum.
Der Doppel-Carport, ein Gartenhaus und der Spitzboden bzw.
Kofferboden bieten Ihnen ausreichend Nutzfläche.
Beachten Sie bitte auch die in den Plänen aufgeführten alternativen
Raumkonzepte, die bei Bedarf Ihre Flächen auf bis zu 200 m²
in Wohnraumqualität erweitern können.
Freistehendes Einfamilienhaus mit Doppel-Carport und Garten
Ringstrasse 3,
55411 Bingen am Rhein
Auf Karte anzeigen
Finanzierungszertifikat
In nur zwei Minuten zu Ihrem persönlichen Finanzierungszertifkat.
Infos
| Haustyp | Einfamilienhaus |
|---|---|
| Etagenzahl | 2 |
| Wohnfläche ca. | 167 m2 |
| Nutzfläche | 111 m2 |
| Grundstücksfläche | 673 m2 |
| Bezugsfrei ab | 1.12.2025 |
| Zimmer | 5 |
| Schlafzimmer | 3 |
| Badezimmer | 2 |
| Garage/Stellplatz | Carport |
| Anzahl Garage/Stellplatz | 2 |
Kosten
| Kaufpreis |
499.200 € |
|---|---|
| Provision |
3,57% (inkl. 19% MWSt.) vom Kaufpreis Die Courtage beträgt insgesamt 6 % zzgl. 19 % MWSt. und wird auf Käufer und Verkäufer zu jeweils 3 % (zzgl. 19 % MWSt.) vom Kaufpreis aufgeteilt und ist nach Abschluss des notariellen Kaufvertrages zahlbar und fällig. |
Finanzierungsrechner:
Kaufpreis:
600.000 €
Eigenkapital:
600.000 €
Monatliche Rate
0 €
Effektiver Jahreszins
0 %
Sollzinsbindung
10 Jahre
Bausubstanz & Energieausweis
| Baujahr | 1992 |
|---|---|
| Letzte Sanierung | 2005 |
| Objektzustand | Gepflegt |
| Qualität der Austattung | Normal |
| Heizungsart | Fußbodenheizung |
| Wesentliche Energieträger | Gas |
| Energieausweis | liegt vor |
| Energieausweistyp | Bedarfsausweis |
| Energieverbrauchskennwert | 159,4 kWh/(m²*a) |
Beschreibung des Objekts
Lage
Das Haus befindet sich im Binger Vorort Sponsheim mit guter Anbindung an den öffentlichen Nahverkehr, ebenso sind die Autobahnanschlüsse in Richtung Ingelheim und Mainz und in Richtung Koblenz schnell erreichbar.
Die sonnige Gartenfläche und die Terrasse in Süd-West-Ausrichtung
präsentieren sich ruhig, sind weitgehend uneinsehbar und bieten Ihnen ausreichend Platz für Ihre Privatsphäre.
Sonstige Angaben
Bitte haben Sie dafür Verständnis, dass wir weiterführende Informationen oder Unterlagen nur nach schriftlicher Anfrage
weitergeben können.
Grundriss
Grundriss Kellergeschoss
>
>
Grundriss Erdgeschoss
>
>
Grundriss Obergeschoss
>
>
Alternativer Grundriss OG
>
>
Adresse
Ringstrasse 3, 55411 Bingen am Rhein
Interessante Orte
Preis- und Lageinformationen
Preistrend für Bestandsimmobilien in Bingen am Rhein